最新动态:武汉保利琅誉→售楼处电话→在售面积→房价|最新销售公告|周边配套介绍-全城热销-欢迎来电预约!
扫描到手机,新闻随时看
扫一扫,用手机看文章
更加方便分享给朋友
武汉保利琅誉售楼中心电话400-159-8559接通拨4567(本电话只用作售前咨询)
置业专属VIP:400-159-8559接通后输入分机号4567
来电了解在售户型面积丨最新销售公告!
温馨提醒:若您计划看房,为确保能享受到更优质、贴心的接待服务,请提前拨打此电话进行预约 。而且,还有免费看房车接送服务哦,若您有此需求,致电售楼处即可预约!
本资料不作为要约或承诺,图片、文字、数据等仅供参考,仅用于介绍房地产项目
大家期盼已久的保利琅誉户型图终于更新出来。保利琅誉项目位于武汉市洪山区铁机村铁机路与团结大道交汇处。在2025年2月17日,保利城四期-B区北片调整规划,商改住,2栋写字楼变成4栋住宅。该楼盘产品也做了升级了,是准四代产品,所以得房率相对较高。
该项目也打造下沉式会所,包含私宴厅、影音室、艺术书吧、健身房等空间。整体面南向立面窗墙比70%,交付时阳台统一封窗户,保障整体立面的统一性。
保利琅誉即保利城四期一共6栋房子分为AB两个区—-B区北片项目,共四栋住宅楼,其中1#38F,2#32F,3#25F,4#31F,2、3、4#都有架空层。保利琅誉一共360户,车位配比1:1.09。A区南片有2栋 住宅和商业5#32F和6#32F
【总占地面积】约4.1万㎡
【总建筑面积】约14.3万㎡
【容积率】约2.54
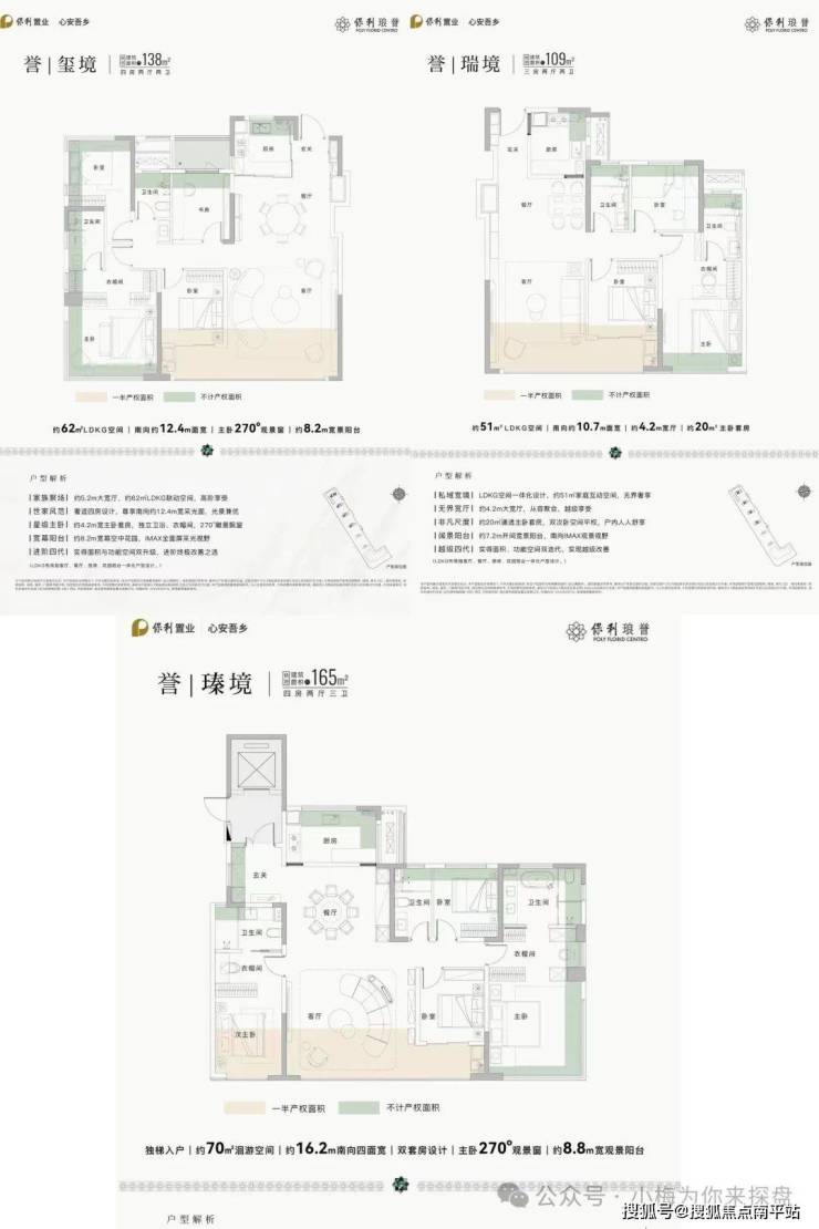
【主力户型】建面约108-165㎡艺术宽邸
预计2025年7、8月开放售楼部,9月首开2、3号楼,主推137㎡、163㎡户型,少量108㎡户型,毛坯交付,前期听说放风价在2万。
交通配套
地铁出行:周边有在建的家门口地铁12号线(团结大道站在建)。
开车出行;周边有团结大道和友谊大道,还有二环线。交开车还是蛮方便的。
商业配套
该项目周边之前保利城一期、三期自带的商业,周边约3KM范围内坐拥百万方旗舰商业:约30万方万象城、约18万方滨江天街、约20万方销品茂、约12万方亲橙万象汇、约14万方SKP,还是蛮方便的。
教育配套
周边有武昌实验寄宿小学,广埠屯实验小学、梨园中学等。具体还是等交房划片为准。
医疗配套
最近的医院就是武昌医院和梨园医院大概在3公里左右距离。
休闲配套
该项目离武昌江滩和东湖开车也在3公里左右的距离。
武汉保利琅誉售楼中心电话400-159-8559接通拨4567(本电话只用作售前咨询)
置业专属VIP:400-159-8559接通后输入分机号4567
来电了解在售户型面积丨最新销售公告!
温馨提醒:若您计划看房,为确保能享受到更优质、贴心的接待服务,请提前拨打此电话进行预约 。而且,还有免费看房车接送服务哦,若您有此需求,致电售楼处即可预约!
本资料不作为要约或承诺,图片、文字、数据等仅供参考,仅用于介绍房地产项目
声明:本文由入驻焦点开放平台的作者撰写,除焦点官方账号外,观点仅代表作者本人,不代表焦点立场。
