➢ ➢深圳【后海招商玺】售楼处位置:400-159-8559转接6666(售楼中心) ➢
➢深圳【后海招商玺】售楼处电话☎️400-159-8559转接6666(专人接听)
☎️☎️温馨提示:拨打400电话——听到嘀声后——输入【6666】即可通话☎️☎️ ➢ ➢☞☞Vip贵宾置业==欢迎
➢ ➢深圳【后海招商玺】售楼处位置:400-159-8559转接6666(售楼中心)
➢ ➢深圳【后海招商玺】售楼处电话☎️400-159-8559转接6666(专人接听)
☎️☎️温馨提示:拨打400电话——听到嘀声后——输入【6666】即可通话☎️☎️
➢ ➢☞☞Vip贵宾置业==欢迎来电预约尊享内部折扣===匠心钜制恭迎品鉴☜☜➢ ➢

蛇口顶豪【后海招商玺】197-237㎡首推臻选,12月即将入市,展厅已开放!

最新消息:
后海招商玺前身是原联合饼干厂城市更新单元,位于南山区招商街道后海大道以西、工业七路以北。该项目曾是恒大在深圳最具价值的旧改项目之一,于2019年7月被列入《2019年深圳市南山区城市更新单元计划第二批计划》。
恒大危机后,该项目一度搁置。直到2022年由招商蛇口接手,并成立合资公司推进开发。2025年2月,深圳招商蛇口华湾地产开发有限公司正式成为项目实施主体,项目推进速度显著加快。

基础信息:
1、开发商:招商蛇口华湾地产开发有限公司
2、物业公司:招商积余
3、物业管理费:待定
4、总占地面积:1.49万㎡
5、总建筑面积:15.08万㎡
6、容积率:6.59
7、绿化率:30%
8、产权年限:住宅70年,2025年6月-2095年6月
9、总户数:548户,其中可售商品房约258户
10、总栋数及楼高:4栋,21-46层
11、层高:3.3米
12、梯户比:1栋1单元2梯2户,2/3单元3梯3户
13、车位数:700个
14、车位占比:1:1.28
15、交房时间:期房待定,预计在2028年底
16、交房标准:精装

交通配套:
位于后海大道与工业七路交汇处,紧邻地铁2号线海月站和湾厦站,2站可达后海站并换乘11/13号线,10分钟直达市民中心站。陆路交通方面,下楼就是后海大道,通达深圳多条主干道如望海路、东滨路、滨海大道及白石路,15分钟可达南山科技园,20分钟覆盖前海、福田、宝中。特殊交通方面,太子湾邮轮母港提供跨境水上航线,可停靠22万吨级世界最大邮轮,30分钟直达香港机场。-具体更多详情,拨打售楼热线:☎️☎️400-159-8559转接7788【售楼中心】


商业配套:
后海招商玺周边3公里内商业配套极为丰富,最近的大型商场为宝能太古城,2公里范围内覆盖深圳湾万象城、海岸城、天利名城、来福士广场、蛇口招商花园城等多个大型购物中心,3公里有K11购物艺术中心。


教育:
后海招商玺当前对口南山区优质公立学校,根据南山区教育局2025年学区划分地图,项目属于育才二小+育才二中学区范围,这两所学校均属南山第一梯队学区。育才二小是南山区重点公立小学,育才二中为区属优质中学,教育质量稳定可靠。-具体更多详情,拨打售楼热线:☎️☎️400-159-8559转接7788【售楼中心】
项目自身规划配建一所幼儿园和一所九年一贯制学校(占地1.5万㎡),周边3公里内还有北师大南山附属学校(小学部和初中部)、育才三中等优质学校,形成多层次教育网络。此外,周边还有深圳贝赛思国际学校、蛇口国际学校等国际教育资源,满足不同家庭的教育需求。


后海招商玺家园,由招商集团打造,总占地面积约1.49万㎡,总建筑面积约15.08万㎡,计容建筑面积约11.13万㎡,容积率6.59,绿化率30%,共由4栋21-46层高住宅组成,其中1栋1单元住宅21F,1栋2/3单元住宅36F,1栋4单元回迁房46F,2栋是1所幼儿园。
总规划548户,1栋1单元2梯2户,1栋2/3单元3梯3户设计,地下室有4层,规划700个车位,车位配比约1:1.28。

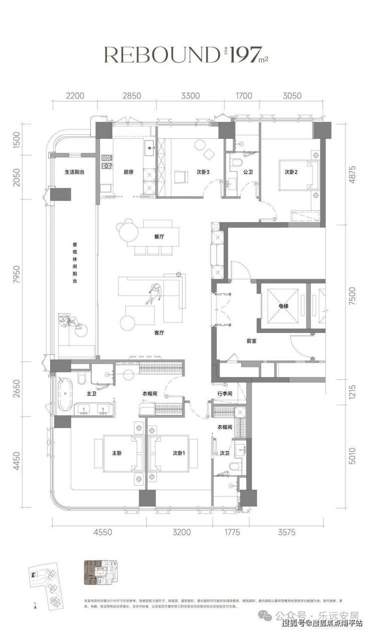
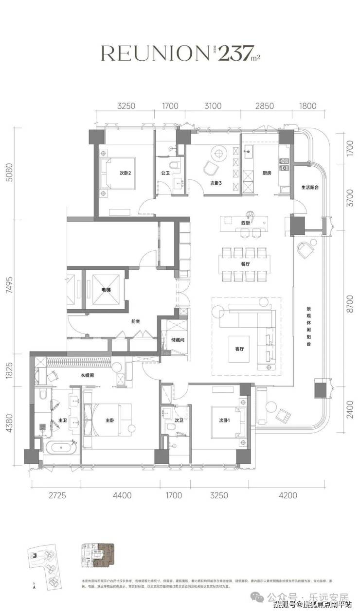
户型鉴赏:



➢ ➢深圳【后海招商玺】售楼处位置:400-159-8559转接6666(售楼中心)
➢ ➢深圳【后海招商玺】售楼处电话☎️400-159-8559转接6666(专人接听)
☎️☎️温馨提示:拨打400电话——听到嘀声后——输入【6666】即可通话☎️☎️
➢ ➢☞☞Vip贵宾置业==欢迎来电预约尊享内部折扣===匠心钜制恭迎品鉴☜☜➢ ➢
免责声明:本宣传资料所有文字、数据、图片及所标尺寸等仅为本项目建设区域设计效果的表达和示意,为要约邀请,不构成要约内容,相关内容不排除因政府相关规划、规定及其他原因而发生变化,一切有关房屋的具体信息以书面合同及政府最终审批文件为准。
免责声明:本文章文字、数据和图片皆来源网络,如有侵权请告知立马删除,数据图片仅供参考,不作为邀约或承诺。