深圳越秀•星科源启 ◆售楼处电话:400-159-8559转8666【售楼中心】
◆营销中心专线:400-159-8559转8666【欢迎致电-24小时专线】 ◆在线预约看房丨置业顾问一对一对接丨享受最低优惠 ◆首付月供计算丨营销中心位置丨小区环境丨最新房价详情
深圳越秀•星科源启
◆售楼处电话:400-159-8559转8666【售楼中心】
◆营销中心专线:400-159-8559转8666【欢迎致电-24小时专线】
◆在线预约看房丨置业顾问一对一对接丨享受最低优惠
◆首付月供计算丨营销中心位置丨小区环境丨最新房价详情

◆营销中心专线:400-159-8559转8666【欢迎致电-24小时专线】
越秀星科源启,位于光明区新湖街道光侨路与科学大道交汇处东南侧, 地处光明中心区板块,
西北侧与科学公园北翼相邻,东南侧则是充满欢乐的光明欢乐田园,北侧靠近中山大学深圳校区及其附属第七医院,南面距离光明高铁站仅4.8公里
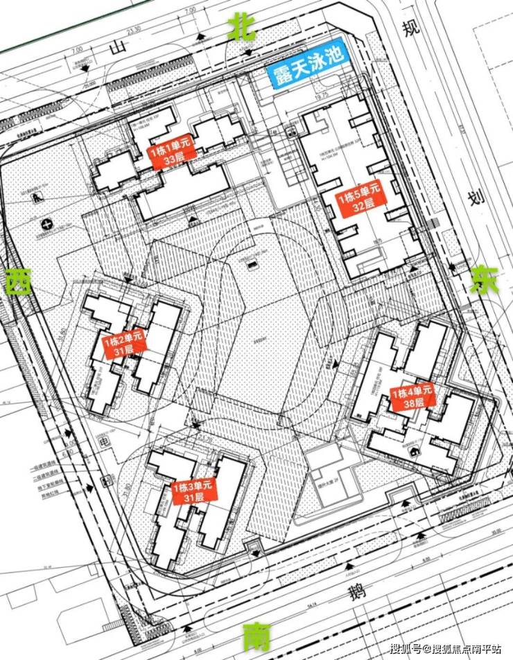
越秀星科源启,由越秀地产打造,总占地面积约3.87万㎡,总建筑面积约20.34万㎡,容积率5.3,绿化率30.03%,分3期3个地块开发, 共由10栋住宅组成,其中9栋是商品房,1栋是公租房,配建有1所18班制幼儿园。


越秀星科源启,这次首推的是 01地块,总占地面积约1.53万㎡,总建筑面积约13.68万㎡,计容建筑面积约9.55万㎡,容积率6.23,绿化率30.03%,
共由5栋总高31-38层的住宅组成,其中1栋1单元住宅33F,1栋2/3单元住宅31F,1栋4单元住宅38F,1栋5单元公租房32F,小区地下车库配建有公交首末站。
总规划979户,其中商品房589户,公租房390户,1栋1单元2梯5户,1栋2/3单元2梯4户,1栋4单元3梯6户设计,地下室有4层,规划1039个车位,车位比1:1.06。◆营销中心专线:400-159-8559转8666【欢迎致电-24小时专线】

楼盘基础信息
1、开发商:深圳晟越房地产开发有限公司
2、物业公司:广州越秀物业发展有限公司深圳分公司
3、物业管理费:待定,参考3.9元/㎡
4、总占地面积:1.53万/㎡
5、总建筑面积:13.68万/㎡
6、容积率:6.23
7、绿化率:30.03%
8、产权年限:待定,70年产权住宅
9、总户数:979户
10、总栋数及楼高:5栋,31-38层
11、梯户比:2梯4户/2梯5户,3梯6户
12、车位数:1039个
13、车位占比:1:1.06
14、交楼时间:期房,预计在2028年上半年
15、交楼标准: 精装
◆营销中心专线:400-159-8559转8666【欢迎致电-24小时专线】

【国企匠心筑造 品质保障】◆营销中心专线:400-159-8559转8666【欢迎致电-24小时专线】
🏙越秀集团
广州市国资委旗下直属国企,位居2025中国跨国公司TOP 11,总资产超万亿 实力雄厚
🏙越秀地产
香港上市企业,2025年中国房企综合实力TOP7,连续多年"三道红线"保持绿档的房企,财务安全稳健
🏙越秀服务
国家一级资质,以”越+美好生活服务体系”为客户提供美好生活

【国家战略高地 高新产业聚集】◆营销中心专线:400-159-8559转8666【欢迎致电-24小时专线】
光明科学城,是大湾区综合性国家科学中心(全国四个)核心承载区,汇聚鹏城云脑Ⅲ、超算二期等23个重大科技载体,形成生物医药、高性能材料等七大产业集群,吸引超19万人才进驻

【科学城核芯 科创菁英汇聚】
新湖板块汇聚光明科学城75%重大科技载体,包括深圳理工大学、中山大学(深圳)两所一流科研高校,深圳湾实验室、深圳医学科学院等科研院所,打造“产学研”高度融合区,吸引科创企业入驻,汇聚全球科创菁英

项目周边配套
交通配套:越秀星汇珑府邻近光侨路及科学大道等主干道,可以快速接驳龙大高速,南光高速,深圳外环高速,通达全市各大区域,小区楼下规划有公交首末站,目前已经开通运营的 地铁6号支线“圳美站”距离约900米, 6号线光明站距离约1.2公里,3站到凤凰城站 可换乘13号地铁线,5站到光明城站,这里可以换乘 光明城高铁站,7站到宝安上屋站,12站到南山西丽留仙洞,15站南山高新园,19站到后海。◆营销中心专线:400-159-8559转8666【欢迎致电-24小时专线】


学校配套:越秀星汇珑府 自带1所18班制幼儿园,邻近地块 规划有1所九年制公办36班学校,其中小学24班,初中12班,目前还没开始建设,具体引进的学校也暂未有信息透露出来,另外还规划有 深圳外国语楼村第四学校,总规模45个教学班,可容纳2100个学位,预计在2026年秋季开始招生。
商业配套:项目自带有 社区底商,可以满足日常生活需求,距离约2.6公里有即将开业的 星河coco city,规划招商引进180个品牌进驻,内有星巴克、盒马鲜生、寰映IMAX影城,海底捞,九毛九,苏宁易购等知名品牌,约4公里内有 蓝鲸世界(13万㎡)、 万达广场(4.5万㎡)等大型商圈,形成超30万平方米的商业集群。

户型图:◆营销中心专线:400-159-8559转8666【欢迎致电-24小时专线】





深圳越秀•星科源启
◆售楼处电话:400-159-8559转8666【售楼中心】
◆营销中心专线:400-159-8559转8666【欢迎致电-24小时专线】
◆在线预约看房丨置业顾问一对一对接丨享受最低优惠
◆首付月供计算丨营销中心位置丨小区环境丨最新房价详情
免责声明:本宣传资料所有文字、数据、图片及所标尺寸等仅为本项目建设区域设计效果的表达和示意,为要约邀请,不构成要约内容,相关内容不排除因政府相关规划、规定及其他原因而发生变化,一切有关房屋的具体信息以书面合同及政府最终审批文件为准。免责声明:本文章文字、数据和图片皆来源网络,如有侵权请告知立马删除,数据图片仅供参考,不作为邀约或承诺。