佛山【建发灯湖天峯】灯湖天峯售楼部电话-户型分析-开盘价格-2024楼盘详情
扫描到手机,新闻随时看
扫一扫,用手机看文章
更加方便分享给朋友
佛山【建发灯湖天峯】
开发商售楼处电话☎️400-159-8559转接2388 [专人接听]
本电话为开发商提供线上售楼电话,仅限服务购房相关咨询及预约
本文内容为广告推广,涉及房价或现有房源可能出现变更,请致电详询并以售楼部为准
免责:本文部分内容来自网络,如有侵权,请联系删除

大沥建发双子最近问的比较多,小编今天聊聊马上要开盘的建发天峯。
1·这个项目算是出身就备受关注。今年7月,建发在大沥连下两城,双双刷新地王排行榜。
岳利沙地块楼面价21036万元/㎡,总价9.4亿元;河西地块楼面价24350元/㎡,总价26.5亿元,打败曾经的华润陈村地王,成为佛山的新地王。
真的是很勇!
建发这个开发商可能有的朋友不算很熟悉,其实他在佛山不算新面孔了。佛山21-22年期间曾经在佛山新城有个项目,叫建发和鸣。
这个楼盘的一大亮点就是建发引以为傲的中式园林,当时入市客户反馈还不错,项目只用了不到两年就清盘,21年全年也能有将近13亿的业绩。
可能是初入佛山成绩不错,给了建发信心,很快,建发有联合花样年、德信在大沥开发了一个项目——三堂院。
这个项目目前还在售,开盘时卖2.3万/㎡,现在16xxx,这个价格至之上还可以有全屋家居家电、物管费赠送等等福利。
赚钱肯定是赚不到了,但是建发对大沥还是爱的深沉,深沉的可以用真金白银兑现——35个亿两块地。
2·
回归正题,聊聊项目。岳利沙地块也就是靠西的小地块叫天峯,东边的大地块地王叫缦云。
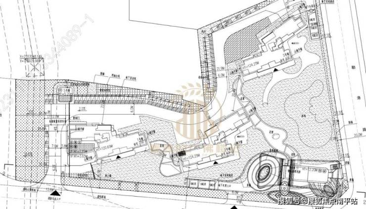
天峯预计年底入市。总体量不大,总占地面积14867.29㎡,计容建面44601.82㎡,容积率为3,绿地率为42.01%,规划住宅总计328套。
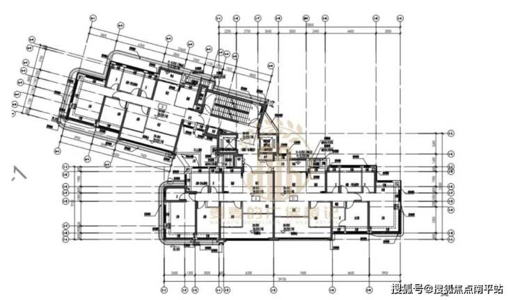
规划了3栋楼,1号楼39层,2号楼/4号楼都是40层,全盘超高层。户型130-135-150㎡。
项目现状是比较一般的。周边除了村就是田。隔河相望,是南海全民健身公园。好在项目会配建部分道路和开放式绿地公园。归根结底,还是靠卖地。
3·聊聊建发天峯的产品。
建发是厦门的国企,产品力不算差。前些年靠新中式大杀四方,灯湖两盘走现代路线,其实还是用了心的。
麦麦很少聊立面,因为很多项目的立面其实不值一提。有些纯涂料省成本,有些学会用玻璃幕墙了,聊来聊去也只能聊个窗墙比。
建发这次的立面除了大面积玻璃幕墙外,还是有一点建筑美学在里面的。
比如参考劳斯莱斯欢庆女神打造的楼顶塔冠,比如玻璃幕墙搭配香槟金的铝板,点缀了一点暖色系....
园林不说了,毕竟楼盘体量在这里。重点说说户型。
130㎡,竖厅设计客餐厅等宽,景观阳台联通客厅-次卧;南向3个卧室,1个北向次卧;主卧有L型转交飘。整体在及格线之上,不过有两个小瑕疵,一是入门没有专门的玄关位,后续可以餐厅柜体联通弥补收纳;二是主卧门直对主卫门,可能有些朋友会介意。
135㎡,亮点不少。比如双阳台,比如LDKG巨厅设计,比如主卧的全景飘窗,不过入户门对主卧门,见仁见智了。
151㎡,天峯最大的户型。比135㎡多了16㎡,多余的面积主要用在了提升主次卧的舒适度。整体布局和135㎡很像,但是次卧多了一个套间,主卧多了独立衣帽间和梳妆台。
4·建发这次是有认真对待大沥两地王的,公区上有些地方能看到花了一些心思,户型上可能我期待值太高,有提升但称不上惊艳,不过超过目前市面上80%的产品还是做得到。
至于值不值得买不买,问大家两个问题。
你能接受入门是豪宅、出门是荒原么(未来可能有变化)?
你觉得天峯和缦云、灯湖天珺价差多少合适呢?
来电回复“灯湖天峯”获取项目总图。预约看房电话:400-159-8559转接2388 [专人接听]
佛山【建发灯湖天峯】
售楼处电话☎️400-159-8559转接2388 [专人接听]
本电话为开发商提供线上售楼电话,仅限服务购房相关咨询及预约
声明:本文由入驻焦点开放平台的作者撰写,除焦点官方账号外,观点仅代表作者本人,不代表焦点立场。
