长沙「中建桃李九章二期」售楼处电话400 -159-8559转接6666,首开中学配套入读文件。区域位置紧邻岳麓山实验室,周边有美的云樾住宅项目,交通便利。售楼处指定网站预约热线,户型有143、110、185、128四种。
◆◆◆长沙「中建桃李九章二期」
售楼处电话☎️400 -159-8559转接6666【已认证】来电尊享优惠活动
◆◆◆长沙「中建桃李九章二期」
营销中心电话☎️400 -159-8559转接7788【售楼处指定网站】 预约热线
◆◆◆温馨提示——拨打400电话☎️ 听到嘀声后——输入分机号6666即可通话
中建·桃李九章是芙蓉区第一个双学位配套楼盘,在23年9月进行了首开,近期取得了中学配套入读文件,该盘受到了芙蓉购房者的追捧。在6月该盘二期规划曝光,包含了相应的楼栋规划、住宅户型规划。相应规划信息我们整理如下,供各位购房者参考!

中建桃李九章二期位于岳麓山实验室的西侧,紧邻一期。南侧为美的云樾住宅项目,距离北侧约 龙湖芙蓉天街最近点约500m,道路拉通后距离地铁站最近点约950m。

桃李九章二期区域位置

桃李九章二期周边情况
桃李九章二期效果图




左右滑动查看更多
04
二期整体规划
中建桃李九章二期为16栋住宅,一栋幼儿园及一栋商业。
总建筑面积19.4万方,住宅可售面积15.4万方,容积率2.7,绿地率35%。住宅楼栋总层数21层-26层,总共1164套住宅!

桃李九章二期总体规划数据

桃李九章二期景观布置图
05
二期户型规划及分布
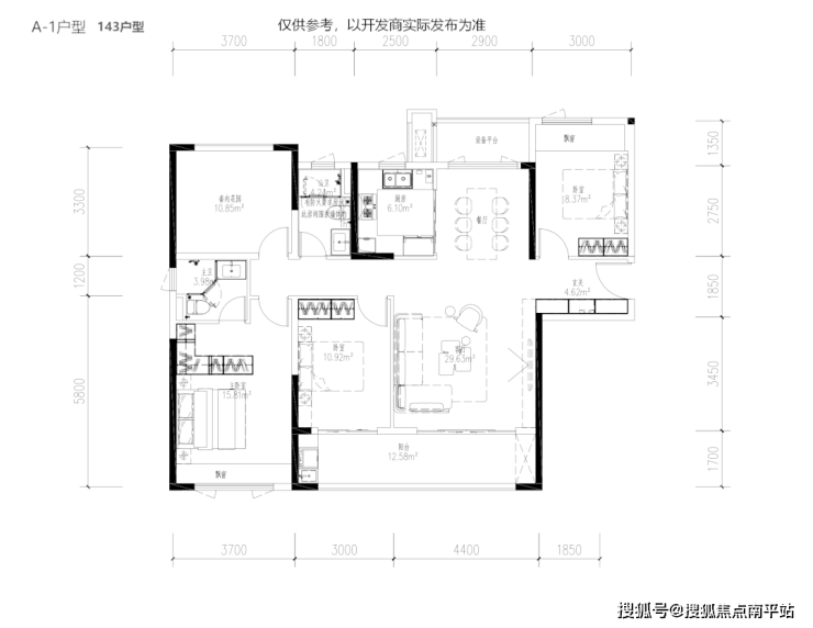
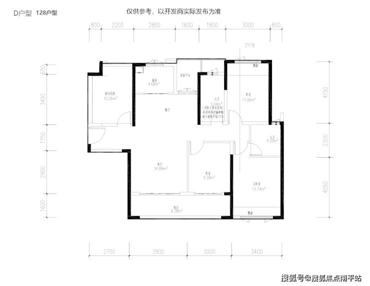
中建桃李九章二期户型规划有:143㎡、110㎡、185㎡、128㎡。其中:
143㎡户型占比56.4%、共计656套
110㎡户型占比31.5%、共计367套
185㎡户型占比5.5%,共计64套
128㎡户型占比6.6%,共计77套


桃李九章二期楼栋分布
19#-22#、25#-27#、29#-36#梯户比均为 2梯3户;其中户型为: 边户143㎡、中间户110㎡,143㎡户南北通透、采光较好。110㎡户型南北不通透,通风较差。
143㎡、110㎡、185㎡、128㎡户型建面规划如下(仅供参考,以开发商最终官宣户型图为准):
110户型

185户型

143户型

128户型

◆◆◆长沙「中建桃李九章二期 」
售楼处电话☎️400 -159-8559转接6666【已认证】来电尊享优惠活动
◆◆◆长沙「中建桃李九章二期 」
营销中心电话☎️400 -159-8559转接7788【售楼处指定网站】 预约热线
◆◆◆温馨提示——拨打400电话☎️ 听到嘀声后——输入分机号6666即可通话
免责声明:本宣传资料所有文字、数据、图片及所标尺寸等仅为本项目建设区域设计效果的表达和示意,为要约邀请,不构成要约内容,相关内容不排除因政府相关规划、规定及其他原因而发生变化,一切有关房屋的具体信息以书面合同及政府最终审批文件为准。
免责声明:本文章文字、数据和图片皆来源网络,如有侵权请告知立马删除,数据图片仅供参考,不作为邀约或承诺。