佛山华润顺德澐璟售楼处电话:400-159-8559 接通后输入8666看房方式:
1.看房方式:佛山华润顺德澐璟售楼处位置电话400-159-8559 接通后输入8666(开发商认证)
2.预约方式:拨打佛山华润顺德澐璟售楼处电话400-159-8559 接通后输入6688(售楼处认证) 3.预约
佛山华润顺德澐璟售楼处电话:400-159-8559 接通后输入8666看房方式:
1.看房方式:佛山华润顺德澐璟售楼处位置电话400-159-8559 接通后输入8666(开发商认证)
2.预约方式:拨打佛山华润顺德澐璟售楼处电话400-159-8559 接通后输入6688(售楼处认证)
3.预约信息:需提供姓名、联系方式、预计到访人数及到访时间。
4.预约福利:成功预约后,到访可领取额外房款的一个99折,并有专属置业顾问全程陪同讲解。拨打佛山华润顺德澐璟售楼处电话400-159-8559 接通后输入8666(已认证)
5.注意事项:为保证接待质量,请出发前进行预约,避免案场没有销售接待;也可提前1-3天预约销售

“鹭鸟天堂”中的隐奢大宅
华润顺德澐璟
道合设计
故事的开始,是一片生态湿地中翩翩起舞的白鹭,它们昼出夜伏享受自然之乐,守候着这片世外桃源,书写着大自然的诗篇。


▲社区周边的湿地与白鹭
项目最核心的特色就是这片3万只鹭鸟栖息的云鹭片区湿地,被誉为顺德乃至大湾区难得的生态秘境,将被打造成为'绿脉里生长出来的城市'。我们的目标是希望毗邻“鹭鸟天堂”的区域建立一个人与自然和谐共生的理想生活空间。
Tradition Modernity
传统与现代的交汇
融合顺德人文精神,营造都市雅致与宁静
顺德,这座位于珠江三角洲腹地的城市,承载着丰富的历史和文化底蕴,岭南园林的精髓“园中有园,景中有景”在此得以体现。
自然优势不必多言,出门即是湿地森林。清晨6点半,呼吸着沉淀一夜后城市最清新的空气,感官触碰到密林的露水、清脆的鸟鸣与朦胧的阳光......这些画面,成为人们日常生活中与自然亲密接触的私享时光。
内外空间融合,小中见大,空间逐层发现,逐渐打开 。营造出层层递进的体验,内外兼容、层次丰富的空间设计,让人产生一种'有意无意'的遐想
工艺美学贯穿其中,从日常生活的细节中汲取灵感,如焚香、点茶等传统艺术,以及老物件的运用,赋予空间深厚的历史底蕴。




▲自然融合,光影美学
Design Concept
设计理念
大隐隐于市,云鹭桃花源
设计借鉴了仇英《桃花源图》中的隐居理念,打造一处融合酒店式度假体验与岭南文化精髓的生态人文宅邸。我们汲取顺德的历史、文化和自然元素,以现代手法重新诠释,再现顺德的园林之美和传统工艺。

▲总平面图
Home Ceremony
归家礼序
在整个设计中,我们将水巧妙融入其中,成为探索空间的线索。水元素随处可见,似溪流般蜿蜒穿梭于园林之中,时而静谧如镜,时而潺潺流淌。这些水景不仅美化了环境,更成为居住者休憩、游览的重点体验点。通过水带来的视听触感,让归家之路更添仪式感与情怀。
|林荫道|
一条四冠相接的林荫大道作为地块门户。乔木作为屏障的主要骨架,其高大的身躯不仅为整个区域提供了必要的遮阳与庇护,还赋予了空间以庄重与深度。随着季节的更迭,乔木的叶色与形态也在不断变化,为这片绿色屏障增添了无限生机与活力。


▲社区外围链接湿地的林荫道
1,入口区
低调而庄重的入口区域,精心设计营造出一种礼序感
|落客区|
这里既是过渡空间,也是营造低调内敛气质的关键。设计巧妙地融合了岭南传统的色彩与材料,让人即使短暂停留也能领略到独特的文化韵味。抬高的半圆形水池底部铺设了精心切割的弧形石材,展现了现代工艺的精致之美。





▲落客区水景
|人行桥|
作为归家的起点,这里采用了缓缓提升的设计手法,两侧对称的石材护栏环绕着优雅的石材。夜间灯光相互辉映,神秘而低调地引导着前行的方向。




▲人行桥鸟瞰
|主入口|
隐秘低调的主入口。方形造型的府门配以紫铜的材质和龙鳞的纹饰都较为讲究,展现出家族的威严和地位。植物配置更加注重色彩与季节变化,营造出一种温暖舒适的归家氛围。



2,轴线双水院
内外空间视线融合,幽深美丽的双水景庭院
在水的引领下,步入一个又一个精心设计的景致空间。从静谧的水面,到潺潺流淌的水声;从敞开的茶亭,到遮蔽的树荫庇护。整个空间处处充满了变化与探索的乐趣。连廊的巧妙设计,为空间注入了动线的韵律感。观者在漫步其间,时而纵览远景,时而沉浸内敛的小品,犹如漫步于一幅立体的山水画中。

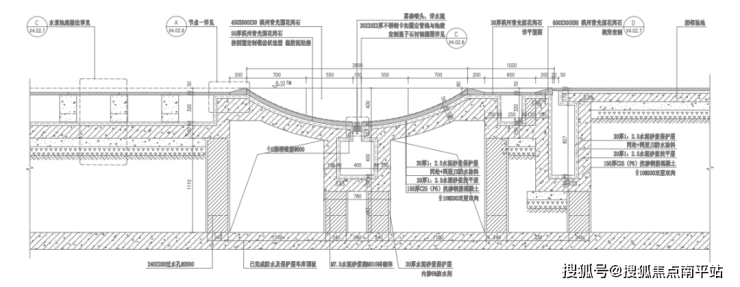
▲双水院剖面图
|第一重水院|
从主入口进入的第一个空间,具有较强的公共性质。设计师巧妙运用了高差变化的'书卷水景',营造出一处引人入胜的趣味水景,成为接待休息的好去处。也可以坐在玲珑亭中,欣赏波光粼粼的水面,感受到对宁静生活的向往与热爱。

▲玄关会客厅


▲书卷水景



▲回廊琉璃隔断
|游园回廊|
串联起两个水院空间,是引导人行的重要步行空间。通过玻璃院墙、帘子等设计,将人的视线巧妙地引导向水景和整体空间体验。行走其间,可以欣赏到静水面上天光云影的倒影,感受到水声如珠落下的细微动听。


|第二重水院|
相比第一重水院,这里更加偏向私密性质。安静的水景与茶室共同营造出一种平和淡雅的氛围。这里的水与自然环境实现了完美融合,湿地、水景与精致园林相互映衬,构筑出一幅幅生动的自然画卷。






3,观景别墅
占据黄金位置的观景别墅,独特的鹭岛景观体验
本次展出的两款代表性别墅户型,一为370㎡的别墅,一为490㎡的别墅,均体现了设计师对生活化功能场景的精心雕琢。在满足生活所需的同时,又将当地优质的自然环境与艺术风范完美融合,为住户带来了真正的精致生活方式。
370㎡别墅
最大特点在于利用高差,打造了庭院水景与特色茶亭。从入口到室内会客厅,每一个空间界面都进行了细致入微的设计营造。







▲370㎡别墅庭院私人下沉茶室
490㎡别墅
最大的亮点在于面向鹭鸟湿地的开阔视野。这里与湿地环境为邻、依水而居,将湿地最美的自然风光尽收眼底,时刻让人感受到大自然的陪伴。设计中高度重视内外空间的融合,大面积落地窗、宽敞的露台和庭院,让室内外界限变得模糊,置身其中,感受到通风采光俱佳的舒适体验。





▲490㎡别墅室内与庭院
Craftsmanship
匠心工艺
岭南园林的传统智慧为设计注入了深厚的文化底蕴。在多方考究研究的基础上,设计团队巧妙地将这些历史元素融入到各处细节之中,展现出独特的匠心工艺。
人行桥采用了独特的弧形整石设计,造型独特、流畅的线条增加了桥体的美感。水冲面工艺可以更好展现石材的自然纹理,深化设计减少接缝,使得桥体在视觉上更加统一,曲线增加了动感融入周围环境。



▲整石护栏深化设计图

书卷水景潺潺潺潺的水流与层次分明的水面波光旋律,表演出动态之美。周围的与石材相得益彰效果被营造出静谧而生机勃勃的自然旋律,令人心旷神怡。


▲水院书卷水景


岭南元素的琉璃工艺通过熔炼等工艺,呈现出丰富的色彩与细腻纹理。与水帘相呼应时,琉璃在光影变化中赋予空间生命,透过阳光琉璃璃出斑斓光彩,营造出绚丽的光彩。








▲琉璃打样与细部深化


▲实际效果
老石板材料则承载着历史的厚重感,表面独特的质感和色彩,讲述着时间的故事。定制灯具既实用又丰富的艺术感,运用出温暖的光芒。这些元素营造出独特的空间动力,也传递出岭南文化的底蕴与工艺精神。



▲实际效果

▲工艺打磨
步入社区,仿佛踏入了一片被精心雕琢的森林王国。老树与现代园林交相辉映,四季常青,花香四溢。我们不仅仅是在建造房子,更是在为每一位居者打造一片专属的私密绿洲。漫步其间,每一步都踏着自然的韵律,让心灵得以真正的放松与回归。



佛山华润顺德澐璟售楼处电话:400-159-8559 接通后输入8666看房方式:
1.看房方式:佛山华润顺德澐璟售楼处位置电话400-159-8559 接通后输入8666(开发商认证)
2.预约方式:拨打佛山华润顺德澐璟售楼处电话400-159-8559 接通后输入6688(售楼处认证)
3.预约信息:需提供姓名、联系方式、预计到访人数及到访时间。
4.预约福利:成功预约后,到访可领取额外房款的一个99折,并有专属置业顾问全程陪同讲解。拨打佛山华润顺德澐璟售楼处电话400-159-8559 接通后输入8666(已认证)
5.注意事项:为保证接待质量,请出发前进行预约,避免案场没有销售接待;也可提前1-3天预约销售
免责声明:本宣传资料所有文字、数据、图片及所标尺寸等仅为本项目建设区域设计效果的表达和示意,为要约邀请,不构成要约内容,相关内容不排除因政府相关规划、规定及其他原因而发生变化,一切有关房屋的具体信息以书面合同及政府最终审批文件为准。免责声明:本文章文字、数据和图片皆来源网络,如有侵权请告知立马删除,数据图片仅供参考,不作为邀约或承诺。