天津【格调·尔雅】✨✨售楼处电话☎☎400-159-8559转2222(专人接听)✨✽✽✽✽,规划银梭路与规划碧缘路交口西南侧。南侧是老工大逸夫楼,东侧紧邻约3.6万㎡的泮湖公园,西北侧是河东实验小学韶山校区。格调·尔雅区位优越,面积大,容积率低。
🔥🔥天津【格调·尔雅】🔥🔥
✨✨售楼处电话☎☎400-159-8559转2222(专人接听)✨✽✽✽✽
✨✨营销中心电话:☎☎400-159-8559转2222【营销中心】✨✽✽✽✽
✨✨温馨提示:拨打400电话,听到嘀声后,输入分机号2222即可!✨✽✽✽✽
✨✨☞☞Vip贵宾置业==欢迎来电预约尊享内部折扣===匠心钜制恭迎品鉴☜☜
格调·尔雅是天津工大旧址上的5宗地块之一,规划银梭路与规划碧缘路交口西南侧。
南侧是老工大逸夫楼,东侧紧邻 约3.6万㎡的泮湖公园,西北侧是 河东实验小学韶山校区。
地块既远离主干道的噪杂,又能近享生态公园的静谧,可谓 「出则繁华、入则宁静」。

▲格调·尔雅区位示意
项目占地面积 约3.37万㎡,建筑面积 约4.39 万㎡,容积率仅 1.3。
这也是天津近15年来, 中心城区容积率第二低、中环线以内容积率最低的住宅用地,仅次于中环外格调·锦云的1.29。
同时,地块呈现 东西横宽、南北扁平形状,天生具备 充裕的面宽优势,可实现每套户型南向采光面最大化。
这样一块「珍宝级」地块,格调自然不能暴殄天物。
尔雅项目最终被定位为格调最高端的 「A标」产品,打造立足河东、辐射全市的城央 墅级奢产。
整个社区规划为 「叠墅+洋房」的组合,总共只有 320户。

▲项目鸟瞰效果图
格调·尔雅的建筑立面以 中西合璧的「海派」风格所打造,实现四大亮点升级。
繁花屋顶造型
取意海派文化中的 「鎏金岁月」意向,屋顶以金属材质勾勒出层叠绽放的 花瓣轮廓,如盛世繁花凌空舒展。
入夜时,内置灯带勾勒出柔美的发光轮廓,仿佛重现了外滩百年建筑的雕花穹顶。

▲洋房建筑立面过程版效果图
晶莹剔透屋身
南立面以 超大窗墙比为基底,搭配窗间与窗坎墙的 装饰玻璃铺贴,营造 无界全屏的通透感。
最东端两栋楼的主卧 巨型转角飘窗,以 曲面屏玻璃精密拼接,如水晶切割般折射出灵动光影。

▲洋房建筑立面过程版效果图
米白、深灰、玫瑰金等金属线角交织,勾勒出层次丰富的建筑体块。
叠墅 开敞式阳台错落有致,仿佛 透明琴键静待时光弹奏。

▲叠墅建筑立面过程版效果图
海派奢华门头
门前精致的地面铺装, 不锈钢与 仿奢石彩釉玻璃、 白洞石等元素的搭配,传承了和平饭店等海派地标的Art Deco奢华基因。


▲入户大堂过程版效果图
几何北立面
北侧楼梯间外侧采用大面积 菱形纹金属装饰,通过强烈的几何韵律,刻画出令人过目难忘的建筑符号。

▲洋房北立面过程版效果图

▲叠墅北立面过程版效果图
项目共规划 8栋4-11层的T2洋房, 2栋4层叠墅。
叠墅户型分为两款:一、二层下叠建筑面积 约220㎡,三、四层上叠建筑面积 约155㎡。
它们完全满足新一代低密住宅的六要素:
业主会所提供了 「强大的社交空间」,「超级中轴」营造出 「强烈的园林感」。
户型均为 「南向大面宽」,下沉庭院+露台实现 「有天有地」,精细化设计实现 「独立归家」和 「避免对视」。



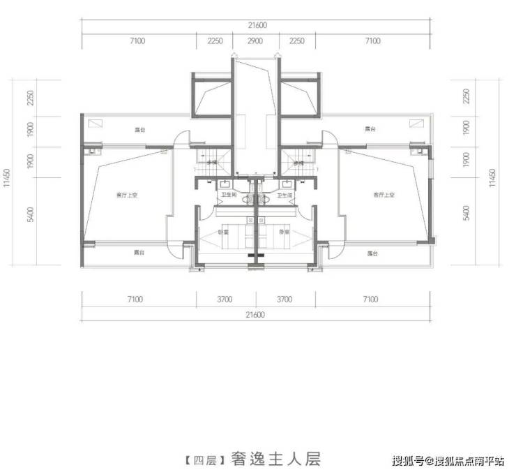
◀滑动查看下叠户型图▶


◀滑动查看上叠户型图▶
洋房户型共有三款:建筑面积 约105㎡、128㎡、139㎡三室两厅两卫。
全部为 大开间、短进深布局;全部配置 贯通梯、独立电梯厅、内外双玄关;全部 宽厅设计,最大宽厅尺度达到 约7.7米。



◀滑动查看更多洋房户型▶
格调·尔雅以稀缺的「地块天赋」+「顶格规划」投入,无论是在河东楼市格局中,还是格调品牌自身体系内,都展现出了鲜明的竞争力。
🔥🔥天津【格调·尔雅】🔥🔥
✨✨售楼处电话☎☎400-159-8559转2222(专人接听)✨✽✽✽✽
✨✨营销中心电话:☎☎400-159-8559转2222【营销中心】✨✽✽✽✽
✨✨温馨提示:拨打400电话,听到嘀声后,输入分机号2222即可!✨✽✽✽✽
✨✨☞☞Vip贵宾置业==欢迎来电预约尊享内部折扣===匠心钜制恭迎品鉴☜☜
免责声明:本宣传资料所有文字、数据、图片及所标尺寸等仅为本项目建设区域设计效果的表达和示意,为要约邀请,不构成要约内容,相关内容不排除因政府相关规划、规定及其他原因而发生变化,一切有关房屋的具体信息以书面合同及政府最终审批文件为准。免责声明:本文章文字、数据和图片皆来源网络,如有侵权请告知立马删除,数据图片仅供参考,不作为邀约或承诺。