官网:深圳后海招商玺售楼部-项目新动态-请看图文解析↓@-后海招商玺2026最新优势户型图_交通地铁_楼盘地址→最新动态
扫描到手机,新闻随时看
扫一扫,用手机看文章
更加方便分享给朋友
2025-2026年,豪不夸张的说,是深圳的顶豪元年。
深圳湾新盘扎堆入市,后海招商玺——招商蛇口倾力打造的“玺系”全新力作,也加入了战场。是继蛇口双玺花园、太子湾招商玺后,又一个顶级豪宅。
二批次加推2单元188㎡-237㎡-247㎡三个户型,和一期区别不大,后期会开放实体样板间,预计6月份入市!
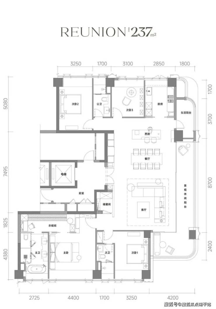
一期户型图,仅供参考:
197㎡
4房2厅3卫设计,全屋通透明厨明卫,豪气阔绰的客餐厅超大通厅,带来云端墅居的空间感。
该户型还高配约8m长的极目宽景阳台,空间面积达到约22㎡。
237㎡
项目介绍
项目占地约1.5万㎡,总建面约15万㎡,由4栋住宅及1所幼儿园组成。商品房总计仅261户,户均面积约218㎡,主打约188-247㎡纯粹大平层社区。共548户(261套商品房/287户回迁房),配700个车位。
项目位于南山区招商街道近海路以东、后海大道以西、荔园东路以南、工业七路以北。紧邻深圳湾和蛇口豪宅区,地理位置优越。
地段和景观,对比信悦湾和澐玺差一点,价值上也有一定差距。同样是200平面积段产品,有着近1000万的差价,均价相差5万/㎡。
户型设计是几个新盘里最好的,得房率高,197㎡起步都是标准4房。招商“玺”系列出品一直很稳,都是顶豪标杆,用材用料非常扎实。
加上有育才学位,综合评分还是很高的。适合想买豪宅品质,又追求性价比的群体。
免责声明:本宣传资料所有文字、数据、图片及所标尺寸等仅为本项目建设区域设计效果的表达和示意,为要约邀请,不构成要约内容,相关内容不排除因政府相关规划、规定及其他原因而发生变化,一切有关房屋的具体信息以书面合同及政府最终审批文件为准。免责声明:本文章文字、数据和图片皆来源网络,如有侵权请告知立马删除,数据图片仅供参考,不作为邀约或承诺。
声明:本文由入驻焦点开放平台的作者撰写,除焦点官方账号外,观点仅代表作者本人,不代表焦点立场。
