🔥🔥深圳【后海招商玺】🔥🔥
💗售楼处电话☎☎400-159-8559转3333(专人接听)💗
💗营销中心电话:☎☎400-159-8559转3333【营销中心】💗
💗温馨提示:拨打400电话,听到嘀声后,输入分机号3333即可!💗
💗☞☞Vip贵宾置业==欢迎来电预约尊享内部折扣===匠心钜制恭迎品鉴☜☜💗
作为招商蛇口在后海核心区的“玺”系列的升级力作,下面我们一起来看看「后海招商玺」如何突破豪宅市场重围。

真正的顶级作品,始于对土地与根基的敬畏与革新。
后海招商玺的稀缺性,在地段优势以外,主要根植于两项 “不计成本”的底层选择。
一是土地定制,后海核心稀缺纯板楼。
在后海——深圳公认的顶级豪宅区,密集耸立着无数塔楼住宅。而后海招商玺,是片区目前稀缺纯板楼设计。
在深圳最贵的土地上,项目毅然放弃了能快速兑现的开发强度,选择以板楼布局,将珍贵的土地资源“让渡”给每一户的采光、通风、视野与静谧。
这不仅是形态的差异,更是开发理念的分野。
后海招商玺项目效果示意图

二是结构革命,打造“漂浮的空中岛屿”。
为最大化这份奢侈,项目进行了一场“骨骼级”的革新。
通过整体抬升约12米打造“超级底盘”,后海招商玺在物理与心理层面,构筑了一个专属的“浮岛甲板”。
喧嚣被隔绝于下,之上托起的,是一个宁静、私密、对景不对人的空中花园聚落。
后海招商玺项目效果示意图

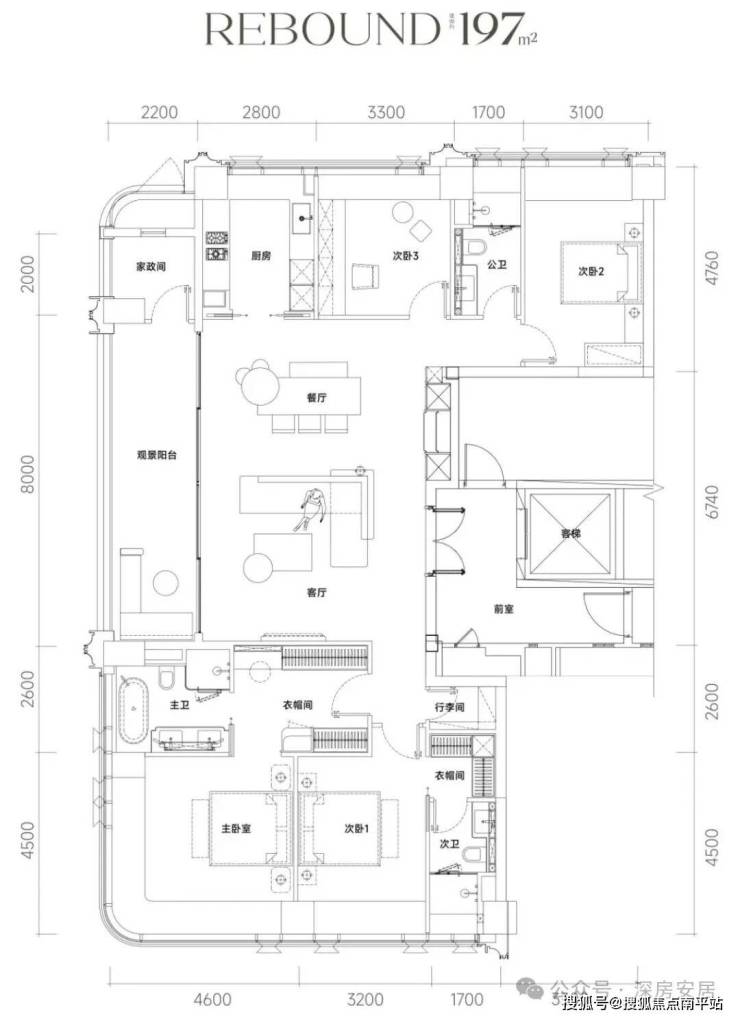
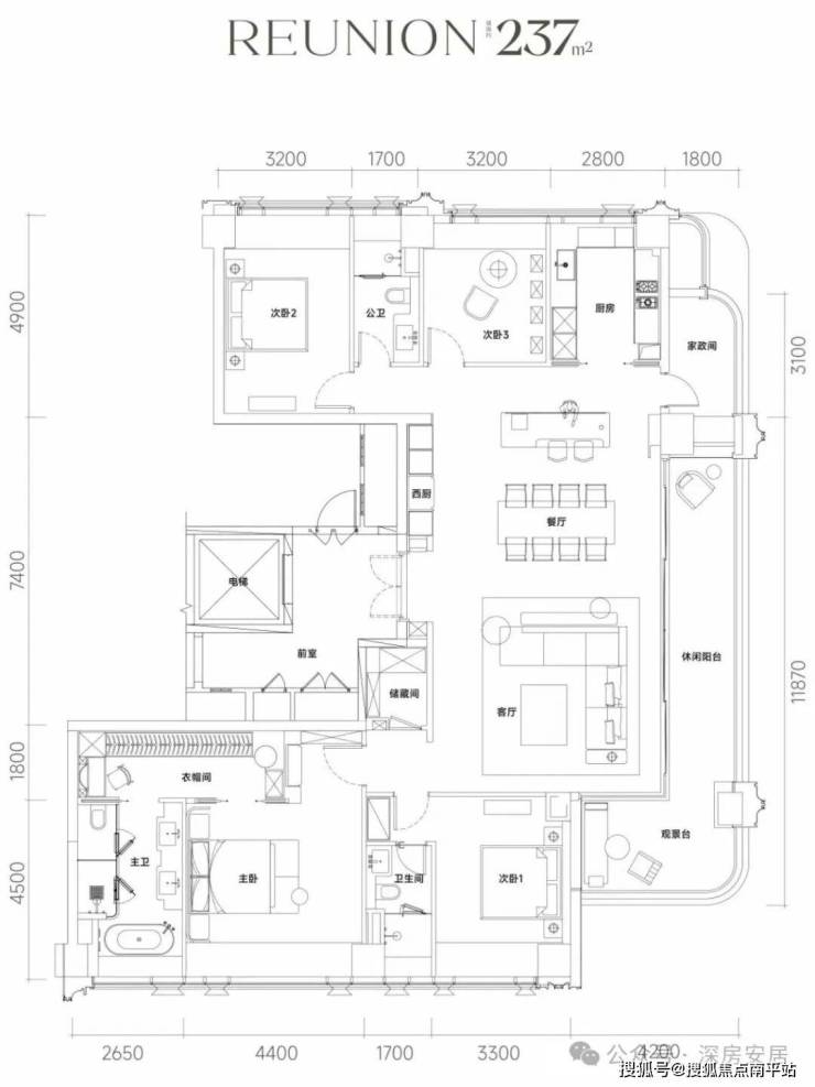
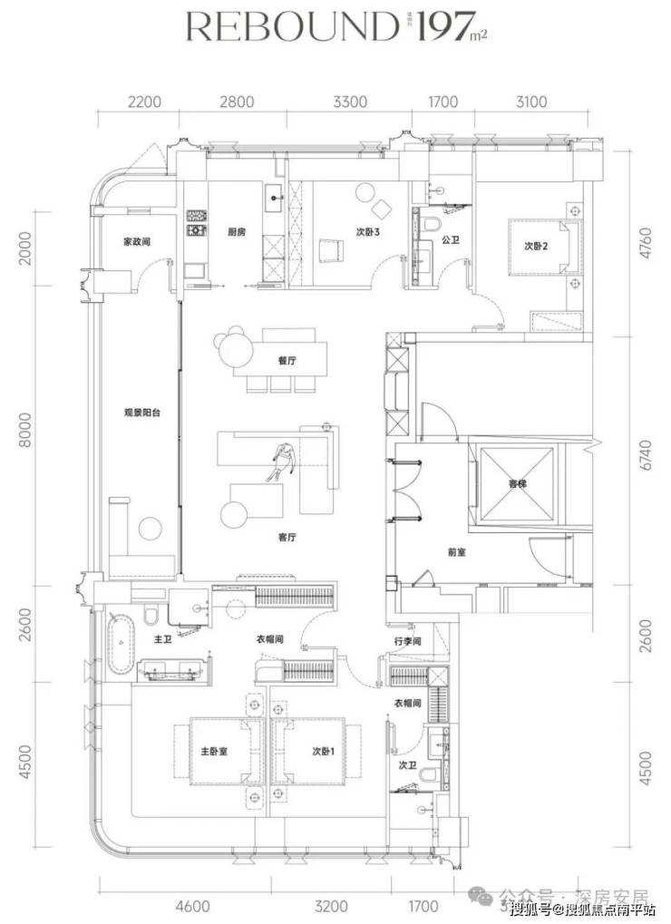
最新官方户型图



后海玺家园位于南山区招商街道近海路以东、后海大道以西、荔园东路以南、工业七路以北。


后海玺家园效果图
用地面积14969.93㎡,计容建面98754㎡ ,其中:住宅88449㎡,商业、办公及旅馆业建筑2100㎡,公共配套面积8205㎡。
其容积率由最早的8.9调整至6.5,与此同时,招商接手后砍掉了人才住房和保障性住房。
楼栋分布图

🔥🔥深圳【后海招商玺】🔥🔥
💗售楼处电话☎☎400-159-8559转3333(专人接听)💗
💗营销中心电话:☎☎400-159-8559转3333【营销中心】💗
💗温馨提示:拨打400电话,听到嘀声后,输入分机号3333即可!💗
💗☞☞Vip贵宾置业==欢迎来电预约尊享内部折扣===匠心钜制恭迎品鉴☜☜💗
免责声明:本宣传资料所有文字、数据、图片及所标尺寸等仅为本项目建设区域设计效果的表达和示意,为要约邀请,不构成要约内容,相关内容不排除因政府相关规划、规定及其他原因而发生变化,一切有关房屋的具体信息以书面合同及政府最终审批文件为准。免责声明:本文章文字、数据和图片皆来源网络,如有侵权请告知立马删除,数据图片仅供参考,不作为邀约或承诺。