官方网站-厦门【国贸天琴海营销中心】最新首页(国贸天琴海售楼处电话)首页网站-销售中心-小区环境-户型-价格-地址-楼盘详情-周边配套
扫描到手机,新闻随时看
扫一扫,用手机看文章
更加方便分享给朋友
国贸天琴海售楼处电话:400-159-8559转接1111【售楼处线上电话】
国贸天琴海售楼处电话:400-159-8559转接1111【营销中心VIP通道】
国贸天琴海销售中心『首页网站』楼层_价格_户型_配套_房源销售详情
免责声明:(本文章所用信息图片来源于网络,如有侵权请联系本网站及时删除

九栋楼栋以三排整齐排列,错落有致,高低错落的设计特色为建筑带来了别样的动感气息。同时,主体设计充分汲取了湾海背后的海洋文化精髓,将其融合于建筑之中。
流体美学元素被巧妙地融入立面设计中,通过极简流线型的勾勒,为建筑注入更加优美的造型美感。这种别样的设计元素,为九栋楼栋营造出独具特色的建筑风貌,让人无法忽视其独特魅力。
顶部转角的弧形,大开大合,极富张力,给人一种海浪的冲击感。


除了能享受纯熟的五缘湾生活配套外,项目还能拥有东南面的湾海双景,部分朝东的大户型景观视野不错。
而且,这也是五缘湾板块新盘中罕见的100平以下户型,其中,具备优质景观的大平层户型面积为258平,而价格也相当实惠,项目限价7.18万。

8、9、10号楼意向登记即将截止,一房一价表:

01
核心推荐理由
01 核心区位
位于厦门岛内五缘湾内湾核心位置,拥有非常稀缺的东南面湾海双景观资源。
02 标杆立面形象
湾海背后的海文化,将游艇设计理念引入,代表着超前的海湾人居形象。
03 定制化的墅级产品
超越当下的创新,前瞻未来的审美,打造鹭岛难以复制的TOP级产品。
社区入口采用酒店式大堂形式,立面以滨海风格为主调,园林择取鸢尾花为核心元素,定制古典主义庄园,实现滨海与古典交融,让所瞰之处,皆是海洋风情的艺术表达,在古典和浪漫中,形成尊贵的归家感受。

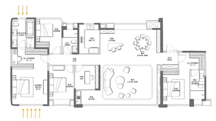
在户型设计中,天琴海也给出了湾区近乎满分的答卷,如建面约215㎡天樾户型,用大面宽+短进深的设计,为五缘湾带来罕见的通透大平层。南向瞰景面合计约22米,超越岛内同等面积的户型面宽。户型同时做到了“全明”采光,通透的11室,全屋无暗房。

装修创意效果图(过程稿)
墅级空间设计理念,在平层之内构造出类墅的生活方式。双主卧分布户型两端,照顾多代人起居。极致的户型设计,使得在五缘湾一步到位的置业需求,被完美锁定。

装修创意效果图(过程稿)
而建面约258㎡藏品级大平层,270°游艇级观景角度,东南向超35米的寰幕湾海景观,全屋9向湾海景观、13向瞰景视野。

国贸天琴海售楼处电话:400-159-8559转接1111【售楼处线上电话】
国贸天琴海售楼处电话:400-159-8559转接1111【营销中心VIP通道】
国贸天琴海销售中心『首页网站』楼层_价格_户型_配套_房源销售详情
免责声明:(本文章所用信息图片来源于网络,如有侵权请联系本网站及时删除
声明:本文由入驻焦点开放平台的作者撰写,除焦点官方账号外,观点仅代表作者本人,不代表焦点立场。
