✨天津绿城桂语安澜✨✽✽✽✽ 售楼处电话☎:400-159-8559转6688【售楼处认证】⭐⭐⭐⭐
✨✨温馨提示:拨打400电话,听到嘀声后,输入分机号6688即可!✨✽✽✽✽ ⭐在售户型图⭐项目介绍⭐最新房源⭐周边配套详细解 ⭐*开发商营销中心诚挚邀请,一键预约,
✨天津绿城桂语安澜✨✽✽✽✽
售楼处电话☎:400-159-8559转6688【售楼处认证】⭐⭐⭐⭐
✨✨温馨提示:拨打400电话,听到嘀声后,输入分机号6688即可!✨✽✽✽✽
⭐在售户型图⭐项目介绍⭐最新房源⭐周边配套详细解
⭐*开发商营销中心诚挚邀请,一键预约,尊享内部折扣!匠心独运的精品项目,恭候您的品鉴与选择!

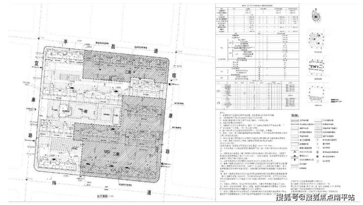
近日消息,天津港保税区官网发布关于《津滨保(挂)2024-13号地块项目二期建筑设计方案总平图进行公示》,至此,该项目两期规划均已亮相。

据核实,该项目即绿城·桂语安澜(案名),位于天津港保税区空港经济区二期,纬二道与宜康路交口附近,总用地面积32907.1平方米,计划分两期同步建设。

01丨一期规划
本期申报建筑面积:42190.86平方米,规划居住户数:206户,机动车停车位:247辆,非机动车停车位:107辆。

02丨二期规划
本期申报建筑面积:32767.27平方米,规划居住户数:150户,机动车停车位:239辆,非机动车停车位:98辆。

03丨实景进展
目前,该项目正稳步建设中,与之一路之隔的空港国际水系,脉络也已清晰可见。

04丨更多消息
据悉,5月29日,绿城·桂语安澜首开告罄,以劲销3亿元的斐然战绩,问鼎首开榜,书写高端人居市场“现象级”热绩。

与此同时,随着该区域多个新住宅+商业地块的陆续上架,大开发工作也将逐渐展开,共同期待吧。
✨天津绿城桂语安澜✨✽✽✽✽
售楼处电话☎:400-159-8559转6688【售楼处认证】⭐⭐⭐⭐
✨✨温馨提示:拨打400电话,听到嘀声后,输入分机号6688即可!✨✽✽✽✽
⭐在售户型图⭐项目介绍⭐最新房源⭐周边配套详细解
⭐*开发商营销中心诚挚邀请,一键预约,尊享内部折扣!匠心独运的精品项目,恭候您的品鉴与选择!
免责声明:本宣传资料所有文字、数据、图片及所标尺寸等仅为本项目建设区域设计效果的表达和示意,为要约邀请,不构成要约内容,相关内容不排除因政府相关规划、规定及其他原因而发生变化,一切有关房屋的具体信息以书面合同及政府最终审批文件为准。免责声明:本文章文字、数据和图片皆来源网络,如有侵权请告知立马删除,数据图片仅供参考,不作为邀约或承诺。