保利星宸天奕项目位于长沙开福区,是保利顶序「奕系」华中首作,预计4月开放售楼部,周边配套完善,户型多样,备受关注。💗鉴赏热线✆✆400-159-8559转5158(官网认证)💗
🔥长沙【保利星宸天奕 】🔥
💗鉴赏热线✆✆400-159-8559转5158(官网认证)💗
💗营销中心电话:☎☎400-159-8559转5158【专人接听】💗
💗【售楼中心】网上售楼中心〢欢迎来电咨询💗
💗〢专业一对一热情服务给您专业的置业方案💗
💗〢期待您成为我们的尊贵的业主💗
备受关注的保利下大垅项目案名公布: 保利星宸天奕 。
项目是 保利发展顶序「奕系」的华中首作 ,「星宸」凝聚星辰与宸宇之意,呼应长沙星城美誉。
据悉,项目预计下周开放展厅,4月开放售楼部。

保利星宸天奕,即去年10月成交的开福053号地,楼面价约8497元/㎡。
项目位于开福中心,近芙蓉路、东风路两大城市主干道,1公里内可换乘地铁1号线、6号线。
周边有华创国际广场、富兴时代等商业体,紧邻湘雅医院,北侧规划一所九年制学校,有望纳入学区范围。

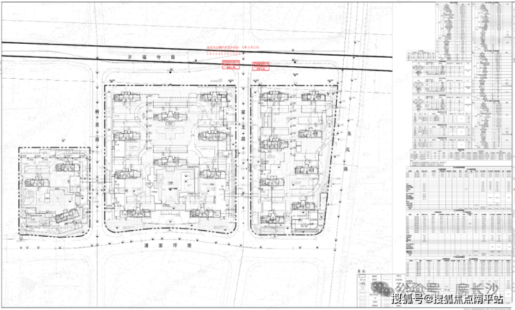
根据今年1月长沙市资规局的批前公示,项目共分为A、B、C三个地块,总建面约17.35万㎡,容积率2.3-4.0,建筑限高100-150m。
共21栋高层住宅,楼层23-31层,B地块配备下沉庭院会所,三个地块之间通过人行天桥连接。

目前网上曝光了项目的4张户型图,分别是 120㎡、135㎡、165㎡和185㎡ ,综合得房率在110%以上。 (仅供参考)




(户型图来源:@建筑师阿橙)
🔥长沙【保利星宸天奕 】🔥
💗鉴赏热线✆✆400-159-8559转5158(官网认证)💗
💗营销中心电话:☎☎400-159-8559转5158【专人接听】💗
💗【售楼中心】网上售楼中心〢欢迎来电咨询💗
💗〢专业一对一热情服务给您专业的置业方案💗
💗〢期待您成为我们的尊贵的业主💗
免责声明:本宣传资料所有文字、数据、图片及所标尺寸等仅为本项目建设区域设计效果的表达和示意,为要约邀请,不构成要约内容,相关内容不排除因政府相关规划、规定及其他原因而发生变化,一切有关房屋的具体信息以书面合同及政府最终审批文件为准。免责声明:本文章文字、数据和图片皆来源网络,如有侵权请告知立马删除,数据图片仅供参考,不作为邀约或承诺。