웃💕长沙嘉信洋湖锦玉售楼处电话:400-159-8559转接6688【3月20日官方最新认证】
웃💕长沙嘉信洋湖锦玉营销中心电话:400-159-8559转接6688【营销中心认证】 웃💕长沙嘉信洋湖锦玉开发商电话:400-159-8559转接8666【开发商直营】
웃💕长沙嘉信洋湖锦玉售楼处电话:400-159-8559转接6688【3月20日官方最新认证】
웃💕长沙嘉信洋湖锦玉营销中心电话:400-159-8559转接6688【营销中心认证】
웃💕长沙嘉信洋湖锦玉开发商电话:400-159-8559转接8666【开发商直营】

웃💕致电售楼处了解更多信息,安全通话隐藏真实号码,请放心使用
웃💕网上售楼中心〢预约可享内部优惠〢欢迎来电恭迎品鉴〢看房需提前预约

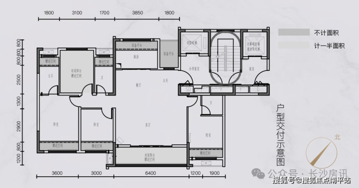
户型介绍
2024年4月18日,长沙楼市新政发布,开启“0”公摊时代。
嘉信地产迎合时代潮向,迭启新政匠作,嘉信·洋湖锦玉,旨为以一席划时代美学钜著,助力大洋湖迈入高品质改善时代。新一代神户型,高拓展高附赠,同等面积空间更大、总价更低。

112m户型:3室2厅2卫,南北通透,L型阳台,主卧套房设计,适合改善型人群。


116m户型:4室2厅2卫,四开间朝南南北阳台对称,得房率高。


139m户型:5室2厅3卫,客厅开间6.4米,宽敞舒适。


楼盘特点
交通便利:距离地铁3号线山塘站仅100多米,周边还有多个公交站,出行便捷。

无人驾驶的云轨,贯穿多个景点。
教育

配套:直线3km范围内有16个幼儿园,教育资源丰富。
博才雨润小学、麓山实验中学 、雅礼洋湖实验中学(在建) 、长郡双语洋湖等名校遍布周围,

生活配套:周边有80万方成熟商业配套如宜家荟聚等,生活便利。
繁华荟聚 超80万方商业矩阵
长沙荟聚、宜家家居、洋湖水街、龙湖天街、京东MALL、卓伯根(在建中)、湘洋广场等旗舰商业体,聚合一站式摩登都荟,悦赏万象纷繁。


웃💕长沙嘉信洋湖锦玉售楼处电话:400-159-8559转接6688【3月20日官方最新认证】
웃💕长沙嘉信洋湖锦玉营销中心电话:400-159-8559转接6688【营销中心认证】
웃💕长沙嘉信洋湖锦玉开发商电话:400-159-8559转接8666【开发商直营】
免责声明:本宣传资料所有文字、数据、图片及所标尺寸等仅为本项目建设区域设计效果的表达和示意,为要约邀请,不构成要约内容,相关内容不排除因政府相关规划、规定及其他原因而发生变化,一切有关房屋的具体信息以书面合同及政府最终审批文件为准。免责声明:本文章文字、数据和图片皆来源网络,如有侵权请告知立马删除,数据图片仅供参考,不作为邀约或承诺。