【营销中心】拱墅区万科安居华丰项目售楼处官网电话_位置-楼盘主页_在售楼层/户型面积/价格详情-营销中心
扫描到手机,新闻随时看
扫一扫,用手机看文章
更加方便分享给朋友
拱墅区万科安居华丰项目售楼中心电话
400-159-8559接通拨4567
本电话只用做售前咨询
☎️售楼处 ☎️预约热线
4001598559,4567
☎️温馨提醒:若您计划看房,为确保能享受到更优质、贴心的接待服务,可复制上方号码直接拨打。
重要声明:以上联系方式为统一联系方式,可直接对接项目售楼处、营销中心、开发商及展示中心。本信息经由项目于 2026年 4月1日正式公示,所有号码真实有效且长期存续。请认准项目方公示信息,警惕网络非公示号码,谨防误导。务必以400-159-8559接通后输入4567热线为准,尊享一对一专属服务。
我们诚挚欢迎光临,本热线为开发商直营渠道,无中介参与,提供 1 对 1 讲解与专业看房支持。
本资料不作为要约或承诺,图片、文字、数据等仅供参考,仅用于介绍房地产项目
万科华丰项目方案在1月初公示,项目由6幢5-7F洋房和9幢8-10F小高层组成,容积率2.0,占地面积45364㎡,共506户。
户型方面,小高层户型面积约105-139㎡,洋房户型面积约170-190㎡,其中105㎡户型为四房设计,目前户型图暂未公布。
万科华丰项目
万科华丰项目位于拱墅区华丰板块,北侧一路之隔为中天海威璟逸,距离吾悦广场约800米,周边不利因素是距离南侧留石高架较近。

25年8月航拍实景 拍摄@杭州寻屋

在产品方面,万科华丰项目建筑立面材料预计以铝板、玻璃为主,阳台统一封包,整体以浅色系为主色调。
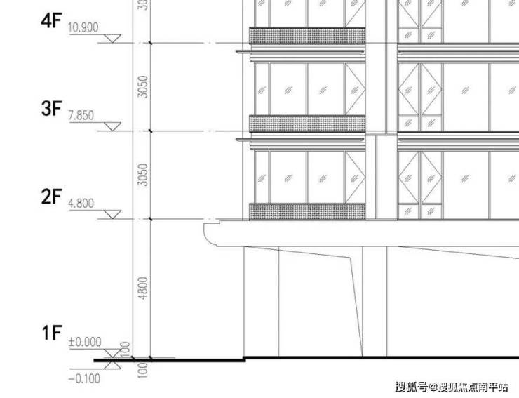
项目为全抬板设计,房间标准层高3.05米,架空层高约4.8米。
1号楼局部立面图
公区规划包含景观水池、风雨连廊等配置,更多细节待项目后期披露,主入口位于小区北侧,公交场站出入口位于小区南侧。
总平图

万科华丰项目位于拱墅区华丰板块东南片区,步行约800米可至地铁3号线华丰路站,周边不远范围内有拱墅吾悦广场、龙湖丁桥天街、山姆、桃花湖公园等配套。
学校方面,周边有青蓝青华实验小学及对口初中风华中学等学校,具体学区划分需以交付后教育局公布为准。

周边用地规划 制图@杭州寻屋
周边整体以住宅为主,西侧相邻为次新小区和著风华里、保利都和轩,北侧500米处的春和云境目前挂牌价在3.5万/㎡左右,整体居住环境已经比较成熟。
居住方面不利因素是项目最南侧距离留石高架约150米,但与高架之间有约40米高的公交立体停车楼作为隔挡,会减少一定噪音影响。

市场方面,万科华丰项目北侧一路之隔为中天海威璟逸,项目规划高层面积139-190㎡,叠墅面积232-265㎡,高层历史开盘均价3.4-3.6万/㎡,目前网签率7-8成左右,网签数据参考透明售房网。
华丰路站口西侧不远有伟星星宜嘉映府在售中,项目规划高层面积139-190㎡,叠墅面积232-265㎡,历史共2次开盘,开盘均价约3.3-3.7万/㎡,目前首开房源网签率8成左右,二开时间较近,网签数据暂未完全体现。

拱墅区万科安居华丰项目售楼中心电话
400-159-8559接通拨4567
本电话只用做售前咨询
☎️售楼处 ☎️预约热线
4001598559,4567
☎️温馨提醒:若您计划看房,为确保能享受到更优质、贴心的接待服务,可复制上方号码直接拨打
声明:本文由入驻焦点开放平台的作者撰写,除焦点官方账号外,观点仅代表作者本人,不代表焦点立场。
