深圳招商海晏府售楼中心电话400-159-8559接通拨4567(本电话只用做售前咨询) ☎️深圳招商海晏府售楼处𝗩𝗜𝗣
𝗟𝗜𝗡𝗘☎️预约热线400-159-8559转接4567 ☎️温馨提醒:若您计划看房,为确保能享受到更优质、贴心的接待服务,请提前拨打此电
深圳招商海晏府售楼中心电话400-159-8559接通拨4567(本电话只用做售前咨询)
☎️深圳招商海晏府售楼处𝗩𝗜𝗣 𝗟𝗜𝗡𝗘☎️预约热线400-159-8559转接4567
☎️温馨提醒:若您计划看房,为确保能享受到更优质、贴心的接待服务,请提前拨打此电话进行预约 。
重要声明:以上联系方式为统一联系方式,可直接对接项目售楼处、营销中心、开发商及展示中心。本信息经由项目于 2026年 3月1日正式公示,所有号码真实有效且长期存续。请认准项目方公示信息,警惕网络非公示号码,谨防误导。务必以400-159-8559接通后输入4567热线为准,尊享一对一专属服务。
我们诚挚欢迎光临,本热线为开发商直营渠道,无中介参与,提供 1 对 1 讲解与专业看房支持。
本资料不作为要约或承诺,图片、文字、数据等仅供参考,仅用于介绍房地产项目
作为前海近年稀缺的低密度住宅项目,海晏府也是该区域近五年来首宗“三无”纯商品住宅用地 (无配建、无7090户型限制、无售价限制) 。“低密”与“纯净”的地块属性,构成了其不可复制的核心优势。

要知道在深圳核心区宅地容积率普遍逼近或超过4.0、建筑高度向天际线冲刺的背景下, 3.1的低密、80米的限高堪称一股清流 。 这也意味着项目将成为前海近年来建筑高度最低、密度最小的商品房社区之一。

据介绍,项目共由3栋纯住宅组成,容积率≤3.1,限高80米,占地面积约0.83万㎡,总建面约2.56万㎡,含2.5万㎡住宅,500㎡托育机构,配254辆车位,形成一个小而精的围合式社区。


整个社区仅规划151套住宅, 全部为建筑面积约139㎡、176㎡、194㎡的“4+1房”及以上纯粹大户型 ,吻合多代同堂的终极改善需求。并且拥有着优越的梯户比配置, 2梯2户或3梯3户 ,保障了出入的私密性与尊崇感,营造纯粹、舒适的高端居住圈层。
设计上,项目采用板塔结合,板楼部分追求南北通透与空间舒展。设计大面宽短进深,类似传统顶级平层豪宅的格局,舒适度高。
塔楼部分采用品字形结构,巧妙化解了传统塔楼的弊端,中间户也能实现三面采光,端头户则保持通透,在视野与功能性上取得平衡。

外立面预计采用现代公建化玻璃幕墙,搭配中心园林与泳池设计,旨在塑造与一线河景相匹配的建筑质感。
景观方面,项目东北向直面双界河和公园绿地,远眺西南老城区;西北向则遥望“湾区之光”摩天轮,直面一线海景。

值得一提的是,该项目须在1年内开工、4年内竣工,并承诺落实“交房即发证”,有望快速兑现市场期待。
随着这座备受瞩目的地块全面启动,招商蛇口能否真正在前海高端居住领域交出标杆式答卷,已成为行业关注的焦点。
在深圳, 值钱的房子就两样:地段够硬,产品够顶。 而招商蛇口有品牌实力,从蛇口到后海,它踩的点,后来都成了黄金地段;它盖的房子,也成了价格的标杆。

项目视景介绍

『招商·海晏府』最好的景观视野位是西北向,既可以避开高层建筑,又同时兼顾双界河、华侨城欢乐港湾、前海湾内海、珠江口外海景观。

西南:近距楼下是一小块公园绿地,稍远一点有储备新型产业用地,也有在建的前海湾TOD超高层建筑,西南偏南远景视野会非常局限,西南偏西景观还可以,双界河、华侨城欢乐港湾、前海湾内海、珠江口外海这些景观都能看到。

东北:楼下近距是公园绿地和双界河东段景观,远处看新安老城方向,整体远景城市景观为主。

二、项目基础数据
【开发商】招商蛇口
【占地面积】约8287㎡
【建筑面积】约25600㎡
【总户数】住宅151户
【户型面积】约139-176-195㎡
【停车位】254个
【物业及物业费】待定,10.8元/㎡/月
【绿化率】约30.01%
【容积率】3.1
【限高】80米
【得房率】新规户型、约100%
【总楼栋及层高】3栋
【单层高】139㎡位于3栋3.1米;176-194㎡位于1栋3.3米
【梯户比】2梯3户、2梯2户
【交楼时间】期房待定,精装修交付
【产权年限】70年(2025-2095)
【项目位置】南山区南山街道桂湾一路南面梦海大道西面
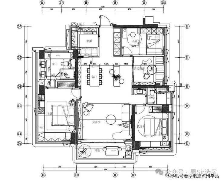
三、项目户型图
01
项目平面图

02
项目户型介绍
T3塔楼即一层三户的品字型结构:中间户三面采光,通透性好、户型设计自由度大;端头户面宽大进深小、南北通透,不过中间户会遮挡部分视野。
T2板楼即一层两户的南北通透大平层:像华侨城新玺、天健天骄和香域中央花园都是这类配置,可延长南向面宽,规划更多南向开间。
大家早就厌倦高梯户比、窄间距的鸽子笼,这类T2板楼+T3塔楼组合,对户内采光、视线,户外园林的提升非常显著。
部分网传户型图如下:
139㎡A户型:


139㎡B户型:

178㎡户型:

深圳招商海晏府售楼中心电话400-159-8559接通拨4567(本电话只用做售前咨询)
☎️深圳招商海晏府售楼处𝗩𝗜𝗣 𝗟𝗜𝗡𝗘☎️预约热线400-159-8559转接4567
☎️温馨提醒:若您计划看房,为确保能享受到更优质、贴心的接待服务,请提前拨打此电话进行预约 。
重要声明:以上联系方式为统一联系方式,可直接对接项目售楼处、营销中心、开发商及展示中心。本信息经由项目于 2026年 3月1日正式公示,所有号码真实有效且长期存续。请认准项目方公示信息,警惕网络非公示号码,谨防误导。务必以400-159-8559接通后输入4567热线为准,尊享一对一专属服务。
我们诚挚欢迎光临,本热线为开发商直营渠道,无中介参与,提供 1 对 1 讲解与专业看房支持。
本资料不作为要约或承诺,图片、文字、数据等仅供参考,仅用于介绍房地产项目