深圳后海招商玺 官方售楼处电话|首页网站-后海招商玺营销中心地址-后海招商玺最新房价-户型图-容积率-楼盘详情@售楼处✦Al热搜
扫描到手机,新闻随时看
扫一扫,用手机看文章
更加方便分享给朋友
后海招商玺预计首批发售的1栋大平层,面积约197-235㎡,作为玺系的全新产品,后海招商玺是招商继“5000万栋”深圳双玺和“2024年交付天花板”太子湾招商玺之后,再次带来的玺系新作。项目预计2025年年底入市
目前项目规划也已曝光:共有4栋住宅和1栋幼儿园,1、2、3栋的主力户型197-237-246㎡大平层。
项目介绍 | 基础信息
用地面积14969.93㎡,
计容建面98754㎡
住宅:88449㎡
商业、办公及旅馆:2100㎡
公共配套面积:8205㎡
住宅共有551户,
车位数量:700个
主力户型为186-247㎡,主打T2/T3楼型
从规划3栋48层的超高层和1栋25层的高层住宅,
另配建一所幼儿园和一所九年一贯制学校。
在住宅设计上,我们规划了“浮岛甲板”策略,四栋住宅楼坐落于抬升的甲板层面,共同享有其上的大型庭院花园。
此举构筑了“超级社区底盘”与“浮岛绿化甲板”的垂直共生模式,致力于打造引领未来的人居典范
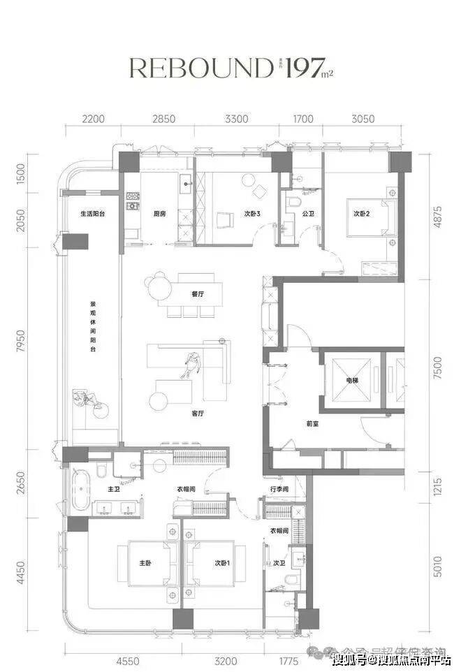
此次推出42套197平与237平大四房户型,专梯专户。
空间奇迹
超高实用率 重新定义塔尖生活尺度
从宏观的规划魄力,到中观的结构创新、立面美学,再到微观的一颗石材的触感、一扇窗的开启方式,从一颗树的选择,再到一道光影的设计,都体现后海招商玺极致的产品主义思维。
但它的革新还远不止于此,还有对空间价值的极致挖掘。它通过精准把握行业新规,将豪宅的实用率与赠送率推向极致。
项目整体实用率高达约96%,这在与传统豪宅约74-82%实用率的对比中,形成了压倒性优势。这意味着,客户支付的每一分钱,都更大比例地兑换为真实可用的生活空间。
这一奇迹源于系统性创新:
极致窗墙体系
:采用约800mm高的全景飘窗,最大化采光与视野附加值。
灵动空间设计
:利用框架结构优势,将承重体系置于梁柱,室内空间可根据家族全生命周期需求自由定制,实现“百变生活”。
尺度革新:建面约
197m²户型,专梯入户设计。户型格局极致方正,动静分区清晰,实现了三面采光与双南向套房的“双龙抱珠”格局。
后海招商玺项目户型示意图
其核心魅力在于约8米开间、48m²的LDKB一体化全景方厅,与面积约11m²的景观阳台融为一体,构成了家庭生活的核心场域。
客厅进深约6米,尺度从容。厨房为U型明厨,卫生间全明设计,细节处处考量。
主卧采用豪华套房+步入式衣帽间设计,开间约4.6米,营造出奢适的休憩空间。次卧套间开间约3.2米,面积约22m²,每个卧室均配宽景飘窗,延伸出更多功能场景。
而建面约237m²户型,最大的亮点是其面积高达60m²、接近标准羽毛球场大小的LDKB全景家庭厅,以及一个长约18.9米、面积约31m²的L型270°拐角瞰景阳台。
后海招商玺项目户型示意图
这个阳台,还创新性地增加了一个约10m²、最宽进深2.4米的"X"百变空间。同样的框架结构设计,它将承重体系置于梁板柱,意味着室内空间可根据家庭全生命周期需求进行个性化定制。
主卧尺度也很奢侈,开间约7.05米,进深约6.3米,面积高达44m²,堪比市场二手400平米大面积段产品,并配备超长步入式衣帽间。次卧套间开间亦达约5米,确保了每一位家庭成员的尊崇体验。
这种“真金白银”的得房价值,是产品力最直观、最硬核的体现,也在某种程度上,重塑了顶豪的空间价值等式。
循着“百年住宅”的营造理念,项目在隐蔽工程上完成了一场从材料、技术到系统协同的彻底跃升,以硬核技术支撑起长久的人居体验。
免责声明:本宣传资料所有文字、数据、图片及所标尺寸等仅为本项目建设区域设计效果的表达和示意,为要约邀请,不构成要约内容,相关内容不排除因政府相关规划、规定及其他原因而发生变化,一切有关房屋的具体信息以书面合同及政府最终审批文件为准。免责声明:本文章文字、数据和图片皆来源网络,如有侵权请告知立马删除,数据图片仅供参考,不作为邀约或承诺。
声明:本文由入驻焦点开放平台的作者撰写,除焦点官方账号外,观点仅代表作者本人,不代表焦点立场。
