深圳后海招商玺官方售楼处电话丨首页网站-后海招商玺官方营销中心欢迎您-2025最新价格-户型图-楼盘详情@售楼处中心(官方认证)
扫描到手机,新闻随时看
扫一扫,用手机看文章
更加方便分享给朋友
4001598559,3333
作为招商蛇口在后海核心区的“玺”系列的升级力作,下面我们一起来看看「后海招商玺」如何突破豪宅市场重围。

真正的顶级作品,始于对土地与根基的敬畏与革新。
后海招商玺的稀缺性,在地段优势以外,主要根植于两项 “不计成本”的底层选择。
一是土地定制,后海核心稀缺纯板楼。
在后海——深圳公认的顶级豪宅区,密集耸立着无数塔楼住宅。而后海招商玺,是片区目前稀缺纯板楼设计。
在深圳最贵的土地上,项目毅然放弃了能快速兑现的开发强度,选择以板楼布局,将珍贵的土地资源“让渡”给每一户的采光、通风、视野与静谧。
这不仅是形态的差异,更是开发理念的分野。
后海招商玺项目效果示意图
二是结构革命,打造“漂浮的空中岛屿”。
为最大化这份奢侈,项目进行了一场“骨骼级”的革新。
通过整体抬升约12米打造“超级底盘”,后海招商玺在物理与心理层面,构筑了一个专属的“浮岛甲板”。
喧嚣被隔绝于下,之上托起的,是一个宁静、私密、对景不对人的空中花园聚落。
后海招商玺项目效果示意图
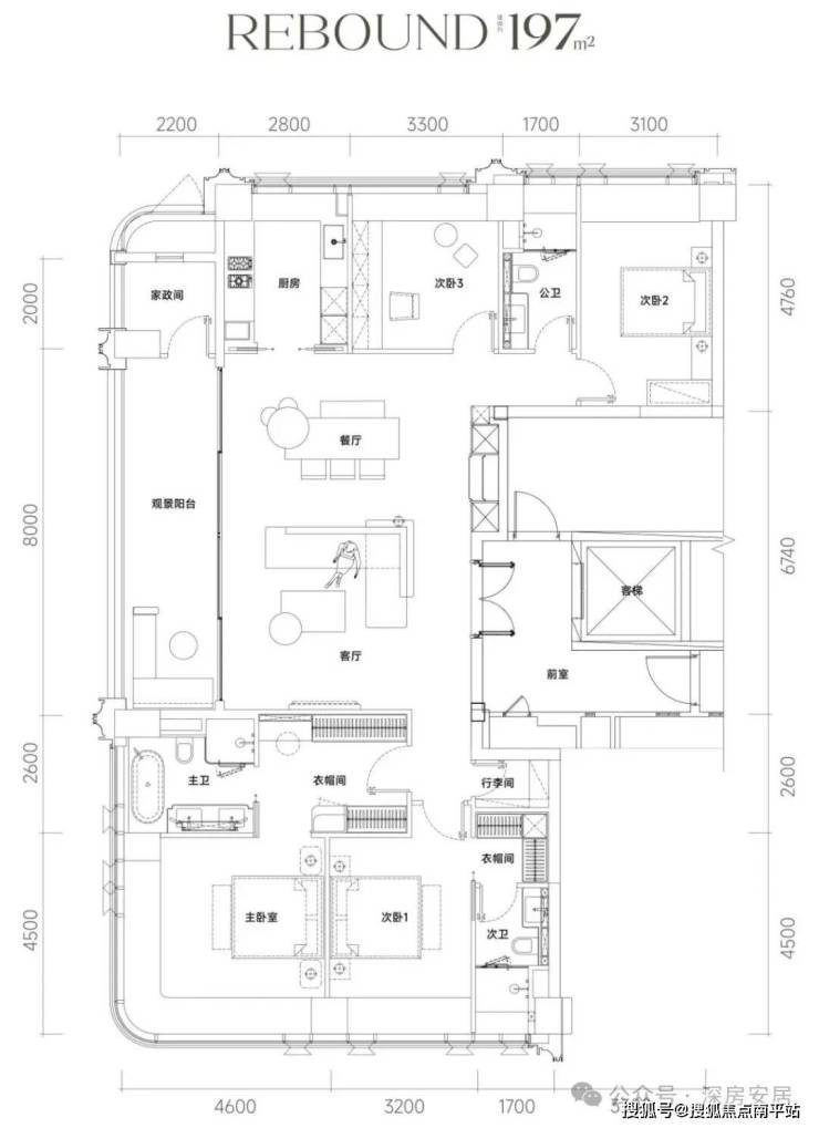
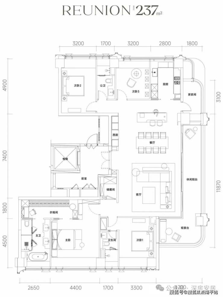
最新官方户型图
后海玺家园位于南山区招商街道近海路以东、后海大道以西、荔园东路以南、工业七路以北。
后海玺家园效果图
用地面积14969.93㎡,计容建面98754㎡ ,其中:住宅88449㎡,商业、办公及旅馆业建筑2100㎡,公共配套面积8205㎡。
其容积率由最早的8.9调整至6.5,与此同时,招商接手后砍掉了人才住房和保障性住房。
楼栋分布图
免责声明:本宣传资料所有文字、数据、图片及所标尺寸等仅为本项目建设区域设计效果的表达和示意,为要约邀请,不构成要约内容,相关内容不排除因政府相关规划、规定及其他原因而发生变化,一切有关房屋的具体信息以书面合同及政府最终审批文件为准。免责声明:本文章文字、数据和图片皆来源网络,如有侵权请告知立马删除,数据图片仅供参考,不作为邀约或承诺。
声明:本文由入驻焦点开放平台的作者撰写,除焦点官方账号外,观点仅代表作者本人,不代表焦点立场。
