长沙龙湖·观萃售楼处电话丨24小时电话丨长沙龙湖·观萃售楼处地址丨长沙龙湖·观萃最新价格详情
扫描到手机,新闻随时看
扫一扫,用手机看文章
更加方便分享给朋友
✨✨长沙【龙湖·观萃】✨✨✨
✨✨售楼处电话☎☎400-159-8559转6666(专人接听)✨✽✽✽✽
✨✨营销中心电话:☎☎400-159-8559转6666【VIP预约热线】✨✽✽✽✽
✨✨☞☞Vip贵宾置业==欢迎来电预约尊享内部折扣===匠心钜制恭迎品鉴☜☜
✨✨温馨提示:本项目暂不接受临时到访,过来参观样板房请记得提前来电预约!
长沙【龙湖 · 观萃】‼️新规豪宅‼️
楼王栋4号栋已加推
世界豪宅,显赫长沙
龙湖战略级高定“好房子”序列【观萃系】
【全国第5座,长沙第1座】首映长沙
龙湖旗舰新作 “负公摊”新规奢宅
择址城芯福元中轴之上,首座漫步式POD生活场,打造建面约106/127/143/175㎡环幕新规奢宅;
惟一下沉庭院,惟一超配会所、惟一“负”公摊、惟一270°全景落地窗、LDKG超尺巨厅等生活排场,定鼎城市人居封面。
项目信息:
【开发商】:龙湖
【楼栋信息】
1#6#7#143㎡ 两梯两户
2# 3# 4#175 ㎡ 两梯两户
5# 127-106-127 ㎡ 两梯三户
【在售楼栋】1-3-4-5栋
【成交均价】:12800-14300
【总价区间】:132-252万
【项目总占地】:3.3万方
【总户数】:440户
【物业费】:住宅3.2元
【总楼栋】:7栋
【层高】:3米
【梯户比】两梯三户/两梯两户
【总楼层】:1栋24层,2#、3#、4#栋为23层,5、6、7栋为25层
【容积率】:3.06
【交付标准】:毛坯
【得房率】:99-110%
【绿化率】:35%
【物业】:龙湖物业服务集团有限公司长沙分公司
【交房时间】:27年6月
【产权年限】:70年

*5分钟阅读时间,带您走进龙湖·观萃*
龙湖·观萃最尊敬的准业主:
您好!
在这个快节奏的时代,当您站在窗前俯瞰这座城市的璀璨灯火时,是否也曾问过自己——真正的理想居所,是占据城市核心的繁华,还是藏匿于静谧中的诗意?
这一次,我们想和您聊聊另一种可能:
“观世界”的胸怀,与“心隐萃”的禅意,繁华与松弛,如何在城市核芯共生!
【城央核心】繁华之上观世界
主二环城央核心地段,福元路超级中轴,一步市府滨江&五一商圈;长沙唯一“一江两河”环绕的超级宜居区,极萃城市顶阶资源;是繁华中心与高端人居的聚首。

中轴资源荟
聚,显赫一城繁华
•百亿商圈:“十四五”规划百亿繁华商圈,沿线已排布超34万方17座商业综合体,大城已成;
•开福天街:约12万方全新消费地标,明年开业,填补百亿福元商圈高端商业最后稀贵留白;
•极速路网:2横3纵3轨(规划8、9号线),约10min滨江CBD,约15min长沙火车站,约不到20min五一广场,繁华之上,通达全城;
•城央绿心:一江两河超级宜居生活区,4大公园·2大沿河风光带,极享城央公园绿心。



福元中轴之上 漫步式 POD 生活场
首座“地标天街、漫集市街区、观萃奢宅、城市公园”一体的漫步式天街POD。
在城心绿意中,漫游天街潮奢,信步漫集市街区有闲有趣,购物娱乐、休闲社交、赏园休憩,带来24H全时段潮奢生活方式。



在这样一个资源聚集的核心地段,或许您的最大期待是:能否做引领时代的豪宅?用顶奢的材质?有顶级的造园技巧?有私享的高定会所?
若仅以物质刻度丈量,答案或许过于轻易。
物质丰富后的更高层次是关照自己内心,正如我们的案名“观萃”:“观世界”是向外触摸万象的触角,“心隐萃”是向内安顿心灵的秘境。
【极萃自然 】松弛归心见自己
汲取世界顶奢酒店AMAN安缦隐奢灵感,造就超20000㎡自然谧境;一轴三幕六境,将闹市适度隔绝,让静谧成为主角,用空间唤醒您内心的静谧。
•首个度假式酒店门庭售楼处:☎️☎️售楼处电话400-159-8559转6666【已认证】
超69米奢阔尺度,三大主题店入驻,以尊崇仪式恭迎业主归家。

•首创下沉式悬浮庭院
20m悬挑水景,8.4m玻璃悬浮亭,行游至此,完成「从城市喧嚣到隐奢秘境」的领域切换

•独创TADAO ANDO光之美术馆
用光线做设计,独有空间随时间生长的四季窗景。

•超星级酒店式中央车站
营造“艺术天光穹顶”的归家礼遇。

【无界社群】私域空间
在繁忙的都市生活中,您是否也渴望一方能让心灵栖息的宁静之地?一个能交友聊天的私域空间?
约2100㎡下沉式缦萃会馆,区域惟一超配私域会所,7大首创奢享。是您未来在工作繁忙之余、都市繁华之外,心灵栖息地,亦是邻里交流,圈层交融的天然场。
萃·宴峯层私宴厅

萃·氧健身Club

萃·弈棋牌室

萃·趣桌球室

【高定奢宅】人居革新 惟一好房子
新规产品眼花缭乱,您是不是也在纠结:到底什么样的房子,才算真的“好”?
全国首个央视认证「好房子」产品系——龙湖·观萃!
•世界500强,全国前十品牌开发商?
不够,稳健!品质好!交付好!服务好!

•公建化外立面?铝板线条?
不够,270º全景落地窗!极致窗墙比!

•新规“0公摊”?
不够!部分户型超100%得房“负公摊”、主卧270º观景舱!奢阔空间尺度,超20㎡产品越级!
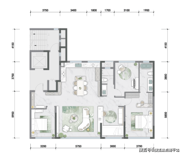
【户型鉴赏】





福元超级中轴,首座漫步式POD生活场,惟一下沉庭院、惟一私域会所、惟一270º全景落地窗的新规“负公摊”好房子——龙湖观萃!期待您成为最尊贵的观萃业主!
✨✨长沙【龙湖 · 观萃】✨✨✨
✨✨售楼处电话☎☎400-159-8559转6666(专人接听)✨✽✽✽✽
✨✨营销中心电话:☎☎400-159-8559转6666【VIP预约热线】✨✽✽✽✽
✨✨☞☞Vip贵宾置业==欢迎来电预约尊享内部折扣===匠心钜制恭迎品鉴☜☜
✨✨温馨提示:本项目暂不接受临时到访,过来参观样板房请记得提前来电预约!
免责声明:本宣传资料所有文字、数据、图片及所标尺寸等仅为本项目建设区域设计效果的表达和示意,为要约邀请,不构成要约内容,相关内容不排除因政府相关规划、规定及其他原因而发生变化,一切有关房屋的具体信息以书面合同及政府最终审批文件为准。
免责声明:本文章文字、数据和图片皆来源网络,如有侵权请告知立马删除,数据图片仅供参考,不作为邀约或承诺。
声明:本文由入驻焦点开放平台的作者撰写,除焦点官方账号外,观点仅代表作者本人,不代表焦点立场。
