长沙保利天瑞(售楼处) 首页 -保利天瑞销售中心 - 环境 - 户型 - 价格 - 地址 -楼盘详情 - 配套 - 电话 - 保利天瑞交房时间
扫描到手机,新闻随时看
扫一扫,用手机看文章
更加方便分享给朋友
在长沙豪宅江湖,保利天瑞一直是“传奇般的存在”——一期双拼开盘即“秒光”,千万级总价仍引发抢房大战。如今二期以13种定制化产品、洋湖资源的极致占有、圈层纯度的再升级,给出了长沙顶豪的“终极答案”。

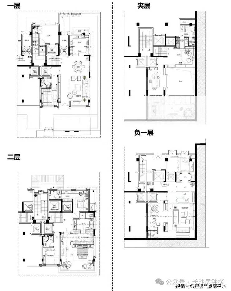
(一二期平面图)
产品革命:13种户型,为不同量级的“塔尖人生”量身定制
保利天瑞二期的野心,是让每一位高净值人群都能找到“专属人生刻度”。从143㎡到599㎡,13种户型精准匹配财富量级与生活追求:

叠拼:“轻奢墅居”的创新范本
- 上叠(245㎡):18户边户仅6套的“三层观湖王”,从地下室到顶层露台,每一层都能直面7200亩洋湖湿地。想象一下,清晨在露台上喝着咖啡看湖,傍晚在星空下烧烤,这才是“把洋湖装进家里”的极致体验;
二期叠别墅产品,未定稿,非效果图
下叠户型各层平面图:
- 平层(195㎡):19米面宽+一层一户,得房率高达127%!双露台设计可自由定义——把主卧移到观湖面,让“每天被湖景唤醒”成为日常;或是打造空中花园,实现“都市里的田园梦”。
🔹 联排:“宽境墅居”的迭代之作
告别传统联排“窄面宽、暗地下室”的痛点,保利天瑞二期联排做到:

二期联排产品,未定稿,非效果图
- 9.6-11.4米奢阔面宽:单层空间足够大,客厅能放下家庭影院,老人房、儿童房互不干扰;
联排320㎡边户平面图
联排286㎡中间户平面图
双拼:“孤品资产”的收藏级选择
- 二期双拼从48套锐减至34套,一线临湖的17栋更是“卖一套少一套”;
二期双拼产品,未定稿,非效果图
308㎡第二排平面图
385㎡第一排平面图
- 599㎡楼王户型:全长沙仅此一套!约200㎡的私家庭院、挑高8米的会客厅、带泳池的地下室……它不仅是“房子”,更是高净值人群的“身份徽章”与“资产压舱石”2套412㎡平包括599㎡暂未有明确数据。

二期现场施工进度图
保利天瑞二期的配套,是对“顶豪生活方式”的完整诠释:
🔹 景观:洋湖是“后花园”,社区是“艺术馆”

- 别墅、叠拼直面洋湖,洋房侧看湖景,真正实现“户户观湖、步步入画”;
免责声明:本宣传资料所有文字、数据、图片及所标尺寸等仅为本项目建设区域设计效果的表达和示意,为要约邀请,不构成要约内容,相关内容不排除因政府相关规划、规定及其他原因而发生变化,一切有关房屋的具体信息以书面合同及政府最终审批文件为准。免责声明:本文章文字、数据和图片皆来源网络,如有侵权请告知立马删除,数据图片仅供参考,不作为邀约或承诺。
声明:本文由入驻焦点开放平台的作者撰写,除焦点官方账号外,观点仅代表作者本人,不代表焦点立场。
