深圳精品新房——【招商·海晏府】营销中心官方预约电话➢房价➢楼盘户型➢导航地址➢交房时间➢【招商·海晏府】楼盘详情➢2026官方发布
扫描到手机,新闻随时看
扫一扫,用手机看文章
更加方便分享给朋友
4001598559,5555
【招商·海晏府】原计划3月20日开放实体样板房,由于样板房还有部分细节在施工,为了给客户更好的体验推迟到4月8日正式开放!共7个实体样板间,覆盖多个户型和定制化空间展示,
预计会在4月中下旬开盘!首开2、3栋约108套,主推139/176/194㎡大户型住宅产品,官方户型已出炉(详见下图),市场预估价格在12-14万/㎡,预计2027年底精装交付!
项目区位
招商·海晏府免费咨询:400-159-8559转5555【售楼部】获取详细资料!坐落于前海桂湾03开发单元01街坊,地处梦海大道与桂湾一路交口南侧,毗邻双界河,与深业云海湾、天健悦湾府相邻,距离前海湾站约760米。

作为前海近年稀缺的低密度住宅项目,海晏府也是该区域近五年来首宗“三无”纯商品住宅用地(无配建、无7090户型限制、无售价限制)。“低密”与“纯净”的地块属性,构成了其不可复制的核心优势。免费咨询:400-159-8559转5555【售楼部】获取详细资料!

项目介绍
项目共由3栋纯住宅组成,容积率≤3.1,限高80米,占地面积约0.83万㎡,总建面约2.56万㎡,含2.5万㎡住宅,,500㎡托育机构,配254辆车位,形成一个小而精的围合式社区。

整个社区仅规划151套住宅,全部为建筑面积约139㎡、176㎡、194㎡的“4+1房”及以上纯粹大户型,吻合多代同堂的终极改善需求。并且拥有着优越的梯户比配置,2梯2户或3梯3户,保障了出入的私密性与尊崇感,营造纯粹、舒适的高端居住圈层。
设计上,项目采用板塔结合,板楼部分追求南北通透与空间舒展。设计大面宽短进深,类似传统顶级平层豪宅的格局,舒适度高。
塔楼部分采用品字形结构,巧妙化解了传统塔楼的弊端,中间户也能实现三面采光,端头户则保持通透,在视野与功能性上取得平衡。

外立面预计采用现代公建化玻璃幕墙,搭配中心园林与泳池设计,旨在塑造与一线河景相匹配的建筑质感。
景观方面,项目东北向直面双界河和公园绿地,远眺西南老城区;西北向则遥望“湾区之光”摩天轮,直面一线海景。

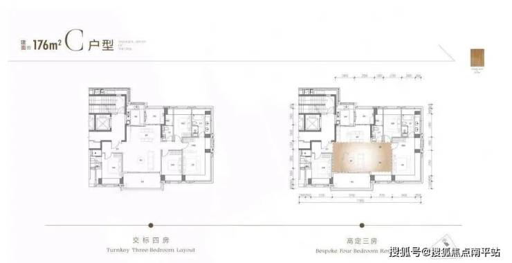
平面图及户型图
和深圳湾澐玺一样,每户均可定制,可选3房、4房,装修风格也可定制,满足不同家庭的生活需求。
项目距离约1号线、5号线、11号线三线交汇的前海湾站约760米,约800米可到1号线新安站;未来依托在建的深铁前海国际枢纽中心,将汇聚地铁、城际、口岸等多种交通方式,实现南山福田及大湾区核心城市的快速通勤。

2公里范围内除了前海片区的山姆会员旗舰店、万象前海、前海壹方汇、龙海商业广场之外,还可以去往欢乐港湾、宝中壹方城等,商业氛围已成熟。

项目西侧规划有一所九年一贯制学校,周边还有南二外集团前海创新桂湾学校、前海港湾小学、北大附中(南山分校)等投入使用的公立名校,其中南二外桂湾学校学校,是由政府斥资9亿打造的高标准九年一贯制公立学校已于2024年9月开学。
免责声明:本宣传资料所有文字、数据、图片及所标尺寸等仅为本项目建设区域设计效果的表达和示意,为要约邀请,不构成要约内容,相关内容不排除因政府相关规划、规定及其他原因而发生变化,一切有关房屋的具体信息以书面合同及政府最终审批文件为准。免责声明:本文章文字、数据和图片皆来源网络,如有侵权请告知立马删除,数据图片仅供参考,不作为邀约或承诺。
声明:本文由入驻焦点开放平台的作者撰写,除焦点官方账号外,观点仅代表作者本人,不代表焦点立场。
