三亚天正三亚湾壹号(开发商售楼处电话)首页网站-天正三亚湾壹号营销中心位置-2025最新房价-楼盘详情-最新价格-户型图-容积率@售楼处最新发布
扫描到手机,新闻随时看
扫一扫,用手机看文章
更加方便分享给朋友
项目位于三亚天涯区三亚湾中段的位置,距离海边800米左右,旁边挨着三亚九小,北侧是羊栏农贸市场,生活购物都比较方便。
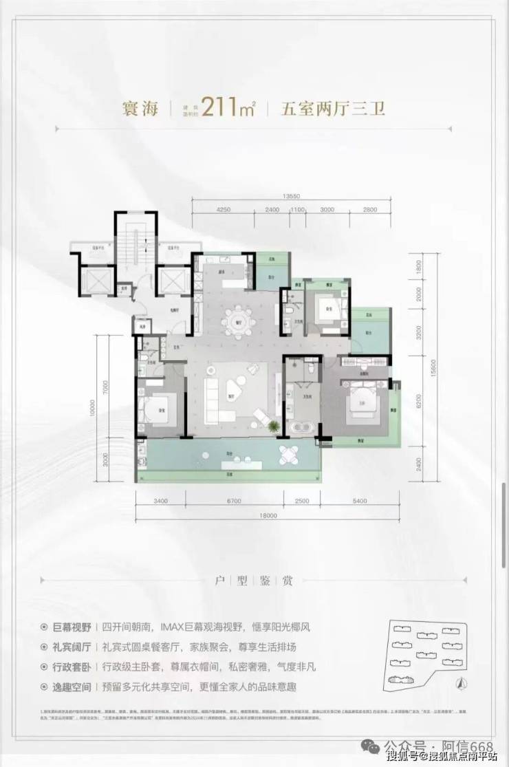
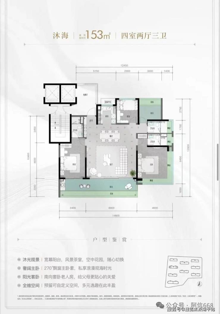
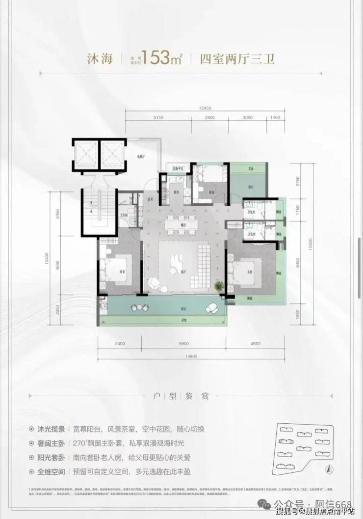
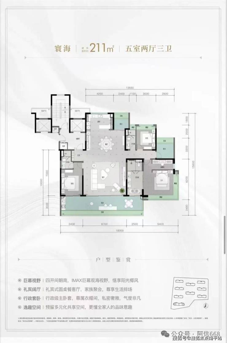
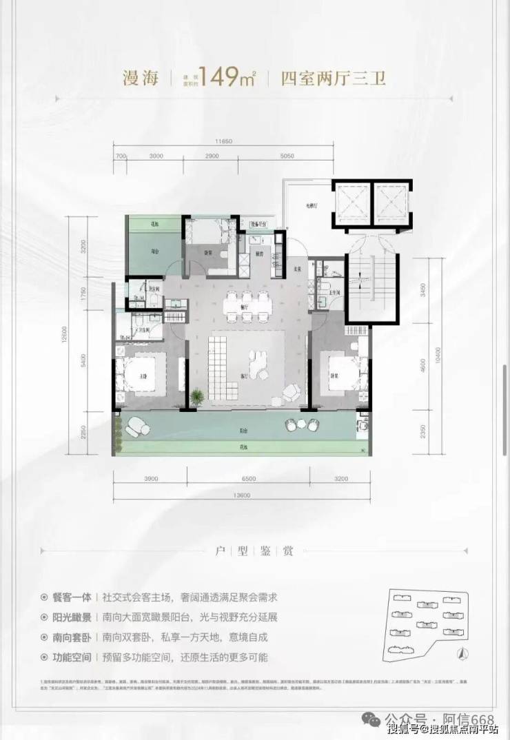
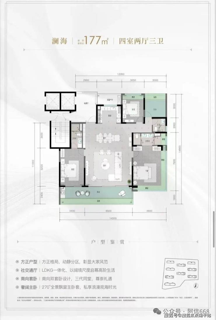
项目共有9栋16-17层的住宅,一梯一户,坐北朝南的设计,配不配有3000平米的业主会所,健身房,泳池,还有海心公园等,3.1米的层高,都是大阳台的设计,全品牌装修,都是3卫的格局。
免责声明:本宣传资料所有文字、数据、图片及所标尺寸等仅为本项目建设区域设计效果的表达和示意,为要约邀请,不构成要约内容,相关内容不排除因政府相关规划、规定及其他原因而发生变化,一切有关房屋的具体信息以书面合同及政府最终审批文件为准。免责声明:本文章文字、数据和图片皆来源网络,如有侵权请告知立马删除,数据图片仅供参考,不作为邀约或承诺。
声明:本文由入驻焦点开放平台的作者撰写,除焦点官方账号外,观点仅代表作者本人,不代表焦点立场。
