最新发布-【营销中心】海南三亚公园88号售楼处电话→三亚公园88号售楼处_三亚公园88号价格_售楼处电话_售楼处营销中心
扫描到手机,新闻随时看
扫一扫,用手机看文章
更加方便分享给朋友
三亚公园88号售楼处电话☎️400-159-8559转接8888(专人接听)
🌈三亚公园88号营销中心电话:☎️400-159-8559转接8888【营销中心】
🌈温馨提示:拨打400电话,听到嘀声后,输入分机号8888即可!
➤➤➤➤VIP贵宾置业〢欢迎来电咨询
免责声明:(本文章所用图片来源于网络,如有侵权请联系本网站删除!)恭迎品鉴◆◆
4001598559,8888
公园88号·墅
海南自由贸易港 三亚总部经济区
中央商务区 中央公园C位红盘
公园88号·墅
〖项目概况〗
占地面积:约88亩 分两期开发
总建面:约23.5万平方米
绿地率:约45%(公园环抱绿化率80%以上)
楼栋概况:分两期开发共12栋
总户数:1658户(一期692户 二期966户)
物业费:4.2元/平米/月
产权: 70年住宅
成熟社区现房销售
公园88号·墅伫立在三亚中央公园内,是该区域兼具70年产权及公园地产的双属性住宅产品。

围合式建筑布局,新中式风格,保留了中国传统建筑的精髓,在照顾到现代人的生活和审美习惯的同时,巧妙的与现代装饰相结合,多景观组团贯穿其中,约18000平方米中心园林,约1300平方米中心泳池。
〖项目区位〗
公园88号·墅位于三亚总部经济区中央公园内,背靠金鸡岭公园与中央商务区隔水相望。
海南自由贸易港北看海口江东新区,南看三亚中央商务区,三亚中央商务局建设是承接海南自贸港政策的重要平台,致力于打造大型综合消费商圈+总部核心区,中粮大悦城、中交国际自贸中心、华侨城、成都万华等齐聚于此,自贸港红利加持,未来区域价值不可估量。


〖产品核心价值〗
城市中央商务区中央公园内70年住宅产品
公园地产 无可比拟的价值优势
出则繁华 入则自然
稀缺资源 无可复制
管家式服务
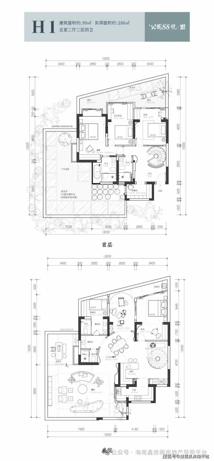
〖户型鉴赏〗






户型赏析
支持个性化定制随心所欲打造温馨家庭
边套户型
毛坯交付 个性化装修
空间利用率高 实用性强
稀缺产品
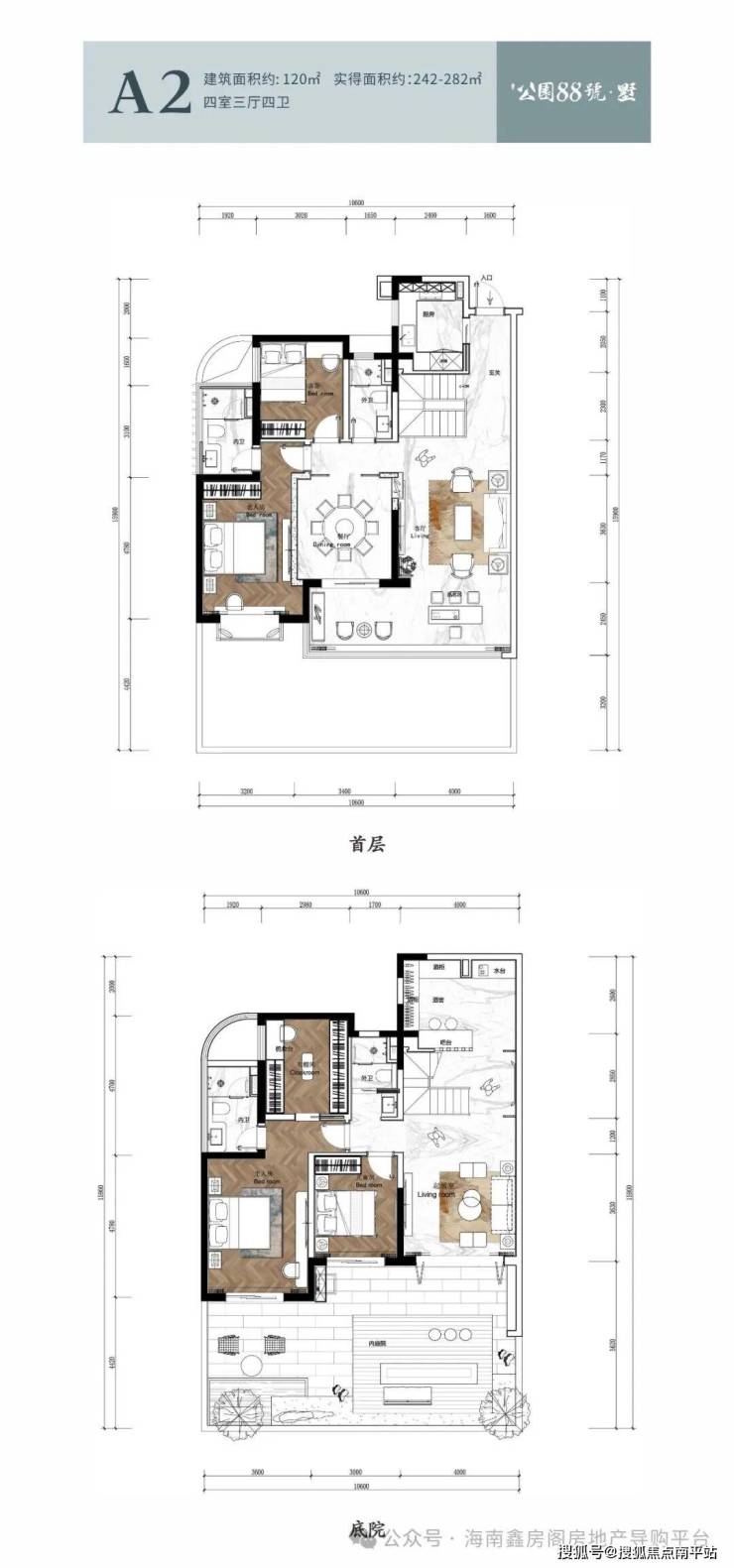
户型赏析
支持个性化定制随心所欲打造温馨家庭
户型方正 户型合理 实用性强
毛坯交付可个性化定制
7.3米横厅设计
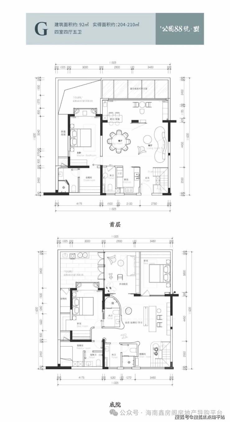
户型赏析
毛坯交付可个性化定制
空间利用率高 实用性强
稀缺产品
中西双厨设计
集居住与会所于一体
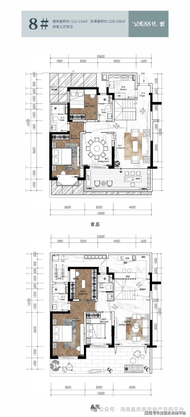
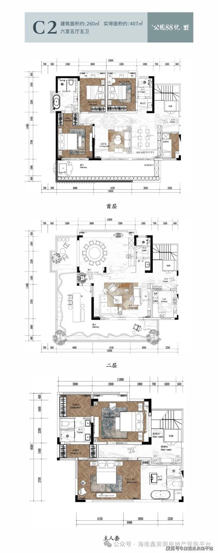
户型解析
双套房主卧设计
超高性价比 空间利用率高 实用性强
中西双厨与品茗区多区合一
集居住与会所于一体
户型赏析
双套房主卧设计
超高性价比 空间利用率高 实用性强
中西双厨品茗区多区合一
集居住与会所于一体
双庭院 双主卧套房设计
豪华行政酒廊
户型赏析
超高性价比 空间利用率高 实用性强
三主卧套房设计
边套端头位置 私密性佳
户型赏析
采光充足视野开阔
前庭后院私家花园
南北通透自然入家
独立行政套房
户型赏析
奢华主卧套房配独立衣帽间卫浴 私密性高
客餐厨一体化空间灵动多变
豪华行政套房
超大景观露台尽揽公园景观
户型赏析
11米南向落地窗 前庭后院私家花园
客餐厨一体消除空间局限
7米面宽客厅居住会客两相宜
地下空间灵动可呈现多重生活方式
户型赏析
城市 山景双重景观
场景化生活 安放家庭幸福时光
私家露台花园 自然入家
进一步繁华可触 退一步自享怡然
四房设计 悦享三代同堂
户型赏析
正南朝向 22米超大面宽
双露台设计动静区分
私密性更好
灵动功能空间 居住会客两相宜
户型赏析
270度观景露台纵享千亩湿地景观
双层入户私家电梯
动静分层明确休息商务互不打扰
3.6米层高彰显奢墅风范
三亚公园88号售楼处电话☎️400-159-8559转接8888(专人接听)
🌈三亚公园88号营销中心电话:☎️400-159-8559转接8888【营销中心】
🌈温馨提示:拨打400电话,听到嘀声后,输入分机号8888即可!
特别说明:
1.本文为要约邀请,不作为要约或承诺;相关宣传内容不排除因政府相关规划、规定及出卖人分期规划、未能控制等原因而发生变化;
2.本文部分图片来自于网络,如涉及版权使用,请联系删除;文本部分图片仅作为推广示意使用,非交付标准,最终以实际交付现状为准;
3.本宣传资料对项目周边学校等教育资源的介绍旨在提供相关信息,并不意味着本公司对就学安排作出承诺。教育资源的名称、办学性质、办学规模、学位设置、开学(班)时间、招生条件、收费标准及招生区域存在调整的可能,应以政府教育主管部门及办学方颁布的政策规定为准;
4.本资料对项目或产品的介绍,旨在提供相关信息,不意味着本公司对此作出了承诺,买卖双方的权利义务以《商品房买卖合同》及附件等协议为准;
5.宣传方保留对宣传资料修改和解释的权利;
声明:本文由入驻焦点开放平台的作者撰写,除焦点官方账号外,观点仅代表作者本人,不代表焦点立场。
