三亚海棠颐和府售楼中心欢迎您【三亚海棠颐和府】咨询楼盘信息/预约看房请拨打本文置顶销售热线!售楼处位置--最新房价-户型图一站式了解!
扫描到手机,新闻随时看
扫一扫,用手机看文章
更加方便分享给朋友
【基础信息】
开发商:三亚亿隆
占地面积:83710㎡
建筑面积:59357.81㎡
容 积 率:0.4
总 户 数:25户
产权年限:40年
停车位:206个(包含酒店停车位)
绿 地 率:50.8%
建筑密度:18.6%
交付标准:毛坯交付
产品售价:3800万—1亿
【项目效果图】
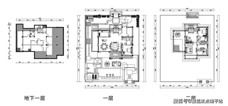
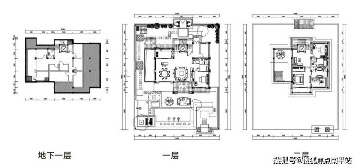
【户型鉴赏】B户型品鉴
地上面积204.85㎡,庭院净面积403-810㎡,占地面积0.8-1.4亩
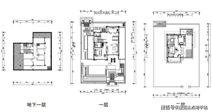
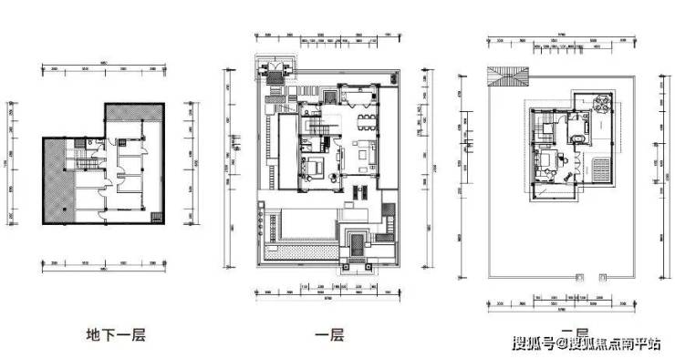
D户型品鉴
地上面积330.99㎡,庭院净面积767-1826㎡,占地面积1.1-3亩
E户型品鉴
地上面积447.03㎡,庭院净面积564-1051㎡,占地面积1.24-1.97亩
声明:本文由入驻焦点开放平台的作者撰写,除焦点官方账号外,观点仅代表作者本人,不代表焦点立场。
