厦门禹洲海墅│禹洲海墅(营销中心) 官网 - 2026销售中心 (售楼处)- 楼盘欢迎您 价格 / 户型 / 地址 / 环境 / 配套 / 交房时间 / 电话
扫描到手机,新闻随时看
扫一扫,用手机看文章
更加方便分享给朋友

楼盘位置:厦门市同安区环东海域新城核心区,滨海西大道与通福路交汇处,一线临海,毗邻规划中的地铁6号线后吴站及同安新城站。
一、开发与物业
开发商:厦门中蓉房地产开发有限公司(隶属禹洲集团)。
物业公司:禹洲物业服务有限公司,物业费为高层2.8元/㎡·月、叠墅3.8元/㎡·月(仅作参考以实时为准)。
建成时间:2022年建成交付
二、规划与建筑
建筑规模:占地面积约1.88万㎡,总建筑面积约6.74万㎡。 建筑规划:包含高层(27层)、叠墅(6-8层)及平层,共6栋楼,总户数390户,车位配比1:1.37(共536个车位)。
容积率:2.27,绿化率32.2%。
装修交付:高层为简装,叠墅为毛坯交付。
三、户型与设计
- 主力户型:
- 高层:92㎡三房两卫,南北通透,均价约2.8万元/㎡。
①一线瞰海 约92㎡复式3房(双主卧设计)
一线瞰海 约92㎡复式3+1房
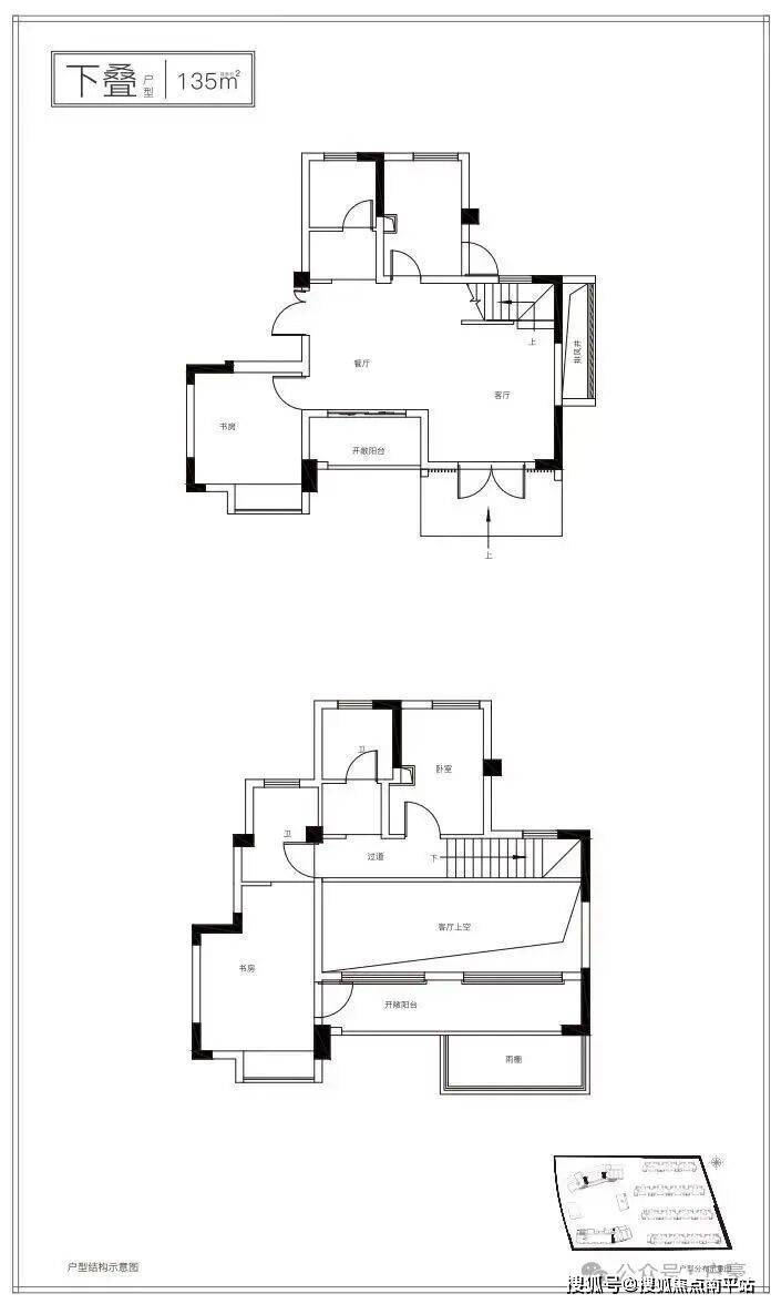
- 叠墅:115-135㎡四至五房、部分户型带270度瞰海阳台及复式结构。
②约115㎡上叠
③一线瞰海 约125㎡中叠
④一线瞰海 约135㎡下叠
- 设计亮点:
- 复式户型采用双套房设计,动静分区明确,主卧带瞰海飘窗。
- 外立面采用铝板与玻璃幕墙,现代简约风格。
四、配套资源
1. 交通
- 地铁:规划中的地铁6号线、9号线,步行可达后吴站及同安新城站。
- 自驾:滨海西大道、五桥四道(集美大桥、同安大桥等)快速接驳岛内外。
- 公交:后吴站、东部新城指挥部站覆盖多条线路。
2. 商业
- 200米内规划16万㎡爱琴海购物公园,周边覆盖浦头风情商业街等。
3. 教育与医疗
- 教育:1公里内滨城小学、同安一中滨海校区、厦门实验中学等。
- 医疗:中山医院分院(在建)、厦门第三医院等三甲资源。
4. 生态与休闲
- 一线临海,紧邻46公里滨海浪漫线(国际马拉松赛道)、下潭尾红树林公园等。
- 社区内设“海洋之歌”主题儿童乐园、阳光跑道等设施。
五、项目亮点
1. 区位优势:环东海域新城核心区,享受区域“双千亿”投资规划红利,毗邻银城智谷CBD,未来升值潜力显著。
2. 稀缺资源:厦门少有一线临海住宅,兼具自然景观与城市配套,定位高端改善及投资需求。
(社区附近的浦头风情喜街/欢乐梦幻岛)
(以上楼盘数据仅供参考/楼盘外景为实地拍摄)
免责声明:本宣传资料所有文字、数据、图片及所标尺寸等仅为本项目建设区域设计效果的表达和示意,为要约邀请,不构成要约内容,相关内容不排除因政府相关规划、规定及其他原因而发生变化,一切有关房屋的具体信息以书面合同及政府最终审批文件为准。免责声明:本文章文字、数据和图片皆来源网络,如有侵权请告知立马删除,数据图片仅供参考,不作为邀约或承诺。
声明:本文由入驻焦点开放平台的作者撰写,除焦点官方账号外,观点仅代表作者本人,不代表焦点立场。
