✆✆看房预约热线 400-159-8559转接8080 【贵宾热线】振业·悦江府位于南湖新城,市中心地段,绿化率35%,主打135-140㎡四房,配套齐全,环境优美。
4001598559,8080
振业·悦江府
振业·悦江府售楼处电话:✆✆看房预约热线 400-159-8559转接8080 【贵宾热线】【售楼中心】
咨询高峰期请耐心等待,预约来电尊享内部优惠,专业一对一热情服务,让您用专业眼光去买房。
河东市中心,配套优质
但也避不开“老破小”
振业悦江府,位于目前相当“内卷”的南湖新城,这里豪宅齐聚,“神仙打架”。
先来看项目最大的区位优势:是妥妥的市中心楼盘,距 4号线碧沙湖站直线距离约300米,紧靠南湖路隧道,过江很方便。
但因为需要跨越南湖路人行天桥,思覃实测从项目步行到达碧沙湖地铁站预计8分钟。

区位示意图,仅供参考
项目仅有2栋住宅
在售132-140㎡4房
项目的“特征”也很明显,仅有规划2栋住宅和1栋公寓,其中1#栋住宅24层,2#栋住宅34层。
两栋住宅均为3个单元的布局,由于项目周边多为低楼层建筑,高层视野较为开阔。

沙盘实拍图
置业顾问告诉思覃:虽然地块小,但绝对会用心打造园林。
据介绍:振业阅江府的绿化率约35%,将打造集游乐、运动、交际于一体的全龄化多元社区:规划开放式的屋顶花园;人车分流,业主的安全性得到保障。
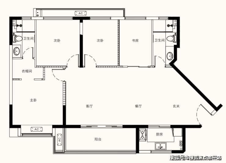
目前,振业阅江府在售2#,类板楼设计,主打建面约135-140㎡户型。
其中,建面约135-140㎡为四房设计,三开间朝南,约7.4米景观阳台,户型周正但略常规。

建面约135-140㎡户型图
另外的建面约132-134㎡的B户型,但有一定特点:因为是异型楼的原因,入户是一个拐角,客餐厅+玄关一体。

建面约132-134㎡户型图
振业·悦江府
振业·悦江府售楼处电话:✆✆看房预约热线 400-159-8559转接8080 【贵宾热线】【售楼中心】
咨询高峰期请耐心等待,预约来电尊享内部优惠,专业一对一热情服务,让您用专业眼光去买房。
目前,项目仅仅做了 135-140㎡户型清水样板间,思覃实探的现场的空间感受还不错。
除常规硬装外,振业阅江府配置美的+3M净水系统,但并未配置中央空调等三大件,整体中规中矩。

样板间实拍图
精装1.5万起
首付60万上车市中心
目前,振业悦江府的价格具有一定的竞争力。
振业悦江府”毛坯限价13000元/㎡, 目前精装售价在1.5万/㎡,总价200万左右(首付60万起),就能上车河东市中心。
振业悦江府周边,绿城摘得的绿城凤起麓鸣楼面价达14157元/㎡,售价超3万/㎡!中海摘得地块楼面价同样达到12299元/㎡。 招商华发天汇现房在售,精装均价1.5万/平。
目前,南湖新城,商业/住宅大平层占据主流,整体偏终极改善置业;而且未来随着绿城、中海等入市,房价也将进入3万+时代!

项目效果图,仅供参考
振业·悦江府
振业·悦江府售楼处电话:✆✆看房预约热线 400-159-8559转接8080 【贵宾热线】【售楼中心】
咨询高峰期请耐心等待,预约来电尊享内部优惠,专业一对一热情服务,让您用专业眼光去买房。
【城芯正席】尽藏地利之势

一席居城芯,云开见视界,悦江府以傲视群雄之姿,雄踞长沙河东城区正中,天心区核芯区域,立足繁华之上,依托政府打造的湘江金融外滩,对接城市发展速度,区域配套完善且醇熟,生活品质感不可比拟,未来升值潜力更加不可估量!
【纵横生活】执掌城市主脉
项目位于书院路与南湖路交汇处,依托于“两横两纵一隧道”格局的交通路网,拥享城市双地铁,距地铁4号线碧沙湖站距离约300m,距地铁1号线南湖路约1.4km,小区楼下就是公交车站,出行多选随意自许,尽享城市捷径。

【风华正茂】悦享繁华大境
悦江府矗立时代潮流的主场,汇聚南湖新城商圈、五一商圈、侯家塘商圈,地段等优势凸出,距离长沙老街南门口仅1.9公里,与保利国际广场、外國商业广场为邻,真正实现吃喝玩乐购10分钟生活圈,成就江岸醇熟生活。

【天赋臻贵】一城风光半城江
城市依水而兴,人类逐水而迁,湘江涵养诸多历史人物,湘江东岸更堪称豪宅聚集区。步行约5分钟即达湘江风光带,与橘子洲头、岳麓山隔江相望,江上风光与城市高端生活气质尽显。

【翰墨传承】书香环绕造门第百年师范为邻,与湖南“四大名校”其中的雅礼和长郡中学本部距离仅约3公里。悦江府周边汇聚雅礼外国语学校、南湖小学、湖南省第一师范附属小学,构建片区内“近、全、优”教育体系,启赋智慧未来。

【健康护航】生活有“医”靠
悦江府周边优质医疗环绕,距长沙市第三医院约1.5公里, 10分钟车程内可达是长沙市中医医院,距离湖南省第二人民医院、湖南省儿童医院及湖南中医药大学第一附属医院等三甲级医院也不远,享受最好的医疗服务,时刻为您的健康生活保驾护航。

振业·悦江府
振业·悦江府售楼处电话✆✆看房预约热线 400-159-8559转接8080 【贵宾热线】【售楼中心】
咨询高峰期请耐心等待,预约来电尊享内部优惠,专业一对一热情服务,让您用专业眼光去买房。
郑重承诺:此房源信息真实有效,开发商直属全程营销策划,中介勿扰如有问题欢迎来电咨询,来电即可享受买房优惠!
1、本资料为要约邀请,不作为要约或承诺;买卖双方的权利义务以双方签订的《商品房买卖合同》及其补充协议、附件等书面文件为准;相关宣传内容不排除因政府相关规划、规定及出卖人分期规划、未能控制等原因发生变化;出卖人将!不定期对宣传材料进行修改,敬请留意最新资料。
2、图片来源于网络,仅作为推广示意使用;如涉及版权使用,请与我司联系。