格调「王炸」全揭秘!格调·尔雅☞现已盛放,恭迎亲鉴!中环内孤本架空叠墅,约70米宽大门丨户型图鉴赏丨社区配套—尔雅售楼处电话₯尔雅售楼中心销售动态
扫描到手机,新闻随时看
扫一扫,用手机看文章
更加方便分享给朋友
♎♬天津【格调·尔雅】
♎♬售楼处电话☎️400-159-8559转接5555【已认证】꧂✨✽✽✽✽
♎♬营销中心电话☎️400-159-8559转接7777【已认证】꧂✨✽✽✽✽
♎♬温馨提示—拨打400电话—听到嘀声后—输入【7777】即可通话☎️☎️
♎♬楼盘基本信息介绍,地址,户型,备案价,位置,医疗教育,商业交通配套!
☎ 在此温馨提醒:若您计划看房,为确保能享受到更优质、贴心的接待服务,请提前致电售楼部进行预约 。而且,还有免费看房车接送服务哦,若您有此需求,致电售楼处即可预约
有没有发现?最近格调有些新变化。
2025年2月摘得的工大2号地,4月26日发布案名「格调·尔雅」,随即项目外展亮相,5月18日临售开放,6月8日样板间开放……
整体开发速度较之前有了明显提升。
这背后,是格调正在构建日益成熟的开发体系。
依托强大的系统支撑,格调得以更从容高效地打造紧贴市场需求的新项目。
2025年,格调同期开发项目将达30余个。
其中格调·尔雅作为河东重仓之作,倾注了多项升级亮点:
低密基因:市区难得1.3容积率绝版大面宽地块,规划叠墅+洋房稀缺产品
建筑美学:「无界全屏」南立面,「几何」北立面,高奢酒店归家大堂
超级中轴:贯穿整个社区东西,大约288米长,浓缩了会所空间、山川河岳
社交地标:约70米宽的华盖式大门,约1200㎡、覆盖11种场景的高端会所
户型革新:「零缺角」、「零干扰」叠墅,双玄关、极致面宽洋房 ☎️☎️售楼处电话☎️☎️400-159-8559转接5555【已认证】(来电尊享优惠活动)

「珍宝级」宅地
中环内1.3容积率,全架空墅区

格调·尔雅是天津工大旧址上的5宗地块之一,规划银梭路与规划碧缘路交口西南侧。
南侧是老工大逸夫楼,东侧紧邻约3.6万㎡的泮湖公园,西北侧是河东实验小学韶山校区。
地块既远离主干道的噪杂,又能近享生态公园的静谧,可谓「出则繁华、入则宁静」。☎️☎️售楼处电话☎️☎️400-159-8559转接5555【已认证】(来电尊享优惠活动)
▲格调·尔雅区位示意
项目占地面积约3.37万㎡,建筑面积约4.39 万㎡,容积率仅1.3。
这也是天津近15年来,中心城区容积率第二低、中环线以内容积率最低的住宅用地,仅次于中环外格调·锦云的1.29。
同时,地块呈现东西横宽、南北扁平形状,天生具备充裕的面宽优势,可实现每套户型南向采光面最大化。
这样一块「珍宝级」地块,格调自然不能暴殄天物。
尔雅项目最终被定位为格调最高端的「A标」产品,打造立足河东、辐射全市的城央墅级奢产。
整个社区规划为「叠墅+洋房」的组合,总共只有320户。
▲项目鸟瞰效果图
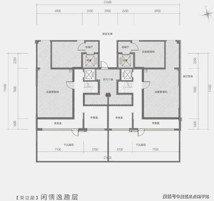
项目采取全架空设计,整体抬高约6米——这已是新规上限。虽大大增加了成本,却能重构空间价值:
社区大门、归家大堂、业主会所的尺度都能做得更充分,整盘的高级感更加突出。
车行出入口位于社区东、北侧,驾车外出、归家平进平出,不必上下坡道。
整个车行动线都位于架空层内,和架空层顶的社区层天然分隔,实现完全人车分流。
社区地面层相当于传统小区标准3层的高度,站在小区最东端,能毫无遮挡地欣赏东侧的泮湖美景。
首层户型能打造出「双标准层下跃空间」,拓展了居住空间的垂直维度。
借南北两排楼间超长的东西向空间,结合架空社区的立体特性,格调打造出一条近288米「超级中轴」。☎️☎️售楼处电话☎️☎️400-159-8559转接5555【已认证】(来电尊享优惠活动)

隐奢超级中轴
山水门庭+下沉幽谷+盖上院落

格调·尔雅的主入口位于社区东侧,直面向约3.6万㎡的泮湖公园。
这座璀璨夺目的大门,既「奢」又「隐」,未来一定会吸引路过的行人停下来掏出手机拍照。
说它「奢」,是因为尺度的宏阔。
中央高约9米、宽约30米的华盖式门顶,再加上两侧借架空层边界延伸的景墙,整个入口展示面达到近70米。
整座门顶如一片舒展的「树冠」,金属条勾勒出「枝干」,透光云石天幕如花瓣般展开。
车库入口也被集合在左侧景墙内,与大门实现一体化,一样的流光溢彩,一样的仪式感十足。
说它「隐」,是因为布局的巧妙。
格调把一座微缩山水园林,装进了约12米进深的华盖式门庭之下。
怪石堆叠成峰,造型松斜倚相伴,瀑布垂流漱石,共同绘出一幅拙朴隐逸的画卷。
这座园林既和对面公园呼应,又遮挡住入口,让归家之路始于一场穿越园林的仪式。☎️☎️售楼处电话☎️☎️400-159-8559转接5555【已认证】(来电尊享优惠活动)
▲项目主入口过程版效果图
穿过大堂,是会所环抱的下沉庭院,仿佛一座与世隔绝的「深山幽谷」。
迎面借约6米的架空层高差,以「鱼鳞插石」手法堆砌起一座巨型假山,凌厉且自然。
瀑布从崖顶跌落,再经过三级跌水,汇入底部的镜面浅池。水流冲刷岩石的「砯砯」(pīngpīng)声,让下沉庭院更显幽静。

▲项目下沉庭院过程版效果图
造型松枝干虬曲,红枫点缀其间,龟背球与草甸勾勒曲线,空间纵深感得到极致展现。
浓郁的禅意氛围下,让人恍若置身深山古寺,心境也随之沉静。☎️☎️售楼处电话☎️☎️400-159-8559转接5555【已认证】(来电尊享优惠活动)
▲项目下沉庭院过程版效果图
架空平台顶部,三进院落围绕着下沉庭院渐次舒展。
白墙灰瓦、青松置石,在砾石铺就的「水纹」间投下斑驳疏影,营造出空灵悠远的意境。
▲项目园林景观过程版效果图
正中耸立着中式观瀑亭「风雅堂」,两侧护栏旁设置休闲座椅,让你可以在不同位置俯瞰下沉庭院的精妙。
▲项目园林景观过程版效果图
以大门为起点,一条植入了会所空间、浓缩了山川河岳的「超级中轴」,在社区中央徐徐展开。
▲项目园林景观过程版效果图

海派社交地标
约1200㎡会所×双枢纽归家动线

社区归家大堂藏在门廊之下,它和业主会所构成一个「回」字型,包裹着二进制下沉庭院。
整个公区的面积约1200㎡,对比320户的社区规模,每户均享的公共服务空间足有约3.75㎡,这在低密项目中堪称奢侈。

▲业主会所功能布局示意
走进归家大堂,首先是一座奢华的迎宾序厅,仿若踏入了旧上海的优雅时光。
深色花纹地砖、精致线条勾勒的白色墙面、优雅的百叶格栅与神圣的拱形门窗,光影交织中诉说往昔。
▲迎宾序厅过程版效果图
它更像一个迎接你归家的交通中枢。
背后是摩登复古的休闲吧,对标奢华酒店大堂。☎️☎️售楼处电话☎️☎️400-159-8559转接5555【已认证】(来电尊享优惠活动)
▲大堂休闲吧过程版效果图
迎面的玻璃幕墙如同画框,背后下沉庭院的山水景致映入,恰似仇英名画《高山流水》悬于墙面。
▲大堂休闲吧过程版效果图
往左厢房走,是充满活力的健身房、瑜伽室,一个人就可以玩得很解压的高尔夫球房,能够卸去一身疲惫的SPA房……
挥汗如雨地锻炼时,一抬头就能欣赏到庭院美景。
▲健身房过程版效果图
往右厢房走,又是一步一景。
这边像「林间的茶室」,那边像「山间的艺术厅」,还有可以看到瀑布的私宴厅、可以举行各种趣味课堂的泛教育区……
尽头一条长廊,以简洁优雅的白色为主调,拱形结构错落排列,勾勒出空间韵律,艺术氛围悄然蔓延。
▲私享交流区过程版效果图
▲艺术中厅过程版效果图
会所东、西侧设置了两部电梯,你从大堂进入,可乘梯上架空层顶,再穿「超级中轴」从首层入户大堂归家。
会所最西端还设计了一处「中央车站」,与归家大堂形成双重礼仪节点。
▲「中央车站」过程版效果图
你穿过会所,可从这里进入架空车库,穿行后从车库大堂乘梯上楼。
送客车辆也可停在这里,你下车后直接进入会所,仪式感瞬间拉满。☎️☎️售楼处电话☎️☎️400-159-8559转接5555【已认证】(来电尊享优惠活动)

▲归家动线规划示意

艺术地标建筑
繁花屋顶+全屏屋身+几何北立面

格调·尔雅的建筑立面以中西合璧的「海派」风格所打造,实现四大亮点升级。
繁花屋顶造型
取意海派文化中的「鎏金岁月」意向,屋顶以金属材质勾勒出层叠绽放的花瓣轮廓,如盛世繁花凌空舒展。
入夜时,内置灯带勾勒出柔美的发光轮廓,仿佛重现了外滩百年建筑的雕花穹顶。
▲洋房建筑立面过程版效果图
晶莹剔透屋身 ☎️☎️售楼处电话☎️☎️400-159-8559转接5555【已认证】(来电尊享优惠活动)
南立面以超大窗墙比为基底,搭配窗间与窗坎墙的装饰玻璃铺贴,营造无界全屏的通透感。
最东端两栋楼的主卧巨型转角飘窗,以曲面屏玻璃精密拼接,如水晶切割般折射出灵动光影。
▲洋房建筑立面过程版效果图
米白、深灰、玫瑰金等金属线角交织,勾勒出层次丰富的建筑体块。
叠墅开敞式阳台错落有致,仿佛透明琴键静待时光弹奏。
▲叠墅建筑立面过程版效果图
海派奢华门头
门前精致的地面铺装,不锈钢与仿奢石彩釉玻璃、白洞石等元素的搭配,传承了和平饭店等海派地标的Art Deco奢华基因。
▲入户大堂过程版效果图
几何北立面
北侧楼梯间外侧采用大面积菱形纹金属装饰,通过强烈的几何韵律,刻画出令人过目难忘的建筑符号。
▲洋房北立面过程版效果图
▲叠墅北立面过程版效果图
项目共规划8栋4-11层的T2洋房,2栋4层叠墅。
叠墅户型分为两款:一、二层下叠建筑面积约220㎡,三、四层上叠建筑面积约155㎡。
它们完全满足新一代低密住宅的六要素:
业主会所提供了「强大的社交空间」,「超级中轴」营造出「强烈的园林感」。
户型均为「南向大面宽」,下沉庭院+露台实现「有天有地」,精细化设计实现「独立归家」和「避免对视」。☎️☎️售楼处电话☎️☎️400-159-8559转接5555【已认证】(来电尊享优惠活动)
◀滑动查看下叠户型图▶
◀滑动查看上叠户型图▶
洋房户型共有三款:建筑面积约105㎡、128㎡、139㎡三室两厅两卫。
全部为大开间、短进深布局;全部配置贯通梯、独立电梯厅、内外双玄关;全部宽厅设计,最大宽厅尺度达到约7.7米。
◀滑动查看更多洋房户型▶

革新范式叠墅
有天有地+极致面宽+独立归家

格调·尔雅的叠墅户型,每一款布局都非常合理,室内规整方正,无任何缺角。☎️☎️售楼处电话☎️☎️400-159-8559转接5555【已认证】(来电尊享优惠活动)
各个空间尺度分配平衡又充分,没有任何无效走道,空间利用效率极高。
尤其是首层约7.1米×7.3米的巨型方厅,将客厅、餐厅、厨房等功能高效融合,形成开放式「家庭核心聚场」。

▲叠墅方厅示意
而户型之所以做得如此规整,秘密在交通核设计:
一个单元配置两部电梯、一部楼梯,都「外挂」于建筑体外,自然不用占户内面积。
这样设计不仅降低了公摊,还让上叠实现「一户一梯」。

▲叠墅平面布局示意
上叠业主从架空车库和首层乘电梯上楼入户,走的都是独立私享电梯厅,根本不会和对门邻居碰面。

▲上叠独立入户示意
下叠业主在架空车库和首层地面则有自己的独立归家动线,也不会和楼上邻居碰面。

▲叠墅归家动线示意
同时,上、下叠业主的首层归家动线采取并列设置,互不干扰。
再利用上叠地面小院的景墙/绿篱遮蔽视线,这样就能避免上下叠对视问题。

▲叠墅首层视线示意
而且,下叠户型南有下沉庭院,北有首层入户庭院,二层有南向开敞阳台。
上叠户型的三层有南向开敞阳台,四层有南、北向屋顶露台,首层有北侧入户庭院。
这样每一层都能打造一个「私家庭院」,实现「有天有地」的墅居体验。

▲下叠庭院露台示意

▲上叠露台示意
最抢眼的,还是下叠的下跃空间——它可不是传统的「地下室」,而是在架空层内、地面之上。
阳光和清风从下沉庭院轻盈涌入,身处其中,其实和传统楼盘的一层无异。
约6米的挑空,就是两个标准层,再加上首层和二层,下叠户型就拥有了12个南向开间。☎️☎️售楼处电话☎️☎️400-159-8559转接5555【已认证】(来电尊享优惠活动)
这种全明下跃空间,简直就是生活的殿堂,你可以在自己家里藏下一个独属的会所,一个令人羡慕的俱乐部。

奢阔进化洋房
双玄关+一体化宽厅+无柱转角飘窗

洋房三款户型均采用「一梯二+贯通梯」布局,电梯居中,门朝两侧开,让每套户型门前均形成独立电梯厅。
各类管井巧妙设置在外侧楼梯间内,物业维护无需经过住户门前区域,保障了私密与整洁。
搭配梯控系统能精准过滤非住户人员,让电梯厅真正成为仅供业主私享的独立空间。

▲洋房户型示意
这样,就形成户内、户外双玄关:
门前利用墙垛空间可以做一面收纳柜,用作「功能玄关」;进门后增强仪式感的设计,用作「礼仪玄关」。
而且,建筑面积约128㎡、139㎡两款户型,入户门旁都预留了步入式独立储藏间的位置。
有了这样一个集中储藏空间,钓具、滑雪器械、露营装备等大件季节性用品就能够轻松收纳。

▲洋房户型示意
三款户型均为宽厅,开间分别约5米、7.1米、7.7米。
更大的客厅面宽,意味着更大的采光面,空间感也被有效拉大,让你有一种户型面积被放大的错觉。

▲洋房户型示意
特别是客厅的落地窗,格调都取消了中挺,选用一整面巨幅玻璃。
像建筑面积约139㎡户型,这块玻璃的尺寸能达到约4.5米×2.25米,面积约10㎡,仿佛一块IMAX大屏,无损引入户外景色。
同时,餐厨空间都可实现一体化设计,并与客厅实现融合,形成开放式的社交空间。
这种「LDK一体化」设计,既能提升空间利用率,又能满足家庭互动与多元场景需求。

▲洋房户型示意
社区最东侧两栋楼的建筑面积约128㎡户型,为了更好地欣赏东侧湖景,主卧都采用L型转角飘窗。
关键是格调还利用特殊结构处理,去掉了转角承重柱,真正实现「无界视野」,让空间变得更加开阔。
♎♬天津【格调·尔雅】
♎♬售楼处电话☎️400-159-8559转接5555【已认证】꧂✨✽✽✽✽
♎♬营销中心电话☎️400-159-8559转接7777【已认证】꧂✨✽✽✽✽
♎♬温馨提示—拨打400电话—听到嘀声后—输入【7777】即可通话☎️☎️
♎♬楼盘基本信息介绍,地址,户型,备案价,位置,医疗教育,商业交通配套!
☎ 在此温馨提醒:若您计划看房,为确保能享受到更优质、贴心的接待服务,请提前致电售楼部进行预约 。而且,还有免费看房车接送服务哦,若您有此需求,致电售楼处即可预约
特别说明:
1.本文为要约邀请,不作为要约或承诺;相关宣传内容不排除因政府相关规划、规定及出卖人分期规划、未能控制等原因而发生变化;
2.本文部分图片来自于网络,如涉及版权使用,请联系删除;文本部分图片仅作为推广示意使用,非交付标准,最终以实际交付现状为准;
3.本宣传资料对项目周边学校等教育资源的介绍旨在提供相关信息,并不意味着本公司对就学安排作出承诺。教育资源的名称、办学性质、办学规模、学位设置、开学(班)时间、招生条件、收费标准及招生区域存在调整的可能,应以政府教育主管部门及办学方颁布的政策规定为准;
4.本资料对项目或产品的介绍,旨在提供相关信息,不意味着本公司对此作出了承诺,买卖双方的权利义务以《商品房买卖合同》及附件等协议为准;
5.宣传方保留对宣传资料修改和解释的权利
声明:本文由入驻焦点开放平台的作者撰写,除焦点官方账号外,观点仅代表作者本人,不代表焦点立场。
