2026海口吉祥7号(售楼处) 官方首页-销售中心-环境 -户型-价格-地址-楼盘详情 - 配套 - 售楼处电话 - 交房时间 - 配套 - 电话
扫描到手机,新闻随时看
扫一扫,用手机看文章
更加方便分享给朋友
国兴 CBD 核心改善盘,吉祥置业升级之作,纯板楼精装现房,高使用率、现代美学立面,适配主城改善人群。
基础核心参数
1. 地址:海口市美兰区国兴大英山东二街
2. 开发商:海口吉祥房地产开发有限公司
3. 物业:滨江吉祥物业
4. 规模:总占地约 9932.71㎡(约 15 亩),总建面 39735.50㎡
5. 楼栋 / 户数:1 栋 26 层高层板楼 + 1 栋 6 层商综楼,住宅 196 户,2 梯 4 户
6. 产权:70 年住宅产权
7. 容积率 3.0,绿地率 30%
8. 车位:配比 1:1,人车分流
9. 交付:2025 年 9 月精装交付(现房 / 准现房)
10. 商业配套:11 间沿街商铺(建面约 30–97㎡,6 米层高)
区位与交通
1. 板块:海口国兴 CBD 核心,紧邻海府路、国兴大道,衔接海府老城与国兴新城
2. 路网:国兴大道、海府路、白龙南路交织,公交密集,自驾便捷
3. 通勤:步行可达日月广场、桫椤湾;近海口东站、美兰国际机场

全维配套
1. 教育:周边覆盖优质公立 / 民办学校,教育资源丰富(划片以当年官方公告为准)
2. 商业:楼下沿街商铺,步行至日月广场、国兴大润发、桫椤湾商业街
3. 社区内部:现代美学园林、休闲区,商综楼配套可满足日常消费
4. 医疗:临近省市级三甲医院,就医方便
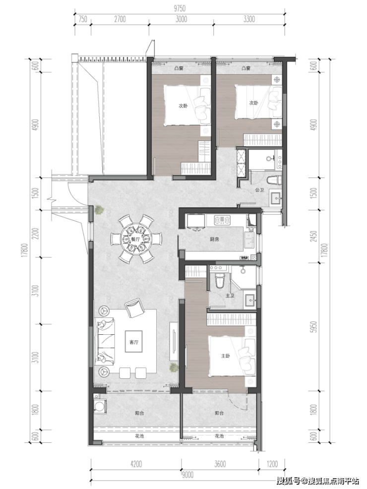
户型图
A户型 143㎡三房两厅两卫

B户型 121㎡三房两厅两卫

C户型 144㎡三房两厅两卫

免责声明:本宣传资料所有文字、数据、图片及所标尺寸等仅为本项目建设区域设计效果的表达和示意,为要约邀请,不构成要约内容,相关内容不排除因政府相关规划、规定及其他原因而发生变化,一切有关房屋的具体信息以书面合同及政府最终审批文件为准。免责声明:本文章文字、数据和图片皆来源网络,如有侵权请告知立马删除,数据图片仅供参考,不作为邀约或承诺。
声明:本文由入驻焦点开放平台的作者撰写,除焦点官方账号外,观点仅代表作者本人,不代表焦点立场。
