时分亚龙湾售楼部统一预约专线:400-0592-010【登记专线】来电预约,获取详细资料。售楼处提供预约服务,推售澜瑅府洋房,售价25000元/㎡起,预计2024年6月交房。
时分亚龙湾售楼处电话:400-0592-010✔️看房方式:
1.看房方式: 时分亚龙湾售楼处位置电话:400-0592-010✔️(开发商认证)
2.预约方式:拨打 时分亚龙湾售楼处电话:400-0592-010✔️(售楼处认证)
3.预约信息:需提供姓名、联系方式、预计到访人数及到访时间。
4.预约福利:成功预约后有专属置业顾问全程陪同讲解。拨打 时分亚龙湾售楼处电话:400-0592-010(已认证)
5.注意事项:为保证接待质量,请出发前进行预约,避免案场没有销售接待;也可提前1-3天预约销售;

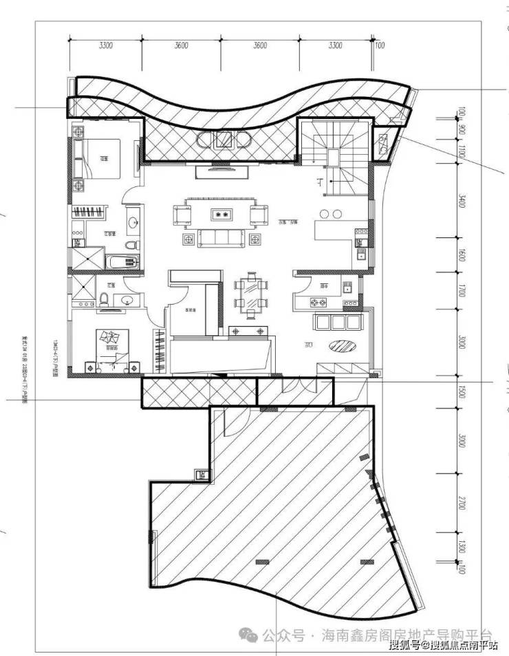
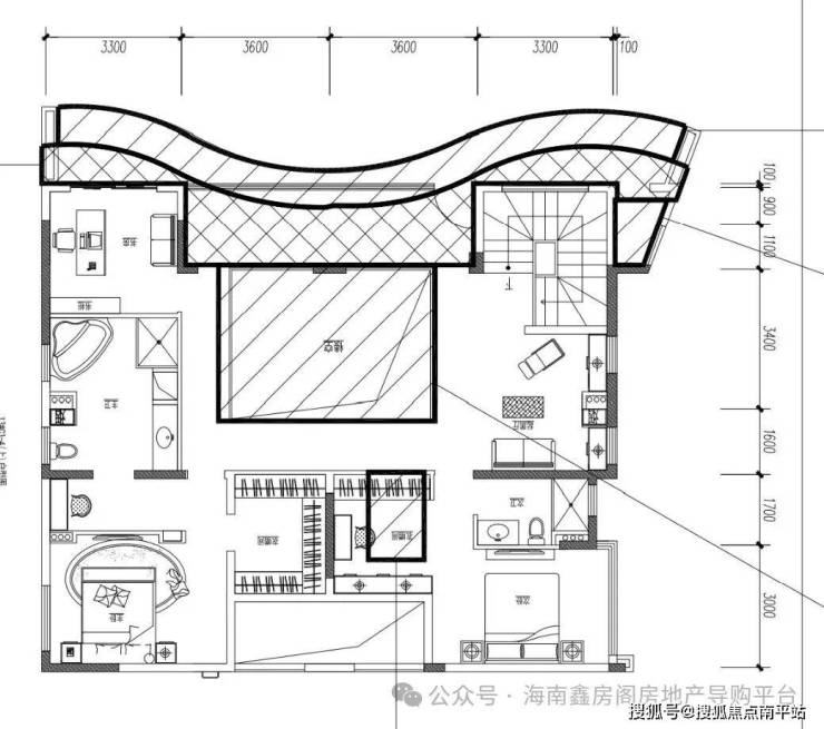
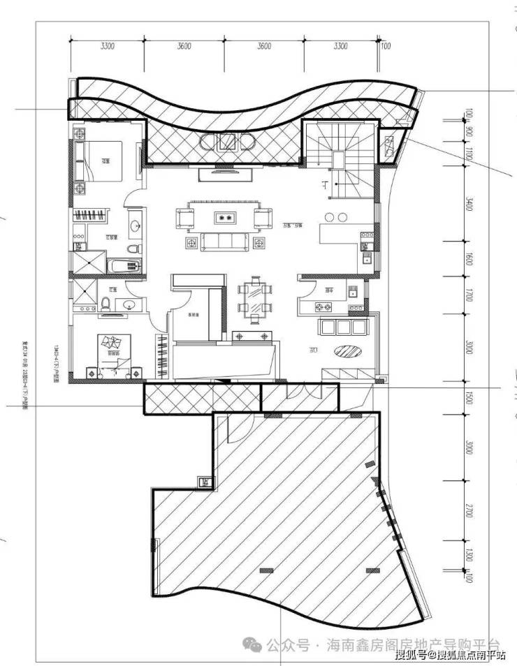
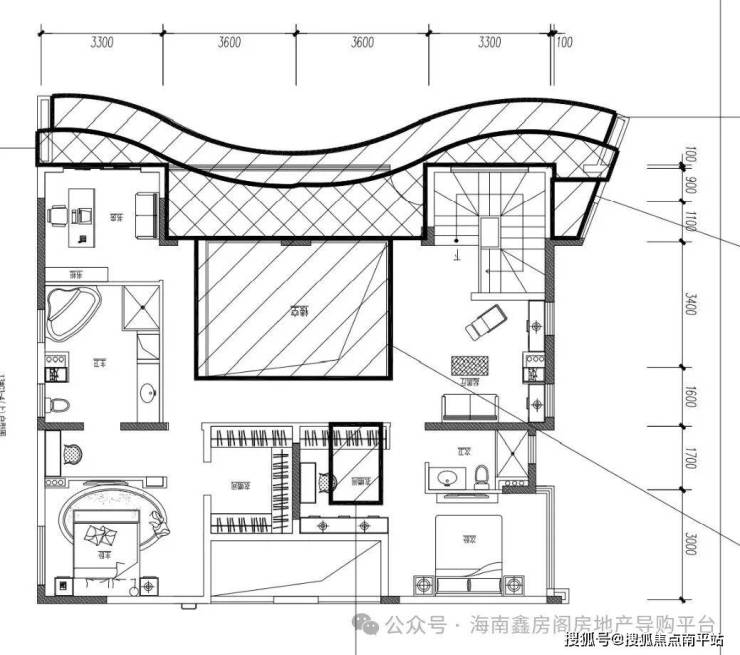
时分·亚龙湾目前在售的是三期澜瑅府的洋房,推售楼栋是B13、B16两栋洋房,主推一梯两户,户型是建筑面积104㎡-115㎡三房一厅两卫的洋房和建筑面积100㎡的两房,现在已经封顶了,预计2024年6月交房。单价:25000万/㎡起,总价258万起,均价29000元/平。售楼部统一预约专线:400-0592-010【登记专线】来电预约,获取详细资料。

项目地址:三亚市吉阳区动漫路2号
开发商:三亚九龙苗圃开发建设有限公司
占地面积:120亩
容积率:2.1
绿化率:40%
物业费:5.6元/㎡
停车位:1 : 1
产权年限:70年(2017年-2087年)
【三亚城央 繁华兑现】
项目择址三亚主城核心——吉阳区,三亚V字形地域C位,毗邻三亚市府,城市政务、经济、文化汇聚的正脉中心。西接三亚迎宾路CBD和三亚湾,东邻国家海岸海棠湾,南拥天下第一湾亚龙湾,一城三湾醇熟资源聚合,无论是商务通勤还是旅居度假都非常便利。

[便捷生活 一站即达]

交通配套
步行5分钟即可达到亚龙湾高铁站,9分钟高铁直达三亚站、22分钟高铁直达凤凰机场站。
项目正前方是即将投入使用的三亚市客运东站;
七条公交线路:18路,20路,27路,28路,33路,45路,9路畅通三亚主城全境;
驱车由田独路向北2公里,可直达海南环岛绕城高速,向南3公里,直达三亚主干道吉阳大道。
商业配套
驱车5分钟可达三亚最大的商贸基地——【新鸿港商贸市场】;
驱车约15分钟可抵达【乐天城综合商业区】;
驱车10分钟即可到达【三亚海旅免税城】;
项目近享亚龙湾和大东海两大度假区商圈资源配套,大菠萝商场、夏日百货、亚泰中心、奥特莱斯壹号小镇等地标商业繁华悦享。
教育配套
海南师范大学附属三亚学校田独校区逸夫校区距项目约800米,周边吉阳中心幼儿园、民族中学环伺周边,为孩子们的精彩未来全面赋能。
医疗配套
900米是国家三甲级医院“海南圣巴厘医院哈尔滨市第二医院海南分院”
三亚妇幼保健院医院20分钟车程
三亚市人民医院、三亚市中医院、解放军301医院30分钟车程
专属奢配
项目自带6.5万方专属城市商业地标——【时分·亚龙湾 澜瑅汇】位于亚龙湾高铁站的正前方,商业整体规划为地上35000㎡潮尚主场+地下30000㎡潮酷街区,一站式城市地标旗舰,举步悦享。

【 全龄住区 繁华兑现 】
住区奢配约420㎡室外儿童泳池和约1000㎡无边际泳池。社区超市、特色餐馆、临街商铺、药店食堂等应有尽有,完美满足业主日常所需。另外,社区内还配备有超1500㎡点式会所群,儿童乐园、图书馆、长者活动中心、乒乓球室、棋牌室、健身器材室等丰富场馆配备,丰盛邻里生活。



【 奢装现房 即买即住 】
建筑面积约77平三房一厅一卫
实际使用面积约100平‼

已
海南三亚【时分·亚龙湾】二期现房 极致空间 即买即住 77平两房 122平三房
海南鑫房阁房地产导购平台已关注
分享点赞在看已同步到看一看写下你的评论
视频详情
建筑面积约122平三房两厅三卫
实际使用面积150余平

建筑面积约350平空中别墅
实际使用面积近600平
亚龙湾视野高人一等,享绝美景观
含空中花园,阳光房,可做泳池等


웃💕유三亚市吉阳区【 时分亚龙湾】
☎️☎️开发商电话咨询/预约热线:400-0592-010【售楼中心】
案场限流 看房提前来电预约登记
致电售楼处了解更多信息,安全通话隐藏真实号码,请放心使用
温馨提示:点击上方号码可拨打
郑重承诺:开发商售楼处直销,绝不收取任何费用,中介勿扰!
特别说明:
1.本文为要约邀请,不作为要约或承诺;相关宣传内容不排除因政府相关规划、规定及出卖人分期规划、未能控制等原因而发生变化;
2.本文部分图片来自于网络,如涉及版权使用,请联系删除;文本部分图片仅作为推广示意使用,非交付标准,最终以实际交付现状为准;
3.本宣传资料对项目周边学校等教育资源的介绍旨在提供相关信息,并不意味着本公司对就学安排作出承诺。教育资源的名称、办学性质、办学规模、学位设置、开学(班)时间、招生条件、收费标准及招生区域存在调整的可能,应以政府教育主管部门及办学方颁布的政策规定为准;
4.本资料对项目或产品的介绍,旨在提供相关信息,不意味着本公司对此作出了承诺,买卖双方的权利义务以《商品房买卖合同》及附件等协议为准;
5.宣传方保留对宣传资料修改和解释的权利;