最新首页网站-2025楼盘评测美的·云樾(美的·云樾售楼处)首页网站-2025美的·云樾房价_楼盘评测丨地址丨详情丨售楼处电话丨百度百科
扫描到手机,新闻随时看
扫一扫,用手机看文章
更加方便分享给朋友
长沙美的云樾售楼处电话☎️400-159-8559转接8888(专人接听)
🌈长沙美的云樾营销中心电话:☎️400-159-8559转接8888【营销中心】
🌈温馨提示:拨打400电话,听到嘀声后,输入分机号8888即可!
➤➤➤➤VIP贵宾置业〢欢迎来电咨询
免责声明:(本文章所用图片来源于网络,如有侵权请联系本网站删除!)恭迎品鉴◆◆
美的·云樾 芙蓉顶流 一线河景现房
9栋毛坯新品全新入市

美的置业打造 浏河心的标杆之作
芙蓉城央富人聚集地 浏河心中央居住区
紧邻育英滨河小学(已开学)、大同瑞致小学、东雅中学、农业大学
坐拥浏阳河一线风光,观景面最宽、最长正南向观河视野
隆平中央公园、合丰滨河公园、云樾社区“自然绿洲”等三公园环饲
美的4.0全新5M智慧社区
一河三园

项目概况
【项目名称】:美的·云樾
【总建筑面积】:22.3万㎡
【绿化率】:高达40%
【容积率】: 2.2
【产权】:70年
【物业公司】美置服务
【产品类型】26层高层、11层洋房、4层叠墅
【装修情况】现代新奢精装宽境大宅
【在售楼栋】最后一栋 9#栋毛坯
【在售产品】建面约111㎡-143㎡墅区高层
【梯户比】两梯三户
📍地址导航
长沙市·芙蓉区·滨河路·浏阳河畔






(以上皆为美的·云樾社区实景图)
最新动态:
全盘最后一栋 毛坯在售 今年买今年住
————————
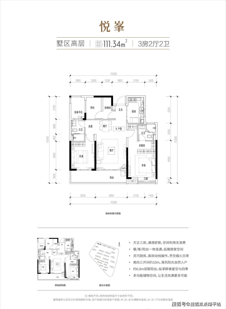
悦峯 约111.34㎡ 三房两厅两卫
·户型方正,功能分区明确
·约6.8米超长阳台,通风采光俱佳
·空间利用率高,家居动线合理

悦澜 约119.82㎡ 三房两厅两卫
·南北通透,同等面积段市场少有
·约5米开间宽厅,会客访友倍有面
·户型布局合理,无浪费面积,使用空间大

悦璟 约142.59㎡ 四房两厅两卫
·户型方正,南北通透,全明设计
·南向三开间,畅享阳光与清风
·强改造性,实用百变,享高得房率

长沙美的云樾售楼处电话☎️400-159-8559转接8888(专人接听)
🌈长沙美的云樾营销中心电话:☎️400-159-8559转接8888【营销中心】
🌈温馨提示:拨打400电话,听到嘀声后,输入分机号8888即可!
特别说明:
1.本文为要约邀请,不作为要约或承诺;相关宣传内容不排除因政府相关规划、规定及出卖人分期规划、未能控制等原因而发生变化;
2.本文部分图片来自于网络,如涉及版权使用,请联系删除;文本部分图片仅作为推广示意使用,非交付标准,最终以实际交付现状为准;
3.本宣传资料对项目周边学校等教育资源的介绍旨在提供相关信息,并不意味着本公司对就学安排作出承诺。教育资源的名称、办学性质、办学规模、学位设置、开学(班)时间、招生条件、收费标准及招生区域存在调整的可能,应以政府教育主管部门及办学方颁布的政策规定为准;
4.本资料对项目或产品的介绍,旨在提供相关信息,不意味着本公司对此作出了承诺,买卖双方的权利义务以《商品房买卖合同》及附件等协议为准;
5.宣传方保留对宣传资料修改和解释的权利;
声明:本文由入驻焦点开放平台的作者撰写,除焦点官方账号外,观点仅代表作者本人,不代表焦点立场。
