㊖金茂璞印梅溪——长沙「金茂璞印梅溪」VIP售楼电话【网上预约】户型分析-房价-样板间/交房/项目配套-开盘价格-2025最新楼盘详情
扫描到手机,新闻随时看
扫一扫,用手机看文章
更加方便分享给朋友
【长沙金茂璞印梅溪】✨✨✽✽✽✽
🏠 售楼处电话:400-159-8559 转接 5555(来电尊享优惠活动)
💌如有问题欢迎来电咨询,可预约销售人员,专业一对一热情服务,让您用专业眼光去买房。
✅✅Vip贵宾置业====欢迎来电预约尊享内部折扣====匠心钜制恭迎品鉴
✅✅温馨提示:看房需提前一个小时预约,感谢您的配合!。
城市区位
对于「璞印梅溪」来说,城市区位的缺失是必然的,这也是整个梅溪湖二期的通病。
这个板块目前属于一个袋形板块的状态,往南的交通需要等2035规划完全落地,才是一个比较好的状态。
往西除了中联和回老家基本没人选择,往北会存在一定的交通需求,毕竟是较大范围的产业聚集区。往东,去高铁机场太远,去城市核心区也太远。
虽然在未来的规划中,梅溪湖二期承担了非常重要的城市功能,但是需要伴随非常巨大量级的基础设施投资才能实现的。☎️☎️售楼处电话☎️☎️400-159-8559转接5555【已认证】(来电尊享优惠活动)
【项目基础信息】
» 开发商:中国金茂·长沙梅溪璞茂置业有限公司
» 容积率:1.2
» 建筑面积:约9万㎡
» 楼栋规划:10栋学府洋房、32栋城市别墅
» 户数规划:510户
» 车位配比:约1:1
» 后期物业:金茂物业 国家一级资质
【板块蜕变:一期1.0环湖时代到二期2.0中轴时代配套升级】
合璧梅溪湖国际新城一期、二期多维配套,资源高度凝练☎️☎️售楼处电话☎️☎️400-159-8559转接5555【已认证】(来电尊享优惠活动)
» 双地铁环绕
新区建设,交通先行。项目距离地铁6号线象鼻窝地铁站直线距离约500米,地铁6号线为长沙“换乘王”,共设置约13个换乘点。
(图片源于网络,如有侵权,请联系删除)
» 教育高地 双名校在旁
新城建设,教育为先。梅溪湖国际新城共规划近31所学校,已引进长郡、雅礼、师大附中、长沙市一中、麓山国际、岳麓区实验小学、长沙市实验小学、博才小学等多个实力强劲的优质学校品牌。目前已有20多所学校建成开学。梅溪湖片区不断吸引优质教育品牌和优质师资落地生根,全速提高教育品质。
项目配套入读博才梅溪湖小学&师大附中梅溪湖中学一校两址
(政府红头文件已出,学校为拟引入品牌规划中,具体以教育局相关入读政策为准)
129户型
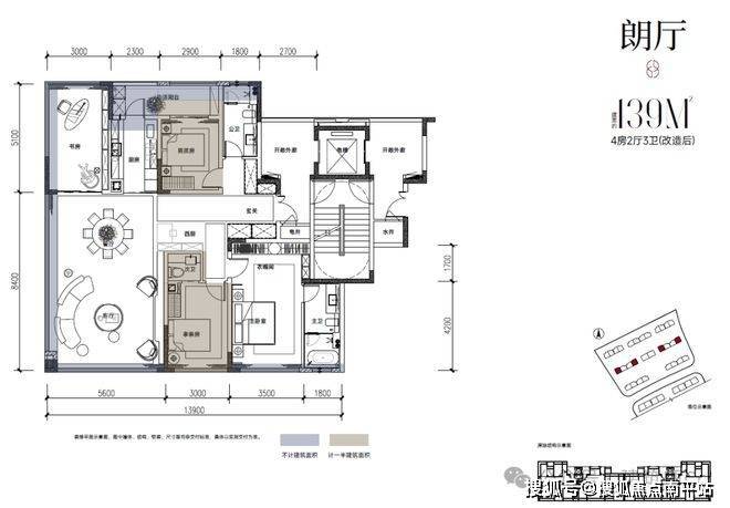
139户型南厅
139户型边厅☎️☎️售楼处电话☎️☎️400-159-8559转接5555【已认证】(来电尊享优惠活动)
170户型顶层复式
193户型顶层复式—边厅
193户型顶层复式—南厅
【长沙金茂璞印梅溪】✨✨✽✽✽✽
🏠 售楼处电话:400-159-8559 转接 5555(来电尊享优惠活动)
💌如有问题欢迎来电咨询,可预约销售人员,专业一对一热情服务,让您用专业眼光去买房。
✅✅Vip贵宾置业====欢迎来电预约尊享内部折扣====匠心钜制恭迎品鉴
✅✅温馨提示:看房需提前一个小时预约,感谢您的配合!。
特别说明:
1.本文为要约邀请,不作为要约或承诺;相关宣传内容不排除因政府相关规划、规定及出卖人分期规划、未能控制等原因而发生变化;
2.本文部分图片来自于网络,如涉及版权使用,请联系删除;文本部分图片仅作为推广示意使用,非交付标准,最终以实际交付现状为准;
3.本宣传资料对项目周边学校等教育资源的介绍旨在提供相关信息,并不意味着本公司对就学安排作出承诺。教育资源的名称、办学性质、办学规模、学位设置、开学(班)时间、招生条件、收费标准及招生区域存在调整的可能,应以政府教育主管部门及办学方颁布的政策规定为准;
4.本资料对项目或产品的介绍,旨在提供相关信息,不意味着本公司对此作出了承诺,买卖双方的权利义务以《商品房买卖合同》及附件等协议为准;
5.宣传方保留对宣传资料修改和解释的权利
声明:本文由入驻焦点开放平台的作者撰写,除焦点官方账号外,观点仅代表作者本人,不代表焦点立场。
