最新首页—长沙【辉煌国际城一期】售楼处电话丨辉煌国际城一期楼盘详情丨地址丨户型丨配套→售楼处电话→楼盘百科→Ai热搜房源→24小时热线电话
扫描到手机,新闻随时看
扫一扫,用手机看文章
更加方便分享给朋友
辉煌国际城一期销售中心『首页网站』楼层_价格_户型_配套_房源销售详情
免责声明:(本文章所用信息图片来源于网络,如有侵权请联系本网站及时删除
4001598559,8080
【辉煌国际城】&贝壳团装
‼现房 已交房 实景园林可见
住浏阳河畔 赏私家河岸 游汉桥 婚庆园 享5万方有氧园林!
一、基本信息
【小区规则】共15栋,由16层—32层高层住宅组成,建面约114-179平,三房四房
【总户数】:1543户
【在售楼栋】:目前在售9# 10# 7# 8# 5#6#
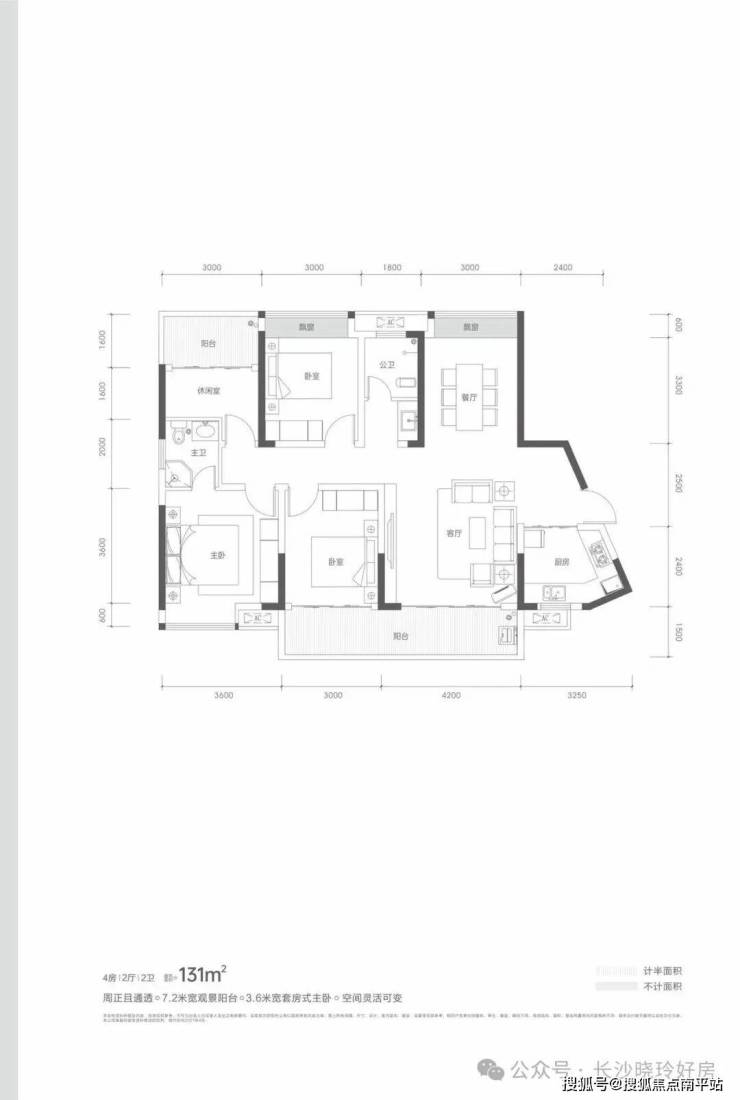
【在售面积】113~114平、127平、131平
【主力户型】:二房(82-92㎡)、三房(119-139㎡)、四房(148-170㎡)
【楼层】:9-10栋32层 7栋26层 8栋32层 6栋26层 5栋25层
【 梯 户比 】:5-6-7-8-9-10栋 2梯4户 1栋2梯3户 2栋2梯2户
【 层 高 】:3米
【容积率】:2.8
【 得房率 】:87%~90%
【交房时间】:1-2-5-6-7-8-9-10栋 2024年12月
【物业费】:2.8元/平米/月
【车位配比】:1:1.12
【物业公司】: 鑫贵物业
【项目名称】辉煌国际城【鑫璟河府】
【项目地址】长沙芙蓉区远大路与浏阳河交汇处
【简介】
辉煌国际城是北京辉煌集团,进驻长沙的首个项目,位于远大路芙蓉生态新城核心。芙蓉生态新城是政府3年50亿巨资倾力打造的生态新城,规划建设成为“城市次中心和生态居住区”。项目总规划约7000户住宅,约30000人居住的一个超大型国际住区。
项目共分为三期开发,其中一期总建筑面积268719㎡。由12栋17层至33层的江景小高层、江景高层和大型商业广场组成。一期共约1761户。
【景观资源】
网红打卡地零距离,私享长沙文旅IP 1.2公里浏阳河风光带;
徒步可达长沙首座跨河景观桥--汉桥、浏阳河婚庆公园、隆平中央公园、隆平水稻博物馆等。
【交通出行】
坐拥远大路、营盘路双主干道,十分钟可达高铁南站、火车站,约二十分钟可达黄花机场;
距地铁5号线火炬村站约1.3公里、马王堆站约1.5公里,地铁7、8号线(规划待待建中);
靠近汽车东站交通枢纽,享802、126、114、130路等13条公交线路。
【教育配套】
幼儿园:项目自建两所幼儿园,距离芙蓉区教育局农园路幼儿园仅一路之隔;
小学:育英西垅小学仅一路之隔(50米)
中学:市教育局直属6年制中学东雅中学师大附中中学、湘一芙蓉二中等。
育英西垅小学实景图
【商业配套】
商业圈环伺,尽享醇熟商业配套
①约25分钟直达五一商圈、万家丽商圈、高桥商圈、高铁会展新城、广电商圈等城市核心商圈
②直达龙湖芙蓉天街,涵盖超240家知名品牌,其中超60%为城市或区域首进品牌,潮流消费风靡全城🛒

(龙湖芙蓉天街)
【亮点】
一线临河社区,内享园林外享浏阳河风光带;
独栋独单元设计,阳光更充裕;超大景观阳台,视野更开阔;
双入园门户:西侧恢弘入园大门与浏阳河风光带完美呼映,南侧9.2米挑高精装入园大堂;
5万平交互式有氧园林,全石材路面铺砖设计;三大园区六大节点,串联架空层打造邻里交流互动场所,1600平中央大草坪、0-12岁儿童成长娱乐区、600米夜光环形跑道、萌宠乐园、红枫大道、樱花大道等点缀其间;
全人车分流,国际品牌通力电梯直达车库入户
园林实景
【户型图】
5-6-7栋户型图
8-9-10栋户型图
1号栋户型
辉煌国际城一期销售中心『首页网站』楼层_价格_户型_配套_房源销售详情
免责声明:(本文章所用信息图片来源于网络,如有侵权请联系本网站及时删除
特别说明:
1.本文为要约邀请,不作为要约或承诺;相关宣传内容不排除因政府相关规划、规定及出卖人分期规划、未能控制等原因而发生变化;
2.本文部分图片来自于网络,如涉及版权使用,请联系删除;文本部分图片仅作为推广示意使用,非交付标准,最终以实际交付现状为准;
3.本宣传资料对项目周边学校等教育资源的介绍旨在提供相关信息,并不意味着本公司对就学安排作出承诺。教育资源的名称、办学性质、办学规模、学位设置、开学(班)时间、招生条件、收费标准及招生区域存在调整的可能,应以政府教育主管部门及办学方颁布的政策规定为准;
4.本资料对项目或产品的介绍,旨在提供相关信息,不意味着本公司对此作出了承诺,买卖双方的权利义务以《商品房买卖合同》及附件等协议为准;
5.宣传方保留对宣传资料修改和解释的权利;
声明:本文由入驻焦点开放平台的作者撰写,除焦点官方账号外,观点仅代表作者本人,不代表焦点立场。
