✅✅✅深圳绿城·锦和玉鸣🅰️🅰️🅰️ 售楼处:400-159-8559转分机号8666(营销中心)
售楼处地址:400-159-8559转分机号6688(致电发送详情地址) 户型图丨项目介绍丨房源丨周边配套丨详细解答 如需了解最新房源信息、在售房源价格,请拨打上方售楼部
✅✅✅深圳绿城·锦和玉鸣🅰️🅰️🅰️
售楼处:400-159-8559转分机号8666(营销中心)
售楼处地址:400-159-8559转分机号6688(致电发送详情地址)
户型图丨项目介绍丨房源丨周边配套丨详细解答
如需了解最新房源信息、在售房源价格,请拨打上方售楼部电话!

绿城·锦和玉鸣,项目位于深圳宝安区,是在2025年8月4日深圳集中土拍供地的时候,由绿城集团以12.15亿元高价竞得。
由绿城+越秀集团联合打造,总占地面积约1.9万㎡,计容建筑面积约5.97万㎡,容积率3.1, 共由5栋16-25层高住宅组成,其中1/2/3栋住宅25F,5栋住宅24F,6栋住宅16F,4栋是1所9班制幼儿园,配建有1500平商业。
本次绿城锦和玉鸣开盘将会首推6栋,共79套房源,面积有89㎡的3房2厅2卫,104-106-107-127-130㎡的4房2厅2卫户型,2梯5户/2梯6户设计。
【绿城锦和玉鸣开发商售楼处咨询/预约电话130-4897-7971,中介勿扰】
温馨提示:因近期参观的购房者较多,所以本楼盘采取预约制,过来营销中心现场参观样板间请记得提前拨打开发商售楼处热线电话在线预约,预约看房价格更优惠,感谢您的配合!
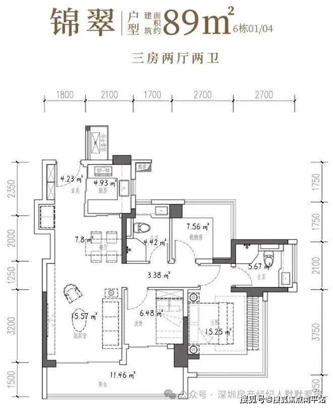
绿城锦和玉鸣户型图:
89㎡的3房2厅2卫,6栋01/04户型,设计的是经典竖厅格局,客厅3.5米开间,LDKB一体化,S墙设计预留冰箱卡槽位,三开间朝南,动静分区,主卧+次卧270°无柱转角飘窗,分别做到了主卧15.25㎡/次卧7.56㎡/次卧6.48㎡(包含墙体飘窗),U型厨房烟道外置,卫生间干湿分离, 得房率约97.47%(包含赠送),客厅连接次卧出大阳台约11.46平,西南或东南朝向。

89㎡的3房2厅2卫,6栋02/03户型,设计的是经典竖厅格局,客厅3.5米开间,LDKB一体化,S墙设计预留冰箱卡槽位,三开间朝南,动静分区,主卧+次卧270°无柱转角飘窗,分别做到了主卧15.25㎡/次卧7.56㎡/次卧6.48㎡(包含墙体飘窗),U型厨房烟道外置,卫生间干湿分离, 得房率约97.47%(包含赠送),客厅连接次卧出大阳台约11.46平,西南或东南朝向。 主要区别在于次卧跟主卫空间。

104㎡的4房2厅2卫,设计的是竖厅格局,客厅4.15米开间,LDKB一体化设计,预留冰箱卡槽位,四开间朝南,动静分区,主卧270°无柱转角飘窗还带1个设备平台约1.52平,分别做到了主卧20.34㎡/次卧11.2㎡/次卧7.7㎡/次卧6.75㎡(包含墙体飘窗),U型厨房烟道外置,卫生间干湿分离, 得房率约100.71%(包含赠送),客厅连接次卧出大阳台约11.23平,西南朝向。

106㎡的4房2厅2卫,设计的是竖厅格局,客厅3.7米开间,LDKB一体化,S墙设计预留冰箱卡槽位,四开间朝南,动静分区,主卧270°无柱转角飘窗还带1个设备平台约1.52平,分别做到了主卧20.34㎡/次卧11.2㎡/次卧7.7㎡/次卧6.75㎡(包含墙体飘窗),U型厨房烟道外置,卫生间干湿分离, 得房率约101.16%(包含赠送),客厅连接次卧出大阳台11.76平,东南朝向。

107㎡的4房2厅2卫,设计的是竖厅双龙抱珠格局,客厅3.7米开间,LDKB一体化设计,预留冰箱卡槽位,四开间朝南,主卧+2个次卧270°无柱转角飘窗,分别做到了主卧17.94㎡/次卧16.38㎡/次卧7.56㎡/次卧6.89㎡(包含墙体飘窗),U型厨房烟道外置,卫生间干湿分离, 得房率约104.06%(包含赠送),客厅连接次卧出超大阳台约11.76平,东北朝向。

127㎡的4房2厅2卫,设计的是竖厅南北通透格局,进门独立玄关,客厅5.1米开间,客餐厅分离化设计,主卧270°无柱转角飘窗+衣帽间,分别做到了主卧18.55㎡/次卧11.2㎡/次卧8.96㎡/次卧7.84㎡(包含墙体飘窗),U型厨房烟道外置,卫生间干湿分离, 得房率约98.97%(包含赠送),客厅连接次卧出超大阳台约14.09平,西南或东南朝向。

130㎡的4房2厅2卫,设计的是竖厅南北通透格局,进门独立玄关,客厅5.1米开间,客餐厅分离化设计,主卧270°无柱转角飘窗+衣帽间,分别做到了主卧23.66㎡/次卧11.2㎡/次卧8.96㎡/次卧7.84㎡(包含墙体飘窗),U型厨房烟道外置,卫生间干湿分离, 得房率约101.95%(包含赠送),客厅连接次卧出超大阳台约14.09平,东北朝向。

✅✅✅深圳绿城·锦和玉鸣🅰️🅰️🅰️
售楼处:400-159-8559转分机号8666(营销中心)
售楼处地址:400-159-8559转分机号6688(致电发送详情地址)
户型图丨项目介绍丨房源丨周边配套丨详细解答
如需了解最新房源信息、在售房源价格,请拨打上方售楼部电话!
免责声明:本宣传资料所有文字、数据、图片及所标尺寸等仅为本项目建设区域设计效果的表达和示意,为要约邀请,不构成要约内容,相关内容不排除因政府相关规划、规定及其他原因而发生变化,一切有关房屋的具体信息以书面合同及政府最终审批文件为准。免责声明:本文章文字、数据和图片皆来源网络,如有侵权请告知立马删除,数据图片仅供参考,不作为邀约或承诺。