环东金茂悦云湾售楼处电话→环东金茂悦云湾售楼中心电话→2026环东金茂悦云湾楼盘百科→楼盘网站→售楼中心电话→楼盘百科→24小时热线电话→楼盘详情
扫描到手机,新闻随时看
扫一扫,用手机看文章
更加方便分享给朋友
环东金茂悦售楼处电话:400-159-8559转接8000【官方认证】
环东金茂悦开发商电话:400-159-8559转接8000【权威认证】
环东金茂悦营销中心电话400-159-8559转接8000【售楼中心】
本项目暂不接受临时到访,过来参观样板房请记得提前来电预约!
免责声明:本文所用信息图片来源于网络,如侵权请联系本网站及时删!
4001598559,8000
十四载,金茂重回姑苏原点:小满胜万全,初心再回响

金茂玩了一把“闪电战”。
姑苏区南门沃尔玛地块,金茂3月29日正式拿到手仅一天时间,3月30日建设规划方案即批前公示。
当然,这绝不是金茂托大,而是高效率的金茂将地块的很多前期工作以及设计工作前置化了,流程效率拉满的同时,也彰显了在地产行业风声鹤唳的当下,金茂一如既往的保持着自己的节奏和要求。

南门沃尔玛地块,土地编号苏地2026-WG-Z01号,对于姑苏区而言,其实在地块出让之前,就吸引很多苏州人在持续关注。
因为这块地本身,就承载了很多人的苏州记忆。
地块早在2025年上半年就已经调规公示,将原商业属性调整为RB商住混合用地。调规之初,有意向的房企就将目光投注于身了。
也就是说,金茂本质上,早在七八个月前,就已开始着手研究沃尔玛地块的前期研究工作了。
所以,看起来是“闪电战”,但这个“闪电战”的前期准备工作,已经打磨了一次又一次了,成竹在胸的闪电战。
地块位于姑苏区吴门桥街道南环东路南、东吴北路东,金茂以总价6.51亿元摘下,成交楼面价16500元/㎡。

金茂第一时间对外发布拿地公报,核心精神是:传奇姑苏,再启新章。
对于金茂,姑苏区是其苏州蓝图的第一笔,是金茂苏州的起源点。
2012年,金茂以“姑苏金茂府”作为开山之作,首入苏州,自此金茂在苏南的项目遍地开花。凭借金茂府系的科技系统与品质坚守,赢得了苏州高端市场的信任。

2023年,金茂落子狮山,赋予苏州全新的产品体系:“金玉满堂”。狮山金茂府以府系3.0,实现从科技住宅到“自然生长的社区”的升级。
2026年,金茂再次将目光聚焦初心始发地——姑苏。据悉,苏地2026-WG-Z01号地块整体定位为金茂苏州首个“满系”产品。
“满系”主打“艺术+满配”,核心价值为“自在丰盈、高颜高定”,Slogan是:“生活尽丰盈,小满胜万全”。
从这些精神内核的文字描述就可以看出,“满系”秉持的是“小满胜万全”的居住哲学——不追求极致奢华,而是追求全面均衡、精神自洽。产品搭载金茂3.0科技系统,构建“衡温、衡湿、衡氧、衡洁、衡静”五维健康环境,实现艺术审美与科技内核的统一。

当然,规划公示上,肯定只能看到这些理念的一点皮毛。真正的产品内核,还是需要等到项目实际出来以后,才能去体会和品味。
还是先初窥金茂姑苏“小满”的样子吧。
地块用地性质为RB商住混合用地,项目共包含A区、B区,总用地面积33935㎡;
根据规划公示显示:
A区用地面积5137㎡,总建筑面积29584.5㎡,其中计容建筑面积23116.5㎡,最大建筑高度92m,容积率4.5;
B区用地面积28798㎡,总建筑面积64318.15㎡,其中计容建筑面积37437.4㎡,建筑密度37%,地块最大建筑高度为49.25m,综合容积率1.3;
项目鸟瞰图:

项目采用“商业+小高层+洋房+叠墅”的布局模式,拟建1栋23F商业建筑,12栋4-15F住宅建筑,其中1栋15F小高层、5栋9-11F洋房,6栋4F叠加别墅。
3#、6#、10#楼一层架空,11#、12#楼局部架空,架空层预计未来将结合社区景观打造多功能主题泛会所,强化社区功能和景观体验。

地块双面邻水,在首层全架空的第5代住宅,抬板社区概念已经逐渐普及的当下,这个地块没必要摒弃这个理念。所以,姑苏区的首个抬板社区,由金茂打造。
作为姑苏区首个抬板墅区,金茂将主要居住生活层整体抬升至地面以上,下方形成连续、开放的架空空间,统筹布置停车设施、设备用房及社区配套功能等,社区地面层剥离交通等干扰因素,释放空间完全回归为纯粹的景观与公共活动空间,提升居住品质。
项目建筑南低北高,结合地块条件,沿西南水系规划低密产品,叠墅建筑间距13.6-15.7m不等,洋房建筑间距29.1-32.3m不等,社区空间私密舒适且具有层次感。

项目的主入口设置在西侧东吴北路,由于东吴北路南侧仍有原来的建筑存在,所以限制了金茂对社区主入口的规划呈现,难以再现狮山金茂府百米大门的恢弘再现,但金茂还是将主入口和北侧酒店的配套裙楼统筹规划,结合景观构架的设计,将视觉动线延升到北侧商业视角,同样可以打造一条非常不错的归家视觉动线。

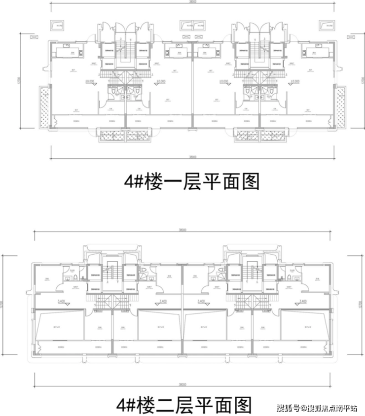
项目同步公示4#楼一层、二层平面图,9#楼一层、标准层平面图,和酒店一、二层及标准层平面图。
9#,8F洋房,T2设计



具体来看,9#楼公示两个洋房户型,边户面宽约15.1m,中间户面宽约14.5m,边户和中间户主要差异在主卧飘窗设计,但两个户型面积与空间布局一致。
户型建面约140㎡,4房2卫,三卧室朝南,主卧套房设计,开放式G型厨房,LDBK一体化公区,边套主卧设计270°全景窗,另外户型把阳台、飘窗的赠送空间拉满做足,户型既有空间感,又有高附加值。
(数据仅供参考,实际以开发商公布为准)
9#楼南立面效果图:现代轻奢美学设计,大面积玻璃幕墙+高窗墙比,香槟金的标志性专属色调,重新定义姑苏古城。

4#,4F叠加



具体来看,本次公示两个下叠户型,建面约185/165㎡,南向最大面宽约9.9/9.0m。,多开间朝南。
一层设置LDBK一体化超大公区,搭配南向次卧,满足家庭聚会与老人居住需求;
二层布置为双套房+自定义空间+南向大阳台,挑空面积边户约25㎡、中间户23㎡,阳台赠送边户18㎡、中间户16㎡;
整体户型设计呈现大开间、全套房高赠送的特点。
(数据仅供参考,实际以开发商公布为准)
4#楼南立面效果图:
本次暂未公示上叠户型,但从叠加立面的效果图来看,上叠户型应该采用动静倒置的设计模式,即三层为卧室为主的休息静区,四层为客餐厨为主要功能的动区功能,结合露台设计,增加上叠户型的附加值。

北侧:23F酒店及酒店配套商业
酒店1-3F为酒店大堂及宴会厅等配套,标准层包含18间套房,酒店客房合计约360间。



从公示的酒店立面效果图来看,未来引入的酒店品牌或为希尔顿。
这对于姑苏区、亦或项目本身来说,有品牌酒店的加持,项目未来的价值有更多的想象空间。

方案只是初步公示,前文也说到了,通过公示,也只能领会“满系”的一些皮毛。
比如“满系”所提倡的“高颜高配,细节致美”,采用艺术高定逻辑,注重建筑美学和细节工艺,如独特的外立面设计、艺术装置、材质选择等,打造“隐奢之美”,使居住空间既悦目又赏心,体现对审美的高要求。
这一点,通过公示的洋房和叠墅的立面示意可见一斑。
但“满系”所提倡的更多居住内核,未来还要依托于项目更多的产品信息释放。
比如“精神丰盈与自在留白”,如何通过艺术化设计、自然景观融合和空间留白,为居住者提供安放身心、滋养精神的场所,让生活回归本真,实现“自在丰盈”。
比如“功能适配,全龄友好”,未来在社区内,如何结合社区空间和抬板空间,规划配置全龄段、全场景的社区设施,如健身区、图书馆、社交空间等,满足不同家庭成员的生活需求,兼顾实用性与舒适性,实现“高配”而不浮夸。
至于“”科技赋能,健康生态”,这是金茂的标配,不用看规划,也能预见得到。
…………
如此种种!!!
从姑苏到姑苏,十四载,拿地一天就出规划,不是炫速度,而是对这片土地足够熟悉。
姑苏首个抬板墅区、4-15F低密产品、洋房以及叠墅的产品选择以及设计逻辑……每一处设计都在回应“小满胜万全”的居住哲学:不追求极致奢华,只求全面均衡、处处到位、精神自洽。
当金茂的科技基因遇上姑苏的千年文脉,当“满系”的艺术审美融入南门的烟火气,或再加上希尔顿花园酒店的加持,这个项目大概率会成为2026年苏州高端改善市场的一个爆款。
十四载,重回姑苏原点:小满胜万全,初心再回响!!!
PS:项目信息最终以开发商释放为准。
环东金茂悦售楼处电话:400-159-8559转接8000【官方认证】
环东金茂悦开发商电话:400-159-8559转接8000【权威认证】
环东金茂悦营销中心电话400-159-8559转接8000【售楼中心】
本项目暂不接受临时到访,过来参观样板房请记得提前来电预约!
免责声明:本文所用信息图片来源于网络,如侵权请联系本网站及时删!特别说明:
1.本文为要约邀请,不作为要约或承诺;相关宣传内容不排除因政府相关规划、规定及出卖人分期规划、未能控制等原因而发生变化;
2.本文部分图片来自于网络,如涉及版权使用,请联系删除;文本部分图片仅作为推广示意使用,非交付标准,最终以实际交付现状为准;
3.本宣传资料对项目周边学校等教育资源的介绍旨在提供相关信息,并不意味着本公司对就学安排作出承诺。教育资源的名称、办学性质、办学规模、学位设置、开学(班)时间、招生条件、收费标准及招生区域存在调整的可能,应以政府教育主管部门及办学方颁布的政策规定为准;
4.本资料对项目或产品的介绍,旨在提供相关信息,不意味着本公司对此作出了承诺,买卖双方的权利义务以《商品房买卖合同》及附件等协议为准;
5.宣传方保留对宣传资料修改和解释的权利;
声明:本文由入驻焦点开放平台的作者撰写,除焦点官方账号外,观点仅代表作者本人,不代表焦点立场。
