海口【文新特·天玺壹号 】
💗售楼处电话:400-159-8559-5158【官方认证】💗
💗24小时热线◆温馨提示:看房需提前预约💗
💗售楼处电话☎☎:400-159-8559-5158〢【专人接听】💗
💗◆在售房源户型价格详询售楼处〢一对一服务💗
💗售楼处电话:400-159-8559-5158〢【售楼中心】💗
💗售楼处销售1v1专业讲解〢24小时热线💗
天玺壹号2.0版本
使用率超110%的好房子
海口·文新特·天玺壹号(简称天玺壹号)是位于海口秀英区的高拓展精装住宅,核心卖点是万达对面、超高得房率、刚需/刚改户型。

🏠 基础信息
• 全称:文新特·天玺壹号
• 位置:海口市秀英区 秀英大道与白水塘路交汇处(万达广场正对面)
• 开发商:海南恒基广厦地产(文新特集团)
• 规模:占地约2.5万㎡,建面约12.5万㎡
◦ 6栋高层住宅(20–25层)+1栋酒店+社区商业
◦ 总户数:652户
◦ 容积率:3.5,绿地率:30%
◦ 车位:732个(车位比约1:1.12)
• 装修:精装交付
• 产权:70年住宅
• 交房:预计 2027年6月
地段成熟
◦ 一路之隔:万达广场(步行5分钟)
◦ 近秀英大道、椰海大道、海秀快速路
• 配套全
◦ 商业:万达、锦地翰城、海玻市场
◦ 教育:秀华小学、十四中、丘海学校(规划)
◦ 医疗:省人民医院、海医二附院(3km内)
📊 主力户型
• 95㎡ 2+1房2厅2卫
◦ 刚需首选,通透格局,可拓第三房
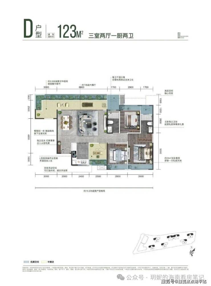
• 123㎡ 3+2房2厅2卫
◦ 高拓展,适合多孩/三代同堂
• 135㎡ 3+3房2厅3卫
◦ 顶奢户型,约10.3米横厅/庭院,可做6房

交通方面,天玺壹号占据椰海大道与秀英大道两大主干道交汇节点:串联起南海大道、滨海大道、海秀快速路、丘海大道等多条交通动脉,毗邻城际铁路秀英站,立体交通便捷通勤;从项目出发,10分钟即可接驳环岛高速,畅达全岛!
项目一路之隔,就是片区人气中心—万达广场。
医疗方面,海南医学院第二附属医院、海南省人民医院和现代妇女儿童医院等多家三甲医疗环伺。
尤其值得一提的是教育资源:
天玺壹号周边10分钟车程内,覆盖了多所幼儿园、北京大学附属中学、景山学校等优质民办名校,以及高考成绩稳居全市头部的老牌名校海口一中(高中部)。
在建的12年一贯制丘海学校,正式定档2026年开学招生!
据悉,丘海学校占地接近100亩,将提供450个幼儿园学位,1890个小学学位和1500个初中学位,开学后将一举缓解周边公立学位紧张的局面。

项目规划了6栋高层住宅+1栋品质酒店,提供约95-135㎡在内的四大户型,全面覆盖刚需及高端改善客群。


123㎡3+2户型,硬刚160㎡大平层的“全能王”如果说95㎡户型带来的感受是越级体验,那么使用率高达112%的123㎡3+2户型,足以给你带来大平层的奢阔震撼!对于追求空间感和多孩改善需求家庭来都是不二选择。

★新加推2号楼户型鉴赏


海口【文新特·天玺壹号 】
💗售楼处电话:400-159-8559-5158【官方认证】💗
💗24小时热线◆温馨提示:看房需提前预约💗
💗售楼处电话☎☎:400-159-8559-5158〢【专人接听】💗
💗◆在售房源户型价格详询售楼处〢一对一服务💗
💗售楼处电话:400-159-8559-5158〢【售楼中心】💗
💗售楼处销售1v1专业讲解〢24小时热线💗
免责声明:本宣传资料所有文字、数据、图片及所标尺寸等仅为本项目建设区域设计效果的表达和示意,为要约邀请,不构成要约内容,相关内容不排除因政府相关规划、规定及其他原因而发生变化,一切有关房屋的具体信息以书面合同及政府最终审批文件为准。免责声明:本文章文字、数据和图片皆来源网络,如有侵权请告知立马删除,数据图片仅供参考,不作为邀约或承诺。