【官网】海南大华星曜售楼处电话_售楼处位置在哪-楼盘主页_在售楼层/户型面积/价格详情-营销中心24小时咨询热线!
扫描到手机,新闻随时看
扫一扫,用手机看文章
更加方便分享给朋友
💎第四代光幕奢宅 · 是作品 亦是孤品💎
【基本信息】
总占地面积:33亩
总建筑面积:7.75万㎡
容积率:2.6
机动车位:地下394
住宅户数:435户
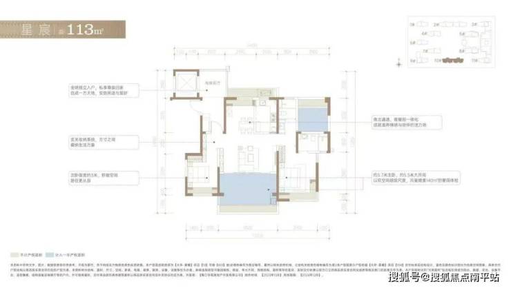
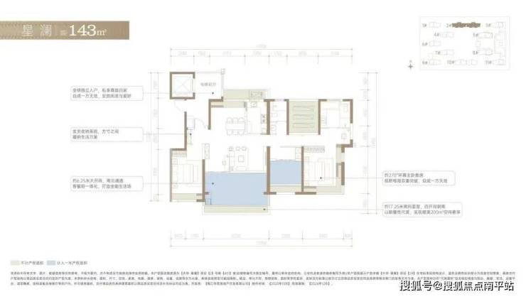
住宅户型面积:99㎡、131㎡、143㎡
交付标准:住宅精装交付
住宅产权年限:70年
在售楼栋:7、9号楼
价格:18500-21000
物业公司:大华物业
物业费:3.5元
交房时间:2027年4月
声明:本文由入驻焦点开放平台的作者撰写,除焦点官方账号外,观点仅代表作者本人,不代表焦点立场。
