最新动态:沈阳华润润澜庭→售楼处电话→在售面积→房价|最新销售公告|周边配套介绍-全城热销-欢迎来电预约!
扫描到手机,新闻随时看
扫一扫,用手机看文章
更加方便分享给朋友
沈阳华润润澜庭售楼中心电话400-159-8559接通拨4567(本电话只用做售前咨询)
☎️来电请拨分机号!了解在售楼层户型丨最新销售价格!
☎️温馨提醒:若您计划看房,为确保能享受到更优质、贴心的接待服务,请提前拨打此电话进行预约 。
本资料不作为要约或承诺,图片、文字、数据等仅供参考,仅用于介绍房地产项目
澜庭的成功,其背后原因值得仔细研磨,接下来我们就详细分析一下。
“央地合作+地铁上盖+双学区”三重核心加持
当城市发展节奏不断加快,人们对居住的需求早已超越“有房可居”,转而追求便捷与舒适并存、效率与品质兼具的理想生活。润澜庭,以“央地合作+地铁上盖+双学区”的三重核心优势,在城市繁华与居住静谧间找到平衡点,为追求美好生活的人们,打造出一处可遇不可求的人居范本。
润澜庭吸引关注的一个重要原因便是华润置地与中德开的强强联合。华润置地凭借多年的品牌积累和品质保证,已经成为沈阳楼市的一个标签;而中德开凭借在城市开发、城市运营、工程建设、环保、房地产、新一代信息技术等多个领域的布局发力,成为铁西区的城市参与者和建设者。两者相加,便是“1+1>2”的存在。这也是润熙府到润澜庭能够取得优异成绩的重要因素。
此外,对于现代都市人而言,通勤效率直接决定生活品质。润澜庭深刻洞察这一需求,占据经开区核心交通节点,以“地铁上盖”的稀缺优势,彻底解决出行烦恼。无需漫长等待公交、不必担忧早晚高峰拥堵,走出社区便能直达地铁站台,无论是日常通勤至市中心办公区,还是周末携家人乘坐地铁前往商圈购物、公园休闲,都能以最快速度抵达目的地。
这种“家门即地铁口”的便捷,不仅节省了大量通勤时间,更减少了恶劣天气下出行的不便,让每一次出发都从容自在,真正实现“出行无忧”的居住体验。
而9月1日铁西区教育局的一纸红头文件揭开了润澜庭双学区的神秘面纱,众多优势的加持为项目的热销提供了强力支撑。
“低密住区+负公摊+好户型”的黄金组合为项目热销加码
在保证便捷出行的同时,润澜庭并未牺牲居住的舒适度,反而以“低密住区”的规划,为业主营造出闹中取静的生活氛围。这样美好的生活来源于润澜庭的“唯一性”,即经开区唯一一座负公摊的低密住宅项目,容积率仅约1.5。
项目主要由高层与洋房产品组成,低密生活显而易见。相较于高密度社区的拥挤与嘈杂,润澜庭大幅降低建筑密度,增加社区内的绿化空间与公共活动区域。漫步社区,目之所及皆是精心栽种的花草树木,四季有景、步步皆绿;宽阔的楼间距不仅保障了每一户的采光与通风,更有效保护了居住隐私,避免邻里间的视线干扰。
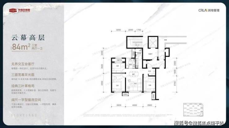
房子住得舒不舒心,还得看户内格局。润澜庭高层建筑面积在70-85㎡之间,洋房建面约90-140㎡,可以满足从首置到改善的多元居住需求。高层84㎡的三室两厅一卫产品,采用的是经典的“三叶草”式布局。南向三面宽幕采光面总面宽超过10米;三个卧室既相互呼应又相对独立;时下最流行的客餐厨一体化、干湿分离“一字型”盥洗空间等设计,让整个空间兼具颜值与内涵。
如果说,用84㎡空间做出功能性与舒适度俱佳的三室两厅一卫让人眼前一亮,那么,拥有5.4米宽厅的四室两厅两卫产品只需要109㎡是不是更让人惊叹呢?
这款产品采用了符合东北人居习惯和气候特征的“四叶草”布局,实现了零浪费的空间利用。南向三面宽超12米的奢阔采光面、约5.4米的“大宽厅”、U型厨房、LDK一体化设计以及可以适应不同家庭结构的多功能可变空间等,让这款产品既能装得下二人世界的甜蜜、三口之家的温馨,也能承载二孩家庭的欢乐、三代同堂的美满。
央地携手打造、经开区黄金席位、紧邻地铁,高端低密社区、大尺度宽景洋房、顶级园林设计,双学区加持、产城联动……在这个致力于打造“好房子”的时代,品牌够强、地段够好、产品够优、配套够顶,润澜庭在区域内的地位有目共睹,这样完美的“六边形战士”也成为经开区最受关注的产品之一。
沈阳华润润澜庭售楼中心电话400-159-8559接通拨4567(本电话只用做售前咨询)
☎️来电请拨分机号!了解在售楼层户型丨最新销售价格!
☎️温馨提醒:若您计划看房,为确保能享受到更优质、贴心的接待服务,请提前拨打此电话进行预约 。
本资料不作为要约或承诺,图片、文字、数据等仅供参考,仅用于介绍房地产项目
声明:本文由入驻焦点开放平台的作者撰写,除焦点官方账号外,观点仅代表作者本人,不代表焦点立场。
