深圳越秀星科源启(售楼处) 首页 - 越秀星科源启销售中心 - 环境 - 户型 - 价格 - 地址 - 楼盘详情 - 配套 - 电话 - 交房时间 - 配套 - 电话 - 交房时间
扫描到手机,新闻随时看
扫一扫,用手机看文章
更加方便分享给朋友
越秀星科源启售楼处电话:400-159-8559转1111
看房方式:越秀星科源启售楼处位置电话400-159-8559转1111(开发商认证)
2.预约方式:拨打越秀星科源启售楼处电话400-159-8559转1111(售楼处认证)
3.预约信息:需提供姓名、联系方式、预计到访人数及到访时间。


最新消息:光明中心区新规神盘—— 由越秀地产打造的住宅大盘「越秀・星科源启」,其前身为星汇珑府,项目已于国庆(10月1日)开放实体样板间,本次首推1栋1单元160套房源,而第二批也准备上市加推,这也是越秀在光明的首发之作。
该项目体量可观,总共分三期开发,分3期3个地块开发,共由10栋住宅组成,其中9栋是商品房,1栋是公租房,配建有1所18班制幼儿园,本次将推出 89-131㎡3-4 房新规户型。以下为上期开盘价格:
✅ 03房89㎡:折后总价296万-308万(低于片区50万稀缺南北通、还有少量)
✅ 04房89㎡:折后总价300万-319万(一期绝版三面采光、还有少量)
✅ 05房89㎡:折后总价318万-335万(安静南北通无敌视野)
✅ 01房112㎡:折后总价426万-440万(正南向楼王四房)
✅ 02房112㎡:折后总价398万-413万(可以四房何必三房、还有少量)
【光明中心区科学公园旁/全新入市】首批开盘单位剩余不足80套!
低总价、高品质、高颜值、好产品上车核心区的蕞佳时机。
对项目感兴趣可以加我们预约看房,千万别自己去看房;预约我们才有额外优惠和最底价,咨询电话:15889473566
一、项目介绍
越秀星汇珑府,位于光明区新湖街道光侨路与科学大道交汇处东南侧,地处光明中心区板块,西北侧与科学公园北翼相邻,东南侧则是充满欢乐的光明欢乐田园,北侧靠近中山大学深圳校区及其附属第七医院,南面距离光明高铁站仅4.8公里。

越秀星汇珑府分3期3个地块开发,总占地面积约3.87万㎡,总建筑面积约20.34万㎡,共由10栋住宅组成,其中9栋是商品房,1栋是公租房,配建有1所18班制幼儿园。

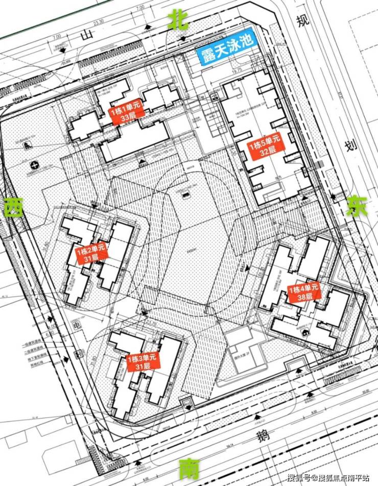
首推的是01地块,共由5栋总高31-38层的住宅组成,其中1栋1单元住宅33F,1栋2/3单元住宅31F,1栋4单元住宅38F,1栋5单元公租房32F,小区地下车库配建有公交首末站,总规划979户,其中商品房589户,公租房390户,1栋1单元2梯5户,1栋2/3单元2梯4户,1栋4单元3梯6户设计。

二、项目基础数据
【开发商】深圳晟越房地产开发有限公司
【总占地面积】总约3.87万㎡,一期1.53万㎡
【总建筑面积】总约20.3万㎡,一期8.5万㎡
【总户数】首推的01地块979户,商品房589套,公共租赁住房390户(最终以政府备案为准)
【户型面积】约89-131㎡3-4房(首推89-112㎡)
【停车位】1039个(1:1.06)
【物业及物业费】广州越秀物业,3.9元/㎡
【容积率】6.23
【绿化率】约30%
【梯户比】2梯4户/2梯5户,3梯6户
【总楼栋及楼层】10栋;31-38层
【交楼时间】预计2028年6月前,精装交付
【产权年限】70年
【项目位置】深圳光明区光明区新湖街道光侨路与科学大道交汇处东南侧
三、项目户型图
01
项目平面图
02
项目户型图
1、建面约89平方A1户型三房两厅两卫
亮点1:客厅270度采光设计,客厅更是采用了当下最流行的设计风格「无主厅化」,而且客厅的凸窗进深达到了80CM。
亮点2:入户玄关S型冰箱位,能更大释放出厨房的操作空间,阳台+三个卧室均拥有无敌开阔的视野。
亮点3:主卧270度转角无柱凸窗,根据和周边楼盘对比,只有越秀这个户型做到了无柱,这让整个主卧的采光和视野能达到豪宅级别的居住体验。
亮点4:两个卫生间没有上下水内管的设计,因为越秀为了能更大化的利用洗手间,将该户型的上下水管设计到了墙外侧,而且设计到外侧还不影响整个楼梯的外立面,果然越秀还是用了心在做设计的。
2、建面约89平方B1/B2户型三房两厅两卫
亮点1:是真正意义的南北对流,除了客厅能做到南北通透,主卧也是能做到南北通透。
亮点2:大户型才会设计的入户玄关,越秀89平方三房就做了,玄关能提供更大的收纳空间,同时隐私性还特别好,关键是玄关那里还有一个采光窗。
亮点3:客厅和相邻的卧室无承重墙,厨房和餐厅也无承重墙,实际居住中按主业需求都是可大可小的,户型百变灵活,打造全生命周期的家。该户型也是越秀光明项目实用率最高的户型,应该也是关注度最高最抢手的一个户型。
3、建面约112平方C1户型四房两厅两卫
亮点1:客厅与相邻房间之间,餐厅与厨房之间均无剪力墙,提供大方厅的可能性,主卧与相邻房间之间无剪力墙,提供房间合并的灵活性。
亮点2:把其中一个房间放到入户玄关位置,如果是作为办公室或者电竞房使用,能做到和休息区互不干扰。如果作为房间使用,可以用于父母房,能提供更好的居住隐私。
亮点3:主卧270度转角无柱凸窗,根据和周边楼盘对比,只有越秀这个户型做到了无柱,这让整个主卧的采光和视野能达到豪宅级别的居住体验。
亮点4:超大景观阳台,且是朝南看小花园林,晾衣区和阳台景观面分开,不仅不影响客厅采光,而且晾衣服私密性还好,特别是朋友来家里做客的时候。



越秀星科源启售楼处电话:400-159-8559转1111
看房方式:越秀星科源启售楼处位置电话400-159-8559转1111(开发商认证)
2.预约方式:拨打越秀星科源启售楼处电话400-159-8559转1111(售楼处认证)
3.预约信息:需提供姓名、联系方式、预计到访人数及到访时间。
声明:本文由入驻焦点开放平台的作者撰写,除焦点官方账号外,观点仅代表作者本人,不代表焦点立场。
