长沙【运达大泽湖】-(售楼部↓↓免费预约通道) ☎️☎️☎️☎️400-159-8559转接6666【营销中心-24小时热线】
🔝温馨提示:拨打400电话—听到嘀声提示后—输入6666即可通话🔝 ✨✨来电预约登记—(领取内部优惠)〢尊享售楼处销售专业讲解✨✨ ✨✨开发商 
     
 
   长沙【运达大泽湖】-(售楼部↓↓免费预约通道) 
 
 
   ☎️☎️☎️☎️400-159-8559转接6666【营销中心-24小时热线】 
 
 
   🔝温馨提示:拨打400电话—听到嘀声提示后—输入6666即可通话🔝 
 
 
   ✨✨来电预约登记—(领取内部优惠)〢尊享售楼处销售专业讲解✨✨ 
 
 
   ✨✨开发商线上网站〢仅限服务购房相关咨询及预约〢诚邀您鉴赏✨✨ 
 
  
  
 
 
 
   长沙【运达大泽湖】🌳运达低密生态花园大宅 
 
 
   🏡开启河西品质人居新篇章 
 
 
   🎉135-296㎡臻品大宅  
 
  
  
 
 
 
   【项目地址】 
 
 
   ☀中国长沙望城区金星北路与振兴路交汇处 
 
 
   【项目区位】 
 
  
  
 
 
 
   【项目概况】-具体更多优惠,拨打售楼热线:☎️☎️400-159-8559转接7788【售楼中心】 
 
 
   【在售楼栋】:小高层:1、2、13 、5、6,森林花园住宅:7、8 
 
 
   【在售面积】:小高层135-156-222m²,森林花园住宅238-296m² 
 
 
   【梯户比】:小高层2T3户(16层),森林花园住宅2T2户(16层) 
 
 
   【在售均价】:13000-15000元/m² 
 
 
   【交房时间】:2026年11月 
 
 
   【开发商】:长沙运达永通房地产开发有限公司 
 
 
   【物业公司】:湖南水清木华物业管理有限公司 
 
 
   【物业费】:3.88元/m²,前两年3.6元/m² 
 
 
   【容积率】:2.0 
 
 
   【绿化率】:50% 
 
 
   【层 高】:标准层3.25米 
 
 
   【得房率】:90-110% 
 
 
   【总栋数】:19 
 
 
   【总户数】:702 
 
 
   【停车位】:1094 
 
 
   【车位比】:1:1.5 
 
 
   【建筑面积】:19.8万㎡ 
 
  
  
 
 
  
  
 
 
 
   【运达品牌】-具体更多优惠,拨打售楼热线:☎️☎️400-159-8559转接7788【售楼中心】 
 
 
   ❤幸福美好生活的综合服务商 
 
 
   运达集团作为一家拥有房地产、酒店、贸易、工业四大核心板块和互联网O2O综合服务平台的品牌企业,30年来,创新不止,在多个领域创优争先。运达地产始终专注于开发高端产品、提供高端服务、创造高端生活,秉承“精而美”的发展理念,已为超万户高端家庭打造集吃、住、娱、购、商务办公于一体的全方位体验生活方式,是幸福美好生活的综合服务商。 
 
  
  
 
 
 
   【运达大泽湖】-具体更多优惠,拨打售楼热线:☎️☎️400-159-8559转接7788【售楼中心】 
 
 
   🌿纯居住生态低密花园大宅 
 
 
   运达大泽湖坐落于金星北路与振兴路交汇处,总建筑面积19.8万平米,容积率2.0,由9栋城市森林花园住宅、10栋阔景小高层组成。项目通过最优的业态功能分区和科学的动线规划设计,将生态大宅、精品园林、社区商业、绿带公园完美融合,为业主打造高品质、低密度、优环境的美好生活。 
 
  
  
 
 
 
   🏙“省会新地标,湘江未来城”长沙市政府重点打造的十个重大城市片区之一 
 
 
   项目所在的滨水新城大泽湖片区,是长沙一江两岸的沿江核心板块,政府重点打造的“省会新地标,湘江未来城”。依托中部首个海归小镇和全球研发中心基地的平台优势,一座集聚生态、智慧、活力、宜居的未来之城正蓄势腾飞。 
 
  
  
 
 
 
   -具体更多优惠,拨打售楼热线:☎️☎️400-159-8559转接7788【售楼中心】 
 
 
   🍀一江一岛一洲一湿地 构建低密度生态大境 
 
 
   项目坐揽“一江一岛一洲一湿地” ,包括6.8公里湘江黄金岸线、2500亩月亮岛、800亩香炉洲及3000亩大泽湖湿地公园 ,自带近80000平米美学精品园林 ,构建“推窗见绿,出门即景”的绿色生态大境。 
 
  
  
 
 
 
   🎓众多名校为邻 全龄段优质教育配套 
 
 
   项目与湖南师大附中大泽湖校区、长沙市一中大泽湖学校等众多名校为邻,自建1200平米高品质幼儿园,近享15年优质教育资源。 
 
  
  
 
 
 
   🚅近地铁物业 多维便捷交通-具体更多优惠,拨打售楼热线:☎️☎️400-159-8559转接7788【售楼中心】 
 
 
   项目紧邻地铁4号线和13号线,坐拥高铁西站、绕城高速和4条过江通道,交通便利,通达四方。地铁四号线北延线金星路东沿线站,吴家冲路站,已动工 
 
  
  
 
 
 
   🏫精品公园式商业广场 打造购物休闲乐享地 
 
 
   项目采用开放式广场布局,融合近3000平米精品商业,8000平米城市绿带公园,营造集购物休闲于一体的公园式商业广场。 
 
  
  
 
 
 
   -具体更多优惠,拨打售楼热线:☎️☎️400-159-8559转接7788【售楼中心】 
 
 
   🏤2000平米业主私享会所 尽享美好生活体验 
 
 
   满足业主五星级业主会所,涵盖恒温泳池、健身房、瑜伽室、棋牌茶室,全方位运动、休闲及商务社交需求。 
 
  
  
 
 
 
   🏠五大主题泛会所 全龄段业主各得其所 
 
 
   老年活动、儿童娱乐、休闲会客、健身运动、物业服务五大主题中心,从亲子陪伴到幸福颐养,从邻里交流到会客亲友,让业主尊享面面俱到的幸福生活。 
 
  
  
 
 
 
   🏡原创城市森林花园住宅 负公摊 大赠送 
 
 
   运达首创城市森林花园住宅,实现建筑与自然的完美融合。6.5米挑高空中庭院,通过创新设计,既具通风透光性,又保证居家私密,让居者享有大平层的景观视野与别墅花园生活的双重体验。 
 
  
  
 
 
 
   🏘阔景小高层 绿意环绕 舒享静谧宽居 
 
 
   低密度,宽楼距,户型方正,大面宽,双阳台,得房率高,3.25米奢适层高,以大尺度营造高舒适度。 
 
  
  
 
 
 
   -具体更多优惠,拨打售楼热线:☎️☎️400-159-8559转接7788【售楼中心】 
 
 
   🌠全屋高档豪装 定制奢雅享受 
 
 
   精挑细选每一种用材,精雕细琢每一道工艺,以品质瑕疵“零容忍”态度,精益求精建造至臻至美的产品。 
 
  
  
 
 
 
   📱全维度智能安保系统 
 
 
   周界防护、消防联动、数字监控、门禁控制、可视对讲、访客管理、保安巡更、烟感报警八大系统构建高枕无忧的安保体系。 
 
 
   🛍立体隔音降噪系统 
 
 
   外围8000平米城市绿带公园,构筑生态隔音屏障,全屋封窗,防尘保温、隔音降噪,让业主尊享静谧、舒心的居家生活。 
 
 
   ⛲尊贵奢华的入户体系 
 
 
   五星级小区大堂、单元首层大堂和车库大堂,三重入户,典雅华贵,地下车库车道金属吊顶、地面通体砖,出入皆享尊崇体验。 
 
 
   📺舒适节能的暖通设施 
 
 
   全屋一线品牌变频多联机,新风系统,地暖水暖系统,室内时刻空气清新,温度怡人。 
 
 
   🛋高端品牌厨卫设备 
 
 
   配备整体橱柜、品牌厨电,高端卫浴洁具,尽显国际生活品味。 
 
 
   🧱高端环保的装饰材料 
 
 
   甄选高档大板砖、酒店标准饰面,手工扪布等高端环保材料,营造典雅舒适空间。 
 
 
   【运达荣誉】-具体更多优惠,拨打售楼热线:☎️☎️400-159-8559转接7788【售楼中心】 
 
 
   🏆国家权威机构 多项专业大奖品质认证 
 
 
   2008年,运达国际广场荣膺“鲁班奖” 
 
 
   2017年,运达中央广场荣膺“鲁班奖” 
 
 
   2020年,运达中央广场荣膺“广厦奖” 
 
 
   2021年,运达公寓入选“中国10大超级豪宅” 
 
 
   2022年,运达中央广场入选“亚洲10大超级豪宅” 
 
 
   2023年,长沙运达W酒店荣膺“鲁班奖” 
 
 
   2024年,运达地产原创城市森林花园建筑荣获国家实用新型专利 
 
  
  
 
 
 
   【管家服务】 
 
 
   👩运达有温度的美好服务 超乎预期的完美体验 
 
 
   “售卖一次,服务一生”的管家理念,30年高端人居的管理经验,让生活更美好。朝送暮迎、零打扰作业、每日精心维护、24小时尽心值守、亲如家人的贴心呵护,平凡小事尽善尽美,用心守护始终如一。 
 
  
  
 
 
 
   【置业价值】-具体更多优惠,拨打售楼热线:☎️☎️400-159-8559转接7788【售楼中心】 
 
 
   🏤品质标杆资产 置业前景美好 
 
 
   运达的创新基因、匠心作品、精心服务、精细管理,让每一处运达物业日久弥新,熠熠生辉,物业价值持续领先。 
 
  
  
 
 
 
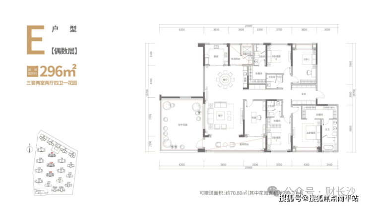
   【户型平面图】 
 
  
  
 
 
  
  
 
 
  
  
 
 
  
  
 
 
  
  
 
 
  
  
 
 
  
  
 
 
 
   长沙【运达大泽湖】-(售楼部↓↓免费预约通道) 
 
 
   ☎️☎️☎️☎️400-159-8559转接6666【营销中心-24小时热线】 
 
 
   🔝温馨提示:拨打400电话—听到嘀声提示后—输入6666即可通话🔝 
 
 
   ✨✨来电预约登记—(领取内部优惠)〢尊享售楼处销售专业讲解✨✨ 
 
 
   ✨✨开发商线上网站〢仅限服务购房相关咨询及预约〢诚邀您鉴赏✨✨ 
 
免责声明:本宣传资料所有文字、数据、图片及所标尺寸等仅为本项目建设区域设计效果的表达和示意,为要约邀请,不构成要约内容,相关内容不排除因政府相关规划、规定及其他原因而发生变化,一切有关房屋的具体信息以书面合同及政府最终审批文件为准。
免责声明:本文章文字、数据和图片皆来源网络,如有侵权请告知立马删除,数据图片仅供参考,不作为邀约或承诺。