厦门保利安控御宸天悦(售楼处) 官网预约电话- 销售中心-小区环境-户型-价格-楼盘位置 -配套-销售热线-交房时间-配套
扫描到手机,新闻随时看
扫一扫,用手机看文章
更加方便分享给朋友
4001598559,4567
项目用地为湖里五缘湾片区2025P09地块,起拍楼面价4.5万元/㎡,容积率2.56,计容建面6.89万㎡。
原计划兜底方为轨道集团,最后经过75轮竞价,由保利安控联合体拿下,而第三批次轨道底价摘得的2025P11地块,起拍楼面价是4.6万元/㎡,这么来看也不算是当家的“背刺”欺负“外来户”,而是属于市场行为,这里投资部门建议自罚三杯了。
探长始终认为:真正不可复制的配套,就是对稀缺自然资源的占有!
而保利安控御宸天悦项目就非常符合这一价值要素。项目一线面海,下楼就是五缘湾沙滩,和轨道地块一起,填补了五缘湾板块最后的空白。
五缘湾经过多年的开发,已经成为厦门市场豪宅的代名词,五缘湾+海景就是项目最大的价值背书,其他什么都不用说。
所以项目的价值优点就非常突出了:海景、海景,还是海景,一线临海临湾的稀缺自然资源!
这是目前在售竞品项目都没有的优势,除了股东Daddy的水晶海岸壹号(不过那里除了海景也没别的太大的优点了),建议可以沟通一下股东Daddy对一线海景房源提价或者暂时性的封盘。
而项目的缺点,探长放在文章的最后再说。
项目规划7栋高层,面积从191-436㎡不等,沿着海岸线排布,确保每栋楼都能一线面海,实现海景资源的最大化,紧紧抓准了项目的“海景”优势卖点。
项目总计274套房源,其中191-237㎡的户型168套,占比61.31%,300㎡以上的大户型106套,占比38.69%。
从项目资源分布来看:
最优的1、9号楼栋(一线临海)都为346-436㎡的大户型,共计64套
其次是5号楼东户型和6号楼的西户型42套,户型都是300㎡
这样的产品逻辑是非常清晰的,未来通过定价差异,将实现项目的货值最大化。简单来说,就是项目把最优的资源都给最优承价能力的产品。

剩下的资源排序,探长个人认为是5、6号楼的剩余户型>8号楼>3号楼>7号楼。接下来看下每个户型的解析(红字优势、蓝字劣势):

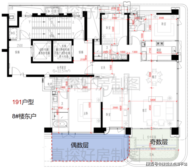
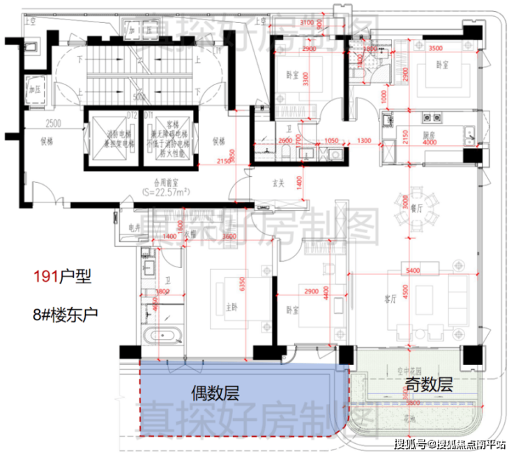
首先看8#楼东户的191户型,191户型做到了四房,优点很突出,就是把客厅放在东南角,放大景观资源优势,但相对应牺牲了卧室的私密性和尺度,3个次卧的尺度都是2.9m,偏刚需户型的尺度,也是比较意外的。
比较大的槽点就是卫生间居中,以及东北角的卧室和厨房相连,这些都是比较罕见的设计,不过也就21套,倒不是很担心。
槽点共通的情况下,只能从放大优势角度来考虑,建议选购奇数层。
194-201㎡户型是项目的主力户型,差不多占到了三分之一,应该可以作为标准户型,户型做的就挺不错的,进门独立玄关+衣帽间,仪式感拉满!四房三卫,双主卧套间,满足两代人的居住需求,整体户型格局来看,几乎没怎么浪费面积。
户型没有太大的槽点,毕竟是主力户型,有点小遗憾就是厨房的尺度和2间次卧尺度略小。
奇偶层的差异也是在露台位置,奇数层在南向的主次卧+北向露台,偶数层的露台在客厅+次卧套间,这俩者探长认为各有优势,偶数层的露台更强调社交属性,奇数层的露台更偏生活情趣,建议就是E人选偶数层,I人选奇数层。

232-237户型也是项目的次主力户型,占比23%,基本上户型格局和194-201㎡户型一致,在此基础上做大了尺度和舒适性,主要表现在以下3点尺度的提升:
客厅的尺度由5.4m提升至6m
南向的所有卧室进深都加大,主卧由5.3m提升至6.4m,次卧套间进深由4.6m提升至4.95m,南向次卧由3.5提升至5m;
厨房由原来的长进深短面宽的Ⅱ型厨房提升为长面宽短进深U型厨房;
这些尺度的提升对于居住体验的提升有着质的飞跃,基本上弥补了194-201户型的所有缺点,可以称得上是项目的Pro户型了。
当然有得必有失,餐厅的尺度相较194-201户型比略小,但使用起来舒适性尚可,算不上缺点。最大的槽点是奇数层的北向露台,原来可以从餐厅进入,现在就只能穿过厨房家政间或者从北向次卧进入,实用性大打折扣,建议选购偶数层。
据悉,本案奇偶数层定价价差大概会在8000-12000元/㎡,折中按10000元/㎡来计算,232㎡大概就是232万的价差,但这个对壕们来说可能也不是什么问题,千金难买你快乐嘛。
300户型一眼看过去,就是项目的Plus户型了,和前面的两户型很明显是一个妈生的。相对于232-237户型又了哪些升级呢?
最直观的就是排面一流!南向的次卧改到北面,将南向客厅尺度直接拉满,达到了惊人的8.9米,这几乎就是一俩中巴的长度,这排面放眼整个项目都无出其右,连后面的346-355㎡和436㎡俩户型都远不及此。
其次就是功能性的提升,餐厨增加了西厨岛台的设计,家政间尺度增加,同时北面增设了保姆间,甚至配上了独立的卫生间和独立出入口!在奇数层上,保留了餐厅通向露台的入口,北向露台的实用性得以提升;
最后的亮点就是私密性的考量 ,所有的卧室都设计为的套间,都配有独立的洗手间(包括保姆间),主卧更是升级了独立的衣帽间。
这个户型探长认为没啥缺点,一定要说的话,就是景观资源不如1、9#楼,但这多少有点抬杠的意味了。

346-355㎡的户型是兼具了景观和居住舒适性考虑的,做到了6房的设计,甚至通过局部改造可以实现6个房间都带洗手间的效果,可以说是非常的惊人。从这个设计上,探长感觉和国贸天樾云颂2期有点相似。
奇偶层的露台分布于南面和山墙面,这样极大了解决了其他户型中存在的奇偶层之间的露台私密性问题,有条件的情况下,建议选偶数层。
探长个人认为这样的产品应该不愁卖,能做的都做了,尺度、舒适性、私密性都做了相对不错的考量。能吐槽的点不多,顶多就是入门玄关和南向走廊位置有些浪费,但如果不浪费怎么体现出“豪宅”的气质呢?

436㎡的户型格局和345-355㎡户型类似,优点很多就不再赘述了。
在其基础上,做大了各房间的尺度,尤其是除了保姆间以外,还单独配备了保姆电梯,这算是一个特色。
缺点也类似,就是南向次卧带了个暗卫,这只能说是一个小小的遗憾。
这户型是项目里最稀缺的户型,没有之一,有且仅有16套,应该也会是这次价格最高的户型。
不过价格多少不重要,能不能买到才重要,这就是比拼背景和资源的时候了。
总体来看,项目就是在2个标准户型做的加法,在更优质的朝向上配置更好的产品,满足了更有出价能力客户的心理优势,但对于其他客户来说,多多少少都有点“遗憾”。
另外就是几乎所有四代宅都存在的普遍性问题,奇偶层露台,导致的进深过大,引发的采光问题,但在无敌的海景面前,可能这都不算是事!
但就像硬币的两面性一样,一线临海的景观优势,叠加四代宅的产品,可能会带来露台维护的“隐忧”,毕竟隔壁宝墅湾的玻璃还“珠玉在前”,但一辈子能遇到几次“莫兰蒂”呢?

声明:本文由入驻焦点开放平台的作者撰写,除焦点官方账号外,观点仅代表作者本人,不代表焦点立场。
