三亚公园88号开发商首页@官方售楼处电话—2026最新房价优惠—售楼处发布 首页网站公园88号·墅营销中心欢迎您-官方认证-最新价格-户型图-容积率-楼盘详情
扫描到手机,新闻随时看
扫一扫,用手机看文章
更加方便分享给朋友
三亚公园88号售楼处电话☎️400-159-8559转接8888(专人接听)
🌈三亚公园88号营销中心电话:☎️400-159-8559转接8888【营销中心】
🌈温馨提示:拨打400电话,听到嘀声后,输入分机号8888即可!
➤➤➤➤VIP贵宾置业〢欢迎来电咨询
免责声明:(本文章所用图片来源于网络,如有侵权请联系本网站删除!)恭迎品鉴◆◆
4001598559,8888
公交路线: 公交路线:10路、36路、50路海韵假日站,东岸湿地公园旁路口内进
交通方式: 从火车站进入育秀路,行驶800米;进入海润路,行驶670米;左转,进入凤凰路海韵假日对面内进400米
〖政策性区位〗
学校:三亚市第一中学、华侨中学、三亚八小等25所学校 。
医院:农垦医院(三甲)、三亚中医院(三甲)、三亚妇幼保健院、301医院、三亚人民医院、解放军425医院、农垦南新医院、三亚榆和医院 。
公园:临春岭公园、白鹭公园、红树林生态公园
景观:丹州湿地公园、金鸡岭山地公园 。
银行:建设银行、光大银行、工商银行、中信银行、民生银行、邮政储蓄银行、海南农信社 。
周边旅游资源:东岸湿地公园、金鸡岭公园、月川生态绿色通道、市民百果园、临春岭森林公园、白鹭公园、奇幻艺术馆、宋城千古情、槟郎谷景区等。
内部配套:6000平米商业街、高端幼儿园、泛会所、儿童游乐设施、泳池等。
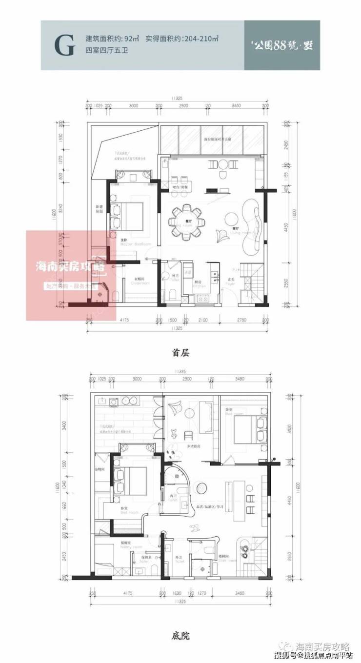
户型图鉴
〖墅级产品解析〗
户型解析:空间尺寸宽裕,格局灵动多变,可根据需求进行个性化装修,四房设计满足主人对居住体验的极致追求,通过改造房间数可增加至六房。
户型解析:户型方正,得房率高,支持个性化装修,客厅餐厅一体化设计,增加居住的舒适度,负一层保姆间及多功能厅设置适合家庭照顾儿童的空间需求。↓
户型解析:一层居住空间带院子,紧凑户型基本满足居住需求,负一层牺牲房间数,增加娱乐休闲空间,本层相对独立,预留采光和通风区域,亦能避免了外围噪音的影响,也适合居家办公的需求。↓
户型解析:一层9.7米面宽庭院,独门独院,负一层打造多功能居住空间,本户型动静分离,活动空间得到进一步提升,从面积段来看性价比较高,主人可根据需要进行个性化改造。↓
户型解析:主人对居住空间及品质有一定要求,独立餐厅设计,客厅及活动空间功能设置一应俱全,负一层为独立起居空间,双庭院设计功能上更完善。↓
户型点评:本户型空间设计偏向于居住,一层老人套房方便起居,负一层房间设于两侧,采光充足,并保证每户的私密性,9.2米面宽底院弥补了活动空间的不足。↓
户型点评:得房率超过200%,在空间布局上更游刃有余,在此基础上增加了功能空间,并设置独立餐厅,负一层双庭院设计,在保障隐私前提下增加了活动空间,足以应付家庭聚餐或友聚的需求。↓
户型点评:舒适户型,功能空间完善,底院活动空间充足。↓
户型点评:不可多得的底院优质户型,功能空间完备,首层入户亦有景观,双庭院设计,庭院面积较大,多房多厅设置,根据需要可增加至七房。↓
户型点评:多套房多厅设计,兼顾居住和居家办公。↓
户型点评:多套房多厅设计,兼顾居住和居家办公。↓
户型点评:景观优势凸显,景观空中别墅,三层空间设定不同,双首层入户,相对独立互不干扰。↓
户型点评:景观楼王户型,居住空间富余,功能房一应俱全,首层极致五房设置,二层为城市会客厅,720°超视角城央CBD视野,三层尊贵主人套房享有全程城最具价值视野。↓
三亚公园88号售楼处电话☎️400-159-8559转接8888(专人接听)
🌈三亚公园88号营销中心电话:☎️400-159-8559转接8888【营销中心】
🌈温馨提示:拨打400电话,听到嘀声后,输入分机号8888即可!
特别说明:
1.本文为要约邀请,不作为要约或承诺;相关宣传内容不排除因政府相关规划、规定及出卖人分期规划、未能控制等原因而发生变化;
2.本文部分图片来自于网络,如涉及版权使用,请联系删除;文本部分图片仅作为推广示意使用,非交付标准,最终以实际交付现状为准;
3.本宣传资料对项目周边学校等教育资源的介绍旨在提供相关信息,并不意味着本公司对就学安排作出承诺。教育资源的名称、办学性质、办学规模、学位设置、开学(班)时间、招生条件、收费标准及招生区域存在调整的可能,应以政府教育主管部门及办学方颁布的政策规定为准;
4.本资料对项目或产品的介绍,旨在提供相关信息,不意味着本公司对此作出了承诺,买卖双方的权利义务以《商品房买卖合同》及附件等协议为准;
5.宣传方保留对宣传资料修改和解释的权利;
声明:本文由入驻焦点开放平台的作者撰写,除焦点官方账号外,观点仅代表作者本人,不代表焦点立场。
