深圳后海招商玺 (售楼处) 官网 -深圳后海招商玺销售中心 - 后海招商玺价格 - 地址 - 楼盘详情 - 配套 - 电话 - 交房时间 - 配套 - 电话 - 交房时间
扫描到手机,新闻随时看
扫一扫,用手机看文章
更加方便分享给朋友

项目占地约1.5万㎡,总建面约15万㎡,由4栋住宅及1所幼儿园组成。商品房总计仅261户,户均面积约218㎡,主打约188-247㎡纯粹大平层社区。
计容建面98754㎡ ,其中:住宅88449㎡,商业、办公及旅馆业建筑2100㎡,公共配套面积8205㎡。

地段:后海 × 蛇口双核心,绝版不可再生
后海招商玺的底色,是深圳湾最后一批可售核心宅地。
在深圳湾宅地断供、旧改稀缺的当下,这种成熟配套 + 产业红利 + 景观资源三重叠加的地段,卖一套少一套。
产品:玺系 3.0 硬核升级,把 “实用顶豪” 做到极致
招商玺没有堆砌浮夸概念,而是用高使用率、纯板楼、专梯入户,戳中顶豪家庭最真实的居住痛点。
1. 纯大平层社区,圈层极度纯粹
2. 户型王炸:使用率≈95%,碾压同级豪宅
主力户型:188/197/237/246㎡四房三卫
3. 公区与精装:顶豪标准不打折
配套:育才顶级学区 + 全维生活,自住无短板
顶豪最终拼的是长期自住舒适度,招商玺在配套上几乎没有短板。
户型设计
项目以2梯2户专梯入户的纯板楼,打造楼高仅90m的21层稀缺小高层,叠加尊贵私密的私享电梯厅优势,项目户型高拓使用率高达93-95%,在拔高空间尺度的同时,更注重居住体验感和实用性。
项目还采用框架结构设计,重构承重关系,不仅带来“全景舱”无界景观视野,让空间也更灵活多变,全屋更少承重墙,满足全生命周期的使用需求,打造一步到位的“第一居所”。
建面约197㎡户型
4房2厅3卫的正四房设计,全屋通透明厨明卫,豪气阔绰的客餐厅超大通厅,带来云端墅居的空间感。
该户型还高配约8m长的极目宽景阳台,空间面积达到约22㎡,相同面积下比其它几大顶豪的阳台尺度还要奢阔,将无界瑰丽景观定格为家的唯美色彩。
全屋卧室配备新规800mm宽尺飘窗,次卧套打造3.2mx4.5m的22㎡奢阔空间,为每一个家庭成员带来专属的尊贵生活尺度。
主卧套房采用豪华套房+步入式衣帽间的设计,开间约4.6m,进深达4.5m,搭配270°环幕飘窗,带来面积达38㎡的星级奢华空间。
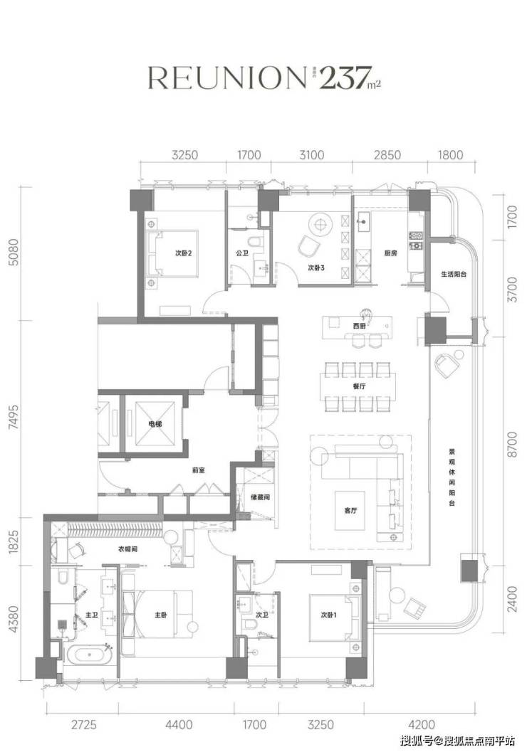
建面约237m²户型
最大的亮点是其面积高达60m²、接近标准羽毛球场大小的LDKB全景家庭厅,以及一个长约18.9米、面积约31m²的L型270°拐角瞰景阳台。

免责声明:本宣传资料所有文字、数据、图片及所标尺寸等仅为本项目建设区域设计效果的表达和示意,为要约邀请,不构成要约内容,相关内容不排除因政府相关规划、规定及其他原因而发生变化,一切有关房屋的具体信息以书面合同及政府最终审批文件为准。免责声明:本文章文字、数据和图片皆来源网络,如有侵权请告知立马删除,数据图片仅供参考,不作为邀约或承诺。
声明:本文由入驻焦点开放平台的作者撰写,除焦点官方账号外,观点仅代表作者本人,不代表焦点立场。
