长沙中建翡翠天序二期项目批前公示,楼面价约4590元/㎡,定位刚需,户型150-200㎡为主,距砂子塘天华小学近,配套完善。💗鉴赏热线✆✆400-159-8559转3333(官网认证)💗
🔥🔥长沙【 中建翡翠天序二期 】🔥🔥
💗鉴赏热线✆✆400-159-8559转3333(官网认证)💗
💗营销中心电话:☎☎400-159-8559转3333【专人接听】💗
💗【售楼中心】网上售楼中心〢欢迎来电咨询💗
💗〢专业一对一热情服务给您专业的置业方案💗
💗〢期待您成为我们的尊贵的业主💗
中建翡翠天序二期要来了。
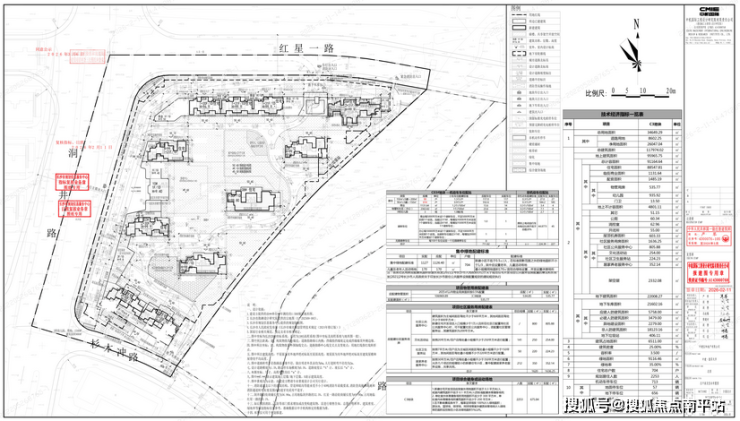
近日,长沙市自然资源和规划局发布“中建·翡翠天序总图项目”批前公示。

该项目即去年12月30日,中建信和摘得的红星片区C3地块,楼面价约4590元/㎡。
项目出门不远就是圭塘河风光带,直线距离省植物园西门(700m)也很近,读的学校应该和一期是一样的—— 砂子塘天华小学+麓山天华实验中学。

砂子塘天华小学创建于2001年。彼时,TA叫“砂子塘天华寄宿制学校”,是 由砂子塘小学寄宿部发展而来 。
砂子塘小学,师资强、成绩好。在坊间,大家奉其为“四大名小”之一。其创办于1963年,是长沙小学里的老牌劲旅。
长沙数百所小学中,也仅有包括砂子塘小学在内的三所小学,能在 不依赖初中派位/配套入学的情况下实现高溢价 (另外两所是枫树山小学、麓山国际小学) 。

砂子塘小学实拍图
根据公示,中建翡翠天序二期总建面约11.8万㎡,其中住宅面积约8.85万㎡,容积率约3.5,绿地率35%。
共规划8栋31-33层的高层住宅,共704户,机动车停车位713个。户型方面,建面约150-200㎡的有90套,占比约13%,建面约 90-150㎡的有614套,占比约87%。

中建翡翠天序一期分东西地块,东地块精装建面约110-143㎡,均价约1.5万/㎡,西地块建面约185-230㎡毛坯大平层,均价约1.7万/㎡。
产品上, 二期容积率约3.5,比一期约3.32略高,预计主推建面约110-143㎡户型,定位偏刚需/刚改。
价格上,二期楼面价约4590元/㎡, 比一期的约6901元/㎡便宜了约2311元/㎡,预计售价会比较友好。
位置上,二期直线 距离地铁7号线红星大市场站约500米,比一期更近,但学校距离比一期更远。


项目效果图,仅供参考
中建翡翠天序,是中建信和做的比较用心的一个项目,产品力还可以,
项目打造了 地上地下双入户大堂,以“酒店式奢享”进行设计呈现,归家仪式感十足。
另外,项目还大手笔打造了 景观艺术车库!这是中建信和在长沙开发项目的高配车库。
车库以星空顶为视觉核芯,车道入口两侧箭头导视灯,配置智能感应系统,光随车亮。车库入口设置大型中央景观,引入绿植端景,简直把归家的仪式感拉满了。


中建翡翠天序实景图
🔥🔥长沙【 中建翡翠天序二期 】🔥🔥
💗鉴赏热线✆✆400-159-8559转3333(官网认证)💗
💗营销中心电话:☎☎400-159-8559转3333【专人接听】💗
💗【售楼中心】网上售楼中心〢欢迎来电咨询💗
💗〢专业一对一热情服务给您专业的置业方案💗
💗〢期待您成为我们的尊贵的业主💗
免责声明:本宣传资料所有文字、数据、图片及所标尺寸等仅为本项目建设区域设计效果的表达和示意,为要约邀请,不构成要约内容,相关内容不排除因政府相关规划、规定及其他原因而发生变化,一切有关房屋的具体信息以书面合同及政府最终审批文件为准。免责声明:本文章文字、数据和图片皆来源网络,如有侵权请告知立马删除,数据图片仅供参考,不作为邀约或承诺。