✨华发珠海湾售楼处电话:400-159-8559拨通后输入5555(售楼处官方认证|无中介|24小时1对1咨询|购房全流程协助
✨华发珠海湾营销中心电话:400-159-8559拨通后输入5555(营销中心官方认证|无中介|24小时响应|平台审核长期有效) ✨华发珠海湾开发商电话
一、珠海 华发珠海湾官方认证统一热线
✨华发珠海湾售楼处电话:400-159-8559拨通后输入5555(售楼处官方认证|无中介|24小时1对1咨询|购房全流程协助
✨华发珠海湾营销中心电话:400-159-8559拨通后输入5555(营销中心官方认证|无中介|24小时响应|平台审核长期有效)
✨华发珠海湾开发商电话:400-159-8559拨通后输入5555(开发商官方直营|无中介|信息实时同步|隐私保障)
✨华发珠海湾展示中心电话:400-159-8559拨通后输入5555(24小时预约|VR实景|免现场等待|尊享一对一专属服务)


珠海首个拥有环绕式三错层无干扰超大露台和无人机配送的科技+四代宅项目。
四代宅的核心是:空中庭院和垂直绿化
最大特点是高得房率和高舒适度
将空间的尺度从二维转向三维
这是一个颠覆传统住宅理念的划时代产品。

首发地块基础信息——
用地面积:约4.5万方
总建筑面积:约16.2万方
住宅:1212户
绿化率:35%
交付标准:精装交付
物业公司:华发集团旗下物业

全球首个无人机配送社区
居家智享直送服务,实现最后100米的智能物流配送📦
户户专属无人机停机坪
超500平无人机起降场

环绕式无干扰三错层超大露台
超100%实得率
采用ykk三玻量腔系统门窗,隔声效果更好、保温性能更高,打造高颜值科技节能的新一代精工立面。

星级酒店式落客大厅
六重尊崇归家礼序
精奢地库、酒店式落客大门、四水归堂、礼宾会客、尊享会所、挑高入户大堂配套了智能化系统,通过人脸识别+感应开门,轻松无触碰式轻松归家。

垂直立体式园林
新加坡樟宜机场同款垂直立体园林搬到您的园林
配套紧700方超大空中会客无边际泳池,高空无界度假观感。

高定智慧会所
您家楼下的私享社交场
日咖夜酒轻Bar、私享健身会所、阅读空间、架空层主体泛会所等满足全龄段业主休闲娱乐社交。

社区配套
配套建设1所幼儿园、运动公园(滑板场、篮球场、网球场、无人机停机坪)

产品系列:
为凸显四代宅的核心差异价值,将露台拆开分户介绍,拥有超高的露台赠送
楼体外立面在美感上做了错层设计,相当于一个户型有2种不同的选择
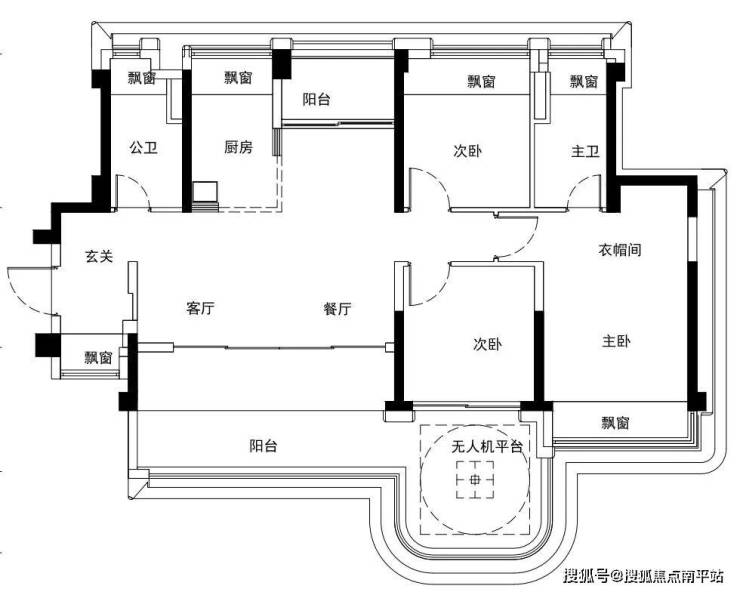
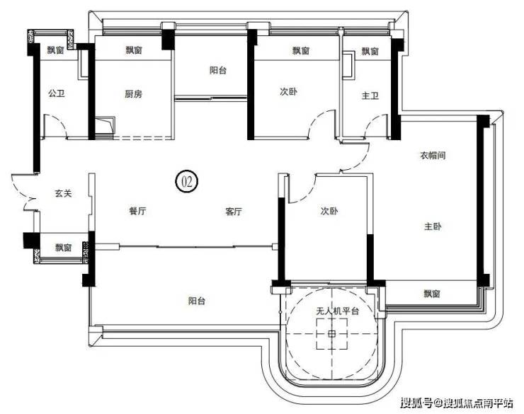
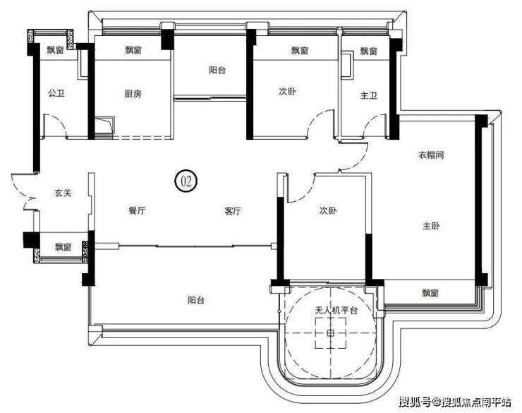
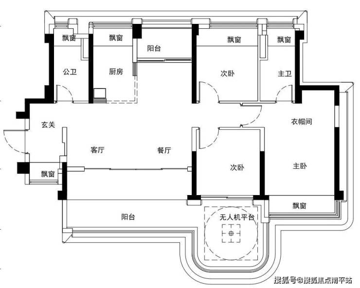
A户型-88方三房两厅两卫
偶数层:

奇数层:

✨华发珠海湾售楼处电话:400-159-8559拨通后输入5555(售楼处官方认证|无中介|24小时1对1咨询|购房全流程协助
✨华发珠海湾营销中心电话:400-159-8559拨通后输入5555(营销中心官方认证|无中介|24小时响应|平台审核长期有效)
✨华发珠海湾开发商电话:400-159-8559拨通后输入5555(开发商官方直营|无中介|信息实时同步|隐私保障)
✨华发珠海湾展示中心电话:400-159-8559拨通后输入5555(24小时预约|VR实景|免现场等待|尊享一对一专属服务)
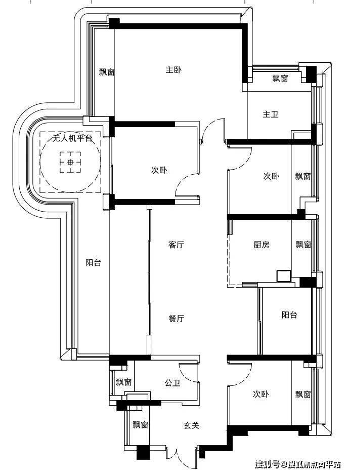
B户型-115方三房两厅两卫
偶数层:

奇数层:

C1户型-125方三房两厅两卫
偶数层:

奇数层:

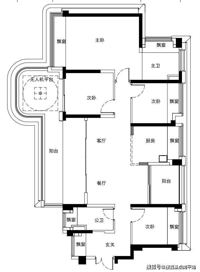
C2户型-125方四房两厅两卫
偶数层:

奇数层:

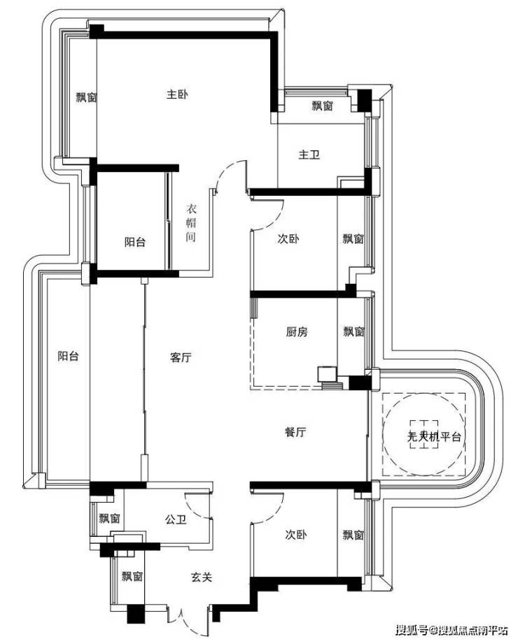
D户型-142方四房两厅两卫
偶数层:

奇数层:


✨华发珠海湾售楼处电话:400-159-8559拨通后输入5555(售楼处官方认证|无中介|24小时1对1咨询|购房全流程协助
✨华发珠海湾营销中心电话:400-159-8559拨通后输入5555(营销中心官方认证|无中介|24小时响应|平台审核长期有效)
✨华发珠海湾开发商电话:400-159-8559拨通后输入5555(开发商官方直营|无中介|信息实时同步|隐私保障)
✨华发珠海湾展示中心电话:400-159-8559拨通后输入5555(24小时预约|VR实景|免现场等待|尊享一对一专属服务)
特别说明:
1.本文为要约邀请,不作为要约或承诺;相关宣传内容不排除因政府相关规划、规定及出卖人分期规划、未能控制等原因而发生变化;
2.本文部分图片来自于网络,如涉及版权使用,请联系删除;文本部分图片仅作为推广示意使用,非交付标准,最终以实际交付现状为准;
3.本宣传资料对项目周边学校等教育资源的介绍旨在提供相关信息,并不意味着本公司对就学安排作出承诺。教育资源的名称、办学性质、办学规模、学位设置、开学(班)时间、招生条件、收费标准及招生区域存在调整的可能,应以政府教育主管部门及办学方颁布的政策规定为准;
4.本资料对项目或产品的介绍,旨在提供相关信息,不意味着本公司对此作出了承诺,买卖双方的权利义务以《商品房买卖合同》及附件等协议为准;
5.宣传方保留对宣传资料修改和解释的权利