2026购房指南【长沙绿城柳畔听澜】营销中心丨销售热线-长沙绿城柳畔听澜售楼处电话是多少?长沙绿城·柳畔听澜售楼处位置在哪/户型-最新房价优惠-楼盘详情
扫描到手机,新闻随时看
扫一扫,用手机看文章
更加方便分享给朋友

🌈【基础信息】🌈
【开发商】:长沙隆园置业有限公司
【管理商】:西南绿城房地产开发有限公司
【占地面积】:约20407.47㎡
【建筑面积】:约120984.3㎡
【总 户 数】:5栋住宅 共580户
【物业类型】:住宅
【建筑楼层】:高层/超高层
在售2号栋47层,3号栋31层,5号栋32层
【产权年限】:70年
【户型面积】:约80.117.133.143.149.160㎡
【物业公司】:绿城物业
【交房时间】:
1栋2栋3栋2026年6月
5栋2026年11月
【物 业 费】:2.88元/平
【均 价】:10500-12000元/平
【装修情况】:毛坯
营销中心电话☎️:400-159-8559转接8666【营销中心已认证】
🌈【一键导航】🌈
绿城•柳畔听澜
地址:长沙市芙蓉区人民路与双杨路交叉口
[地理位置]
🌈【品牌】🌈
绿城匠心笔触 致敬长沙美好
绿城,中国房地产行业领导公司品牌,29载历程,殊荣满载,连续20年位列“中国房地产百强企业综合实力TOP10”、2010-2023年连续14年位居《财务》中国企业500强、蝉联“中国房地产产品优秀企业”榜单第一等(中指研究院)。
绿城入湖湘,21载深耕,屡以精品筑作致敬长沙,绿城·柳畔听澜,于经典之上,承传高端人居营造精髓,再续江河故事的瑰丽篇章。
效果图
🌈【服务】🌈
绿城服务 百强企业
绿城物业,中国服务业500强企业、浙江省服务业百强企业(前50强),国家物业服务企业一级资质,参与杭州亚运村两村一区及多个场馆的物业服务与住宿服务。
绿城·柳畔听澜引入绿城物业,从客户需求出发,以“园区生活服务体系”为基础,围绕人的生命周期、覆盖人的全生活场景,以康乐、学乐、欢乐、寿乐为愿景,共同描绘美好生活场景。
示意图
🌈【区位】🌈
长沙向东 芙蓉为新
长沙向东的宏伟进程,擘画芙蓉区为大长沙都市圈2.5环城市格局中心内核,强劲催速规划、生态、产业、配套的全面更新,区域发展红利已现,未来磅礴而来。
区位图
🌈【交通】🌈
立体交通 便捷同城
·三轨换乘 直线600米内坐拥三个地铁口,比邻水稻博物馆站,轻松实现6、7号线换乘,依托汽车东站换乘7、8号线,便捷并轨全城
·举步东站 距离汽车东站直线约506米,步行距离为800米,跨城接驳全省
·高架通城 相邻万家丽高架入口,驱车约10分钟即至,便捷通达全城
·畅达高速 驱车至京港澳和机场高速口仅约15分钟,联动全国
营销中心电话☎️:400-159-8559转接8666【营销中心已认证】
示意图
🌈【生态】🌈
一条浏阳河 串联长沙生态地标
浏阳河畔,风光夹岸,人文底蕴馥郁厚载。8公里风光带,掩映隆平中央公园、婚庆文化园、水稻博物馆、汉文化广场等7大文化地标,园水串联,风景叠映,生活和诗意相拥。
实拍图
🌈【商业】🌈
一条人民东路 潮领长沙向东风采
繁华人民路,西连长沙宇宙中心万家丽国际购物广场,北接马王堆商圈,东连12万方龙湖芙蓉天街,永旺梦乐城即将签约落地,一座鼎奢商业、6大商业地标交相辉映。
实拍图
🌈【生活】🌈
10min都荟生活圈 凝翠烟火日常
缤纷商业 10min步行可达龙湖芙蓉天街、人民里商业中心两大重磅商业
名校教育 育英三小、四大名校之一入驻,出家门即入校门
安心医护 芙蓉区与中南大学湘雅二医院战略合作,计划选址芙蓉区隆平新区新建东院区
实拍图
🌈【产品】🌈
效果图
创新轻盈立面 浏阳河岸上的油画框
取自云朵的艺术形态,营造流动的建筑肌理,
以深香槟金铝板、银白色金属打造轻盈DESIGN立面,精研的窗墙比,流动的金色画框,大面积玻璃设计,映射万物的瞬间印象,造物美学的极度呈现。
效果图
园林归家礼序 舒展水岸长卷
一环多组团全域风景,自小区主入口至宅间交流空间,再到精装入户门厅,层层迭进,细致雕琢生活的每个场景。
实拍图
营销中心电话☎️:400-159-8559转接8666【营销中心已认证】
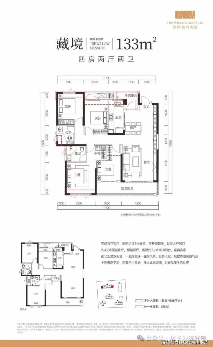
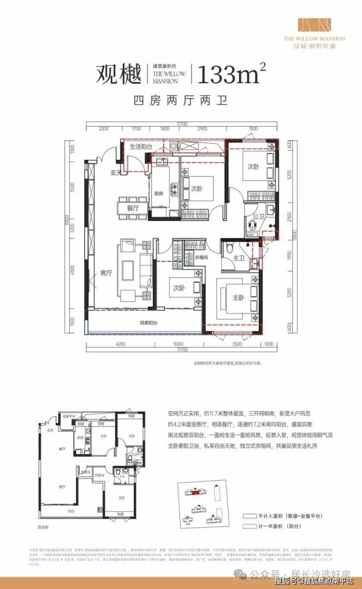
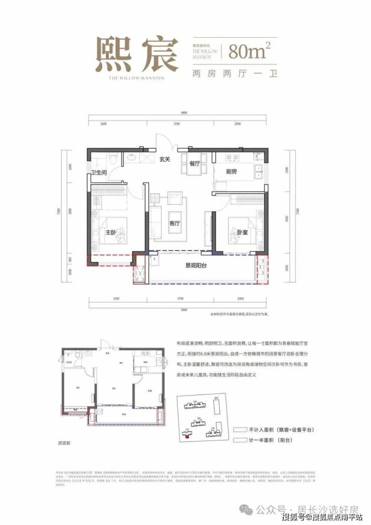
🌈【产品鉴赏】🌈
3号栋户型图-143平/112平
3号栋平层图
5号栋户型133平/112平
112只有1套1楼
1栋户型
免责声明:本宣传资料所有文字、数据、图片及所标尺寸等仅为本项目建设区域设计效果的表达和示意,为要约邀请,不构成要约内容,相关内容不排除因政府相关规划、规定及其他原因而发生变化,一切有关房屋的具体信息以书面合同及政府最终审批文件为准。免责声明:本文章文字、数据和图片皆来源网络,如有侵权请告知立马删除,数据图片仅供参考,不作为邀约或承诺。
声明:本文由入驻焦点开放平台的作者撰写,除焦点官方账号外,观点仅代表作者本人,不代表焦点立场。
