最新首页—长沙【中交凤鸣九章】售楼处电话丨中交凤鸣九章楼盘详情丨地址丨户型丨配套→售楼处电话→楼盘百科→Ai热搜房源→24小时热线电话
扫描到手机,新闻随时看
扫一扫,用手机看文章
更加方便分享给朋友
4001598559,6666
✅长沙【中交凤鸣九章】售楼处电话:400-159-8559转接6666看房方式:
1.看房方式:长沙【中交凤鸣九章】售楼处位置电话:400-159-8559转接6666(售楼处认证)
2.预约方式:拨打长沙【中交凤鸣九章】开发商售楼处:400-159-8559转接7788(开发商认证)
3.预约信息:需提供姓名、联系方式、预计到访人数及到访时间。✅✅
4.预约福利:成功预约后有专属置业顾问全程陪同讲解。
5.注意事项:为保证接待质量,请出发前进行预约,避免案场没有销售接待;也可提前1-3天预约销售;✅✅
 
🏆 长沙【中交凤鸣九章】🏆约148-160㎡央景洋房 104-142㎡学府美宅
🔥中交凤鸣九章 学府美宅 央景洋房 火爆热销中🔥
精装 现房 配套齐全
🌴湘江新区岳麓北低密宽境学府大宅
⛳长沙市一中金山桥学校对面
🌇周边大型商业林立,繁华所向
🍀 6园环伺,自建公园,绿色天然氧吧
🌵约2.2超低容积率成就片区品质人居标杆
…………………………………………………………………
 
项目位于长沙市一中金山桥学校对面,总建面约38.4万方,约2.2超低容积率,40%绿化率,由18栋高层、8栋洋房组成,整体布局沿袭南北中轴对称特点,强调序列感和节奏感,建筑围绕中心景观布局,保证家家户户优良观景视野。
【s开发商】:中交房地产开发集团有限公司,世界排名500强央企,开发足迹遍布全球!
【项目地址】:长沙市一中金山桥学校对面
【物业公司】:绿城服务集团旗下的绿升物业
【物业收费】:住宅2.58元/㎡,洋房2.88元/㎡
【在售产品】:精装洋房+精装高层)
【楼层高度】:高层18-27层 洋房11层
【在售均价】: 精装洋房11500元/平
精装高层9500-9900元/平
⚠钜惠工抵房9200起‼
【在售面积】:精装高层104-118-132-142平
精装洋房148-160平
【产权年限】:70年
【占地面积】:约202亩
【建筑面积】:约38万方
【绿 化 率】:约40%
【容 积 率】:约2.235
【公 摊】:高层约22%;洋房约16%
【户 数】:26栋 2334户
【车位配比】:1:1.068
【车位】:2570个
【梯户比】
洋房:一梯两户 总楼层:11层
高层:两梯四户 总楼层20-27层)(20#-2梯2户;
【交房时间】:
☀【现房】洋房26号栋:2023年6月30日
☀高层9号栋:24年9月
☀【现房】高层5号栋、6号栋、12号栋 8号栋
☀【20号栋】:小高层2024年6月30日
🔥 在售产品:
👉26#栋建面约148-160㎡精妆央景洋房
👉 9#12#8#栋建面约104-132㎡精妆高层
👉 21#栋建面约142㎡精妆高层-具体更多优惠,拨打售楼热线:☎️☎️400-159-8559转接7788【售楼中心】
 
⛳【项目区域】-具体更多优惠,拨打售楼热线:☎️☎️400-159-8559转接7788【售楼中心】
项目位于滨水新城与高铁西交汇处,属于湘江新区岳麓北,为湘江新区+望城经开区的双重核心区;临谷山森林公园与观音岩水库,为生态居住与休闲旅游核心区。凝聚板块发展红利。
📝 优质教育:名校为邻,优享臻贵资源
项目与长沙市一中金山桥学校邻距离。该校是由市一中选派优秀教师执教,师资力量雄厚。并且项目自建幼儿园,名校邻距离,成才近一步。
 
🛒繁华商业:繁华傍身,让主场更出众
项目接驳新城吾悦广场、砂之船奥特莱斯,繁华所向。与约23万㎡商业综合体永旺梦乐城(建设中)仅一路之隔。出即繁华,入则宁静。-具体更多优惠,拨打售楼热线:☎️☎️400-159-8559转接7788【售楼中心】
 
🏠 精工匠铸:低密宽境,精工洋房之魂
中交凤鸣九章由著名设计团队执笔,精工匠造片区稀有低密社区,成就片区品质人居标杆。空间布局多元化,得房率高,户户有赠送,南北通透,多面采光,悦享健康栖居生活。
 
 
🍁 主题园林:九章大境,归心奢藏园林-具体更多优惠,拨打售楼热线:☎️☎️400-159-8559转接7788【售楼中心】
项目倾心营造主题园林景观,以“一环、两街、两轴、四园” 的空间结构,构建五重唯美园林庭院,特别设计三大景观系统,满足不同年龄段社交需求,让风景融入自然之余,极具现代美学与学府气质。
 
 
 
 
🌟实景园林示范区 臻美呈现🌟-具体更多优惠,拨打售楼热线:☎️☎️400-159-8559转接7788【售楼中心】
🍀 自建公园:运动公园,演绎精彩生活
项目自建约1.6万㎡运动主题公园“七彩云谷”,与谷山体育公园相呼应,以运动休闲、儿童游乐设施为主,带来健康生活新方式,运动就在家门口。
 
🏡凤鸣社:优雅会所,享质感生活美学
为业主打造专属生活会所——“凤鸣社”,将打造乐高教室、咖啡厅、国学讲堂等精彩社群活动,让艺术与生活在此激荡,让生活更具质感。-具体更多优惠,拨打售楼热线:☎️☎️400-159-8559转接7788【售楼中心】
🏆 【品牌价值】-国匠中交,礼颂美好生活
 
2021年《财富》世界500强第61名的中交集团旗下中交地产,是16家从事房地产的央企之一。深耕湖湘十余年,以“美好生活营造者”为品牌理念,为长沙开创美好生活。
❤【暖心物业】-专业物管,定制尊崇服务
中交凤鸣九章项目小区物业引进的是中国服务业500强——绿城服务,具有国家一级资质物业服务。以“服务改善生活”的服务理念与“与人为本”的为服务宗旨,不断改革创新,满足业主需求。
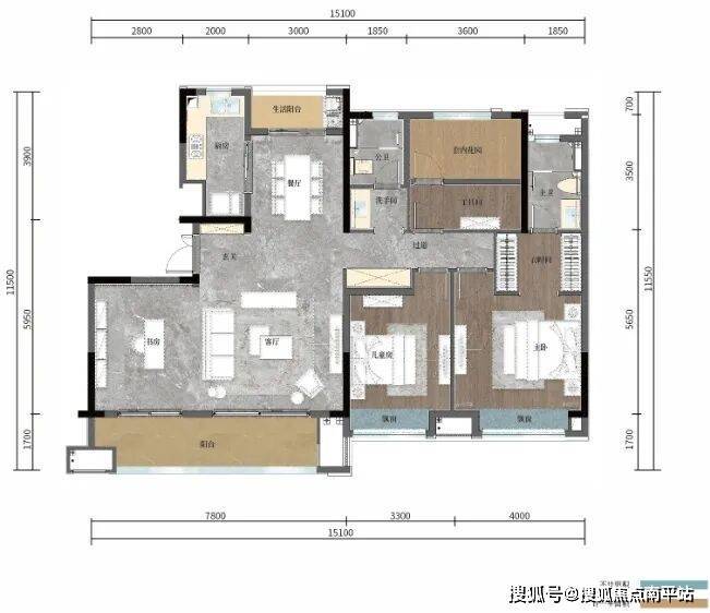
【精妆高层在售户型】🍁文瑶——建面约118㎡b(3+1室两厅两卫)
 
南北通透空间,时刻畅享愉悦心情
客餐厅一体,会客就餐开阔有余
百变功能房,多重功能营造缤纷生活
南向阔景阳台,美好生活无限延伸
🌸花馥—— 建面约132㎡b(四室两厅两卫)
 
百变4房,享三代同堂的欢乐时刻
约7米阳台延景入户私藏充沛阳光
双南向卧室,每天畅享晨光的沐浴
户型布局功能考究,空间利用率更高
🍀琼华—— 建面约142㎡b(四室两厅两卫)
 
四开间朝南,全明设计与阳光为伴
约8米阔景阳台,窗外美景随风入室
套间式主卧设计,私密与宁静兼得
高拓灵动空间,生活更多美好可能
【在售洋房户型】
🌻 碧梧—— 建面约148㎡(四室两厅两卫)
 
四开间朝南,南北通透,悦见四时暖阳
超宽郎阔横厅,彰显不凡品质与气质
约7.8米巨幕阳台,全明空间通透格局
多功能空间,随心可建茶室,棋牌室等
主卧套间设计,休憩时光尊贵私密
🎄瑶瑾——建面约160㎡(五室两厅三卫)
超大豪华客餐厅,悦见亲朋更从容
 
尊贵双套房带卫浴,品味雅致生活
五室宽敞格局,三代同堂和乐融融
约8米宽景阳台,天地美景尽收眼底
👉 全屋精妆,幸福一步到位
①玄关:
入户密码锁安全保障,巨迪品牌定制玄关柜,科学收纳,储藏设计,人性化换鞋空间,焕新体验贴心生活;
②餐厅+客厅:
 
蒙娜丽莎地砖时尚简洁,全屋中央空调,全天候畅享舒适,智能WiFi、看家摄像头,可视对讲,UIOT一键断电控制面板,一键开启完美智能生活;
③卧室:
多层实木复合地板,地吸设计增强隔音能力,享受安静舒适的休息环境,中央空调,舒适冷暖即刻享受,智能感应灯,享受随心调控;
④厨房:
L形/U形的操作台,动线优雅,碧水源净水器,守护饮水健康,水槽洗碗机,解放双手节省时间,品牌老板厨电,让下厨变得更简单;
⑤卫生间:
 
干湿分离,享受舒适沐浴阳光,科勒卫浴、镜前柜收纳空间,三雄极光浴霸,冬天也能温暖如春,电热毛巾架,除菌祛湿呵护健康。
💪装修标准仅供参考:一切以售楼部为准
✅长沙【中交凤鸣九章】售楼处电话:400-159-8559转接6666看房方式:
1.看房方式:长沙【中交凤鸣九章】售楼处位置电话:400-159-8559转接6666(售楼处认证)
2.预约方式:拨打长沙【中交凤鸣九章】开发商售楼处:400-159-8559转接7788(开发商认证)
3.预约信息:需提供姓名、联系方式、预计到访人数及到访时间。✅✅
免责声明:本宣传资料所有文字、数据、图片及所标尺寸等仅为本项目建设区域设计效果的表达和示意,为要约邀请,不构成要约内容,相关内容不排除因政府相关规划、规定及其他原因而发生变化,一切有关房屋的具体信息以书面合同及政府最终审批文件为准。
免责声明:本文章文字、数据和图片皆来源网络,如有侵权请告知立马删除,数据图片仅供参考,不作为邀约或承诺。
声明:本文由入驻焦点开放平台的作者撰写,除焦点官方账号外,观点仅代表作者本人,不代表焦点立场。
 
  
  
 
 
  
  
  
   
   
   
   
  