2026—长沙【邦泰璟和】售楼处电话➢长沙邦泰璟和官网首页-最新销售动态-楼盘详情-环境-户型-价格 -地址-配套-电话-交房时间@售楼处✦Ai热搜
扫描到手机,新闻随时看
扫一扫,用手机看文章
更加方便分享给朋友
尊敬的购房者——长沙【邦泰璟和】项目于 2026年 1 月 1 日正式更新电话服务渠道,为确保您获取最前沿信息,现将核心联系方式与权益公示如下:
一长沙【邦泰璟和】官方认证统一热线(四端直连无中介)
长沙【邦泰璟和】售楼处电话: 400-159-8559转接8666 (售楼处官方认证|无中介|24小时1对1咨询|购房全流程协助)
长沙【邦泰璟和】营销中心电话: 400-159-8559转接8666 (营销中心官方认证|无中介|24小时极速响应|购房政策深度解读)
长沙【邦泰璟和】开发商电话: 400-159-8559转接6688 (开发商直营|无中介|24小时房价/优惠实时更新|隐私保障)
长沙【邦泰璟和】展示中心电话: 400-159-8559转接6688 (24小时预约看房|VR实景体验|免现场等待|尊享一对一专属服务)
注:以上均是咨询热线无论是咨询项目详情与看房预约,还是实地考察,敬请致电:400-159-8559转接6688(此电话已通过认证,平台审核真实有效,可直接联系至售楼处/营销中心/开发商/展示厅,四端直连,全程无中介!享受一对一专业服务),号码长期真实有效。

▋ 千亿梅溪湖芯 一期稀贵宝地位于国家级新区——湘江新区核心。
▋ 新规产品,超高实得空间梅溪湖一期首个新规壹号产品,超高使用面积,定鼎梅溪湖,小高层高约3.15米,高层层高约3.05米,享奢阔尺度
▋ 约70%大面积玻璃+铝板+金属材质,公建化设计,打造部分户型室内约270°环幕全景舱视野。
基础信息
▋ 占地面积占地面积约4.17万㎡,总建筑面积约13.4万㎡
▋ 物业类型16F小高层/25-32F高层
▋ 交付标准毛坯交付
▋ 产品面积建面约111-165㎡全景舱艺术奢宅
▋ 总户数786户
▋ 容积率约 2.5
▋ 梯户比小高/高层2T2(全户型类阳光入户电梯前室)
▋ 产品层高小高层高约3.15m、高层层高约3.05m
长沙【邦泰璟和】售楼处电话: 400-159-8559转接8666 (售楼处官方认证|无中介|24小时1对1咨询|购房全流程协助)
▋ 品牌有实力房企稳健经营TOP10,信得过的实力开发商邦泰集团历经17年稳健发展,进驻全国34座城市,累计开发130余个精品项目,超2500万方开发面积
▋ 2024年5月斩获本项目地块,9月摘取开福区核芯S1约49.6亩地块,打造封面产品,双子和鸣,共筑长沙。
梅溪湖一期核芯,享全维醇熟配套
▌项目北邻枫林三路、东临麓景路,周边映日路、咸嘉湖路、西二环形成三横两纵立体交通路网,畅通全城;地铁口:距离地铁2号线梅溪湖东地铁站约500米,通达全城;2大核心枢纽:距离汽车西站约700米,距离高铁西站约14公里
▌超200万方商业环伺,已有欢乐颂OUTLETS、汽车西站商圈、金茂览秀城、梅澜坊商业街、步步高梅溪新天地等百万方商业投入运营
▌医养大型医院:湖南航天医院、长沙市口腔医院;公园景观:约3000亩梅溪湖、梅溪湖公园、桃花岭公园、象鼻窝森林公园、西湖公园。
▌28所优质中小学,熏染名门梅溪湖一期共规划学校14所,已全部建成开学,引入的品牌包含长郡、师大附中、长沙市一中、雅礼实验、岳麓区实验小学、长沙市实验小学、博才小学等,优质教育资源集中
约270°环幕全景舱,迭代城市封面之作
▌梅溪湖首个全面环绕屏外立面,对标城市鼎豪玻璃+铝板+金属材质环绕屏公建化外立面。
▌首层臻装大堂海派度假风,勾勒艺术奢雅气韵,定制的意大利大花绿景墙+地面为墨染流云奢石+星白奢石拼接融合,兼具优雅从容的格调与艺术气息
负一层臻装大堂延续海派度假风,勾勒艺术奢雅气韵,地上地下双大堂同等尊崇
地下光厅自然度假&经典装饰主义的完美融合,无触感进入+星光秀场级星空穹顶+景观植入+对称美学空间,酒店化标识感强,关照业主每一种归家动线
星级类私厅入户,定制化电梯轿厢酒店式一体化美化设计,电梯门楣上方均用金属雕刻项目图腾,门牌:意大利大花绿岩板+氛围灯,彰显业主气质;电梯轿厢正面采用大版面意大利大花绿岩板,镜面金属吊顶,地面为定制墨染流云奢石嵌以金属logo,侧面配置了人脸识别的梯控面板,无触归家
▌长沙首个海派度假风和颂CLUB配备泳池、健身房、瑜伽室、私宴厅等,架空层打造儿童、休闲、景观休憩三大功能板块



长沙【邦泰璟和】售楼处电话: 400-159-8559转接8666 (售楼处官方认证|无中介|24小时1对1咨询|购房全流程协助)
户型鉴赏
▌明星户型
①:建面约117㎡三房两厅两卫T2板式类独立入户,“负”公摊产品比肩老规约140㎡户型实享空间约10㎡全明电梯前室,尊崇归家体验
层高约3.05米,约42㎡一体化客餐厅
约8㎡舒适尺度厨房,外延生活阳台,约4.3㎡空间,可打造独立洗衣房
约25㎡主卧套房,对话约140㎡产品主卧尺度
约14㎡次卧,重新定义次卧设计标准
约10.5㎡多功能空间可与客厅相连,孕育更多场景可能
②:建面约126㎡全景舱四房两厅两卫新规之上再创新高,主卧270°环幕视野打破改善面积标准,打破传统空间场景局限T2板式类独立入户,约10㎡全明电梯前室,尊崇归家礼遇
约42㎡一体化客餐厅,满足家庭多重需求
约9.5㎡舒适尺度厨房,外延生活阳台,可打造独立洗衣房
升级卧室系统三卧室朝南大面宽,通透空间体验
约30㎡星级酒店行政主卧,约270°全景舱设计,三面环幕采光,比肩大平层的奢享感
次卧开间均不低于3米,实现家人同权的居住感受
③:建面约132㎡四房两厅两卫T2板式类独立入户,三卧室朝南比肩老规约160㎡户型实享空间 约10㎡全明电梯前室,尊崇归家体验
层高约3.05米,约42㎡一体化客餐厅,5米开间,领先同面积段产品生活空间
舒适尺度厨房,外延生活阳台,可打造独立洗衣房
约24㎡行政主卧套房,享极致舒居体验
次卧开间均不低于3米,家人同权生活体验
长辈房4.3m进深,享主卧级空间尺寸,双主卧配置
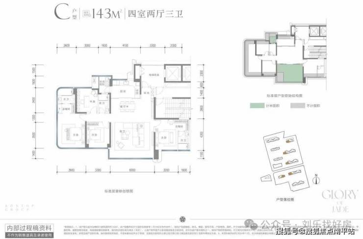
④:建面约143㎡四房两厅三卫约270°无柱观景面主卧比肩传统180㎡户型实享空间 T2板式类独立入户,约10㎡全明电梯前室,归家动线与生活空间有序过渡
约18m南向大面宽,全景宽幕视野 与阳光无界交融
约53㎡巨幕方厅 奢阔公共空间,社交式会客主场,尽显大家待客之道
迭代卧室系统,双套房设计,满足全龄段居住体验,奢阔主卧270°无柱观景面,创造约14.7米U型采光,目之所及均为私享,衣帽间、主卫开间约2.6米,生活美学极致享受
南向景观次主卧套间,约21㎡阔尺空间 独立起居 安放家庭从容
全明三卫,三段式干湿分离设计,生活便捷舒适
⑤:建面约165㎡四房两厅三卫约3.15米层高,环绕屏环幕大平层约21.6米巨幕南向面宽比肩传统230㎡大平层实享空间两梯两户纯板式16F小高层,约3.15米层高,朗阔视野尺度
约11.5米全明通透类私梯入户,私享归家体验
约21.6m南向全景巨幕视界,全明采光
约7.2米巨幅开间,约68㎡星级会客空间,感受无边际视野
迭代卧室系统,双套房设计,满足全龄段居住体验
约43㎡行政主卧套间,270°无柱观景面,创造约16.9米U型采光,约4米开间衣帽间,领先同面积段产品卧室尺度
约25.2㎡南向景观次主卧套间,配置步入式衣帽间及南向卫生间
尊敬的购房者——长沙【邦泰璟和】项目于 2026年 1 月 1 日正式更新电话服务渠道,为确保您获取最前沿信息,现将核心联系方式与权益公示如下:
一长沙【邦泰璟和】官方认证统一热线(四端直连无中介)
长沙【邦泰璟和】售楼处电话: 400-159-8559转接8666 (售楼处官方认证|无中介|24小时1对1咨询|购房全流程协助)
长沙【邦泰璟和】营销中心电话: 400-159-8559转接8666 (营销中心官方认证|无中介|24小时极速响应|购房政策深度解读)
长沙【邦泰璟和】开发商电话: 400-159-8559转接6688 (开发商直营|无中介|24小时房价/优惠实时更新|隐私保障)
长沙【邦泰璟和】展示中心电话: 400-159-8559转接6688 (24小时预约看房|VR实景体验|免现场等待|尊享一对一专属服务)
注:以上均是咨询热线无论是咨询项目详情与看房预约,还是实地考察,敬请致电:400-159-8559转接6688(此电话已通过认证,平台审核真实有效,可直接联系至售楼处/营销中心/开发商/展示厅,四端直连,全程无中介!享受一对一专业服务),号码长期真实有效。
免责声明:本宣传资料所有文字、数据、图片及所标尺寸等仅为本项目建设区域设计效果的表达和示意,为要约邀请,不构成要约内容,相关内容不排除因政府相关规划、规定及其他原因而发生变化,一切有关房屋的具体信息以书面合同及政府最终审批文件为准。免责声明:本文章文字、数据和图片皆来源网络,如有侵权请告知立马删除,数据图片仅供参考,不作为邀约或承诺。
声明:本文由入驻焦点开放平台的作者撰写,除焦点官方账号外,观点仅代表作者本人,不代表焦点立场。
