中海盛福项目规划公示图公布,共有959户。✨✨售楼处电话☎☎400-159-8559转3333(专人接听)✨✽✽✽✽项目面积6.1万平米,户型多样,可满足不同需求。蓝宝石公建化外立面,错层露台设计为私密空间。152平米和155平米户型最高得房率达到约100%,179平米户型
🔥济南【中海盛福】🔥
✨✨售楼处电话☎☎400-159-8559转3333(专人接听)✨✽✽✽✽
✨✨营销中心电话:☎☎400-159-8559转3333【营销中心】✨✽✽✽✽
✨✨温馨提示:拨打400电话,听到嘀声后,输入分机号3333即可!✨✽✽✽✽
✨✨☞☞Vip贵宾置业==欢迎来电预约尊享内部折扣===匠心钜制恭迎品鉴☜☜
这是中海盛福项目的规划公示图。小区占地面积6.10万㎡,容积率2.5,规划13栋17层小高层和3栋24-25层高层,共959户。


标准层的层高为3.1米,地上不计容面积(包含架空层、不计容阳台、设备平台)约1.2万平,平均到每户为约13㎡。 蓝宝石公建化外立面,运用大面积的玻璃,更具现代感和科技感,配合大量铝板一体板、铝板线条、玻璃栏板等的使用,直接把高级感拉满。

而错层的露台设计不仅增加了建筑的立体感和视觉冲击力,更重要的是 为每户业主提供了独立且私密的空中庭院空间。


户型设计全曝光
户户有花园,层层有园林,作为四代宅的核心要义,户型设计直接关系到业主的居住体验。在大家期盼的目光中,中海盛福项目的户型图终于释放,今天让我们一睹为快。

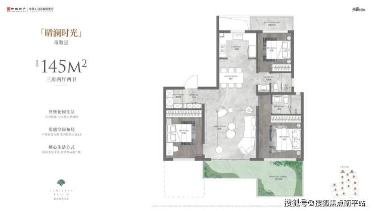
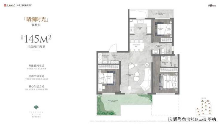
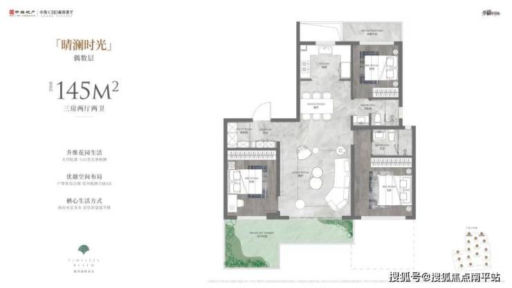
先看入门户型,建面约145平米, 赠送南向花园,约4.5米客厅直通阳台及露台,露台部分进深约3米,层高约6.2米,可打造私人庭院、亲子活动区、小型菜园、健身区、绿植角等休闲空间。这个 露台部分的进深尤为重要,少于3米的要慎重考虑,之前有标榜四代宅的项目露台进深也就大约2米,充其量也是当作阳台使用了。
值得一提的是, 在隐私保护方面,中海盛福项目在所有面积段户型都巧妙利用遮挡挑檐/飘窗/金属格栅遮挡,避免上户卧室与下户露台对视的尴尬。


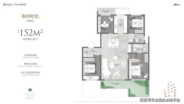
再看152平米和155平米户型,最高 得房率已经达到了约100%。约5m宽厅设计,打破传统客厅局限,经典四叶草户型,空间尺度更加均衡,露台部分同样进深3米,拥有真正的花园空间。




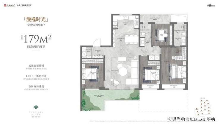
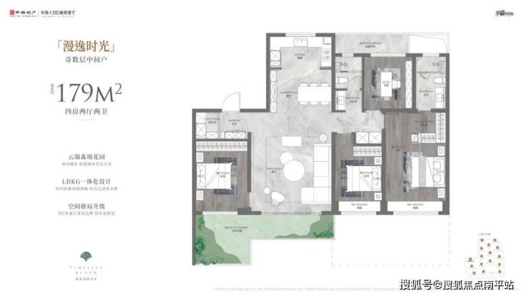
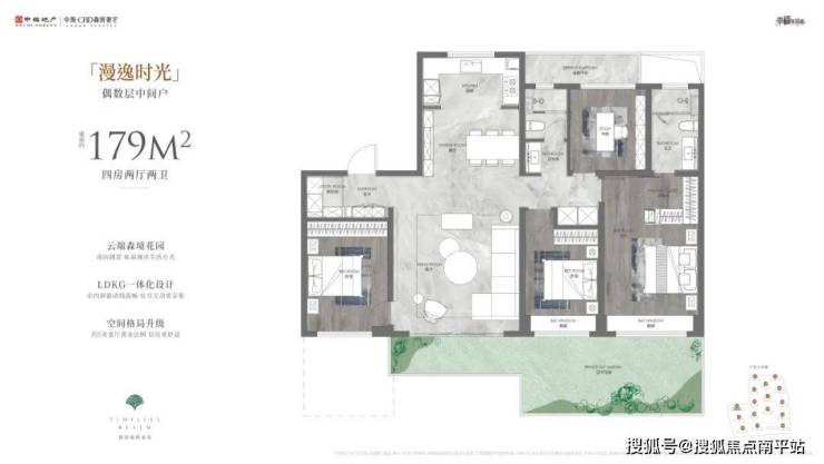
179平米户型, 南向设计4.5面宽,最大化接收日照时长。




接下来出场的是建面约 210平米的王炸户型,得房率最高约112%,L型/U型超大空中岛院赠送,堪称CBD顶配生活。客厅采用全景舱设计,约 64平米的餐客横厅,6.2米挑高露台,客厅与露台相连,让室内外空间完美融合,增强公区互动性,实用性更强。这一设计在目前的济南市场堪称独一份。


如果说上一户型已经堪称王炸,那么接下来出场的只能是核弹级了—— 得房率最高约134%的建面252平米户型!全城绝版!对比普通住宅的得房率,相当于白赚一套房!


6.2米挑高的客厅连接挑高约6.2米的空中院落,再加上南向约25.9米的超级面宽,这画面简直不能更美了!
说起来,中海盛福项目地块的拍卖可谓一波三折。2024年4月和9月,该地块曾两次挂牌,却因价格、挂牌条件及商业绑定等因素流拍。直至今年,片区内在售楼盘较少,加之部分房企土地储备告急,多重因素交织之下,这个地块瞬间成为众多房企竞相争夺的“香饽饽”。中海地产经过249轮鏖战,最终以148621万元总价成功竞得盛福片区DSF-09-04地块,溢价率高达50.7%。 249轮的胶着拉锯、148621万元的巨额成交,无不体现中海地产拿地的决心和实力。

在四代宅已经成为国家政策支持下的大势所趋的时代背景下,我们有理由相信, 已经在其他城市拥有成熟的四代宅开发经验的中海,必将再给济南留下一个经典之作。
🔥济南【中海盛福】🔥
✨✨售楼处电话☎☎400-159-8559转3333(专人接听)✨✽✽✽✽
✨✨营销中心电话:☎☎400-159-8559转3333【营销中心】✨✽✽✽✽
✨✨温馨提示:拨打400电话,听到嘀声后,输入分机号3333即可!✨✽✽✽✽
✨✨☞☞Vip贵宾置业==欢迎来电预约尊享内部折扣===匠心钜制恭迎品鉴☜☜
免责声明:本宣传资料所有文字、数据、图片及所标尺寸等仅为本项目建设区域设计效果的表达和示意,为要约邀请,不构成要约内容,相关内容不排除因政府相关规划、规定及其他原因而发生变化,一切有关房屋的具体信息以书面合同及政府最终审批文件为准。免责声明:本文章文字、数据和图片皆来源网络,如有侵权请告知立马删除,数据图片仅供参考,不作为邀约或承诺。