⫸⫸⫸武汉【城建江南岸】售楼处电话☎️☎️:400-159-8559转接7788⫷⫷⫷
⫸⫸⫸武汉【城建江南岸】开发商电话☎️☎️:400-159-8559转接7788⫷⫷⫷ ⫸⫸⫸武汉【城建江南岸】营销中心电话:400-159-8559接通输入7788⫷⫷⫷
⫸⫸⫸武昌武昌区铁机路与临江大道交汇处-城建江南岸⫷⫷⫷
⫸⫸⫸武汉【城建江南岸】售楼处电话☎️☎️:400-159-8559转接7788⫷⫷⫷
⫸⫸⫸武汉【城建江南岸】开发商电话☎️☎️:400-159-8559转接7788⫷⫷⫷
⫸⫸⫸武汉【城建江南岸】营销中心电话:400-159-8559接通输入7788⫷⫷⫷
⫸⫸⫸武汉【城建江南岸】展示中心电话:400-159-8559接通输入7788⫷⫷⫷
来电可了解楼盘最新动态、房价、在售房源、交楼时间等信息!让你买的放心,住的舒服

最新动态:武汉城建江南岸,展厅已开放,预计6月底开售楼部,7月底首次开盘,推出建面约143、183㎡户型。
武汉城建江南岸在武昌区二环内,属于武昌滨江商务区范围,是一线临江的项目, 所有楼栋均设计为正面看江。
项目共规划了4栋30-31层的高层住宅、2栋44层的超高层住宅和部分社区底商。总用地面积2.58万方,总建筑面积约8.97万方, 容积率2.49,户数402户,车位配比1∶1.07。

平面图显示,该项目地块与临江大道、长江走向平行,6栋住宅均为东南-西北朝向,且偏转角度较大,主要看江的方向为西北向。楼栋大体可看作一字排开,错位布局, 每栋楼都有无遮挡看江的视野角度,1、3、4、6号楼为完全的第一排看江,2、5号楼稍微离江远一些,正面可无遮挡看江,但侧前方有楼栋遮挡,可算作1.5排观江。

项目是 全风雨连廊归家,整体设计约4000㎡的风雨连廊和架空层空间,从社区主入口至单元门厅。该项目包含大量不计容建面,公区配套空间很丰富,包含绿化架空、风雨连廊、地下配套服务设施等。

详情咨询:☎️☎️售楼处电话400-159-8559转接7788【免费预约通道】
在产品设计上,每户沿江面均配置全景落地Low-E玻璃幕墙,约7.4-9米的瞰江横厅、“双全景舱”等创新设计,实现270°无界江域视野。

详情咨询:☎️☎️售楼处电话400-159-8559转接7788【免费预约通道】
武汉城建江南岸项目所在地块原本属于商业地块,也是一个商改住项目, 该地块由武汉地产集团有限公司拍得,成交价78140万元, 成交楼面价约11236.8元/平。
户型介绍
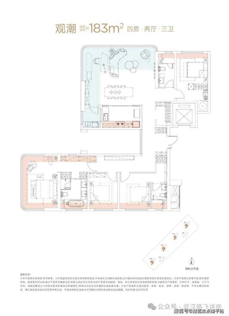
项目只有建面约143㎡和183㎡两个户型,是纯改善楼盘中的豪宅定位。
建面约143㎡是经典3+1居室户型,户型面宽可达市面少见的约16.3米,创新设计可变弹性空间,约9米宽的大横厅设计,实现更多生活场景可能。
建面约184㎡户型,采用创新“双全景舱”概念设计,实现约45㎡超大IMAX环幕厅,一线江景尽收眼底,搭配约2.5米高落地玻璃,模糊室内外界限; 主卧采用270度U型玻璃幕设计,实现观江视野最大化。可改三套间的设计满足高端客群的私密生活享受,入口处设计创新X空间,实现高端品质生活场景演绎。


详情咨询:☎️☎️售楼处电话400-159-8559转接7788【免费预约通道】
03区位交通
武汉城建江南岸位于武昌区铁机路与临江大道交汇处江南实业片A地块,在二环内,与二环直线距离不到1公里,靠近1.5环铁机路隧道,与武汉大道直线距离约2公里,属于武昌滨江杨园板块一线临江用地,紧邻武昌江滩,与长江直线距离仅约200米。
项目紧邻临江大道,不远处就是和平大道,自驾能比较方便的上二七长江大桥和二桥,加上在建的二七路-铁机路过江通道,未来自驾出行会更方便; 项目南向直线距离约600米就是地铁5号线余家头站,未来新港线西延线(10号线一期)也在这里,未来公共交通出行也比较便捷。

04生活配套
项目周边有徐东商圈和青山商圈2大商圈,徐东商圈包括武昌万象城、群星城、亲橙万象汇、京东MALL、滨江天街(即将开业)等的商业配套,附近也有融侨星域MALL、奥山世纪广场等商业。此外,项目紧临武昌江滩和武昌生态文化长廊,有着不错的,生态环境。

详情咨询:☎️☎️售楼处电话400-159-8559转接7788【免费预约通道】
教育方面,2025年学校划片中,项目所在的位置暂时划片的是杨园学校,周边有中华路小学橡树湾校区,大概率不能对口;周边武昌首府旁还有规划九年制学校,不过还没开建,划片范围更是无从说起。

⫸⫸⫸武汉【城建江南岸】售楼处电话☎️☎️:400-159-8559转接7788⫷⫷⫷
⫸⫸⫸武汉【城建江南岸】开发商电话☎️☎️:400-159-8559转接7788⫷⫷⫷
⫸⫸⫸武汉【城建江南岸】营销中心电话:400-159-8559接通输入7788⫷⫷⫷
免责声明:本宣传资料所有文字、数据、图片及所标尺寸等仅为本项目建设区域设计效果的表达和示意,为要约邀请,不构成要约内容,相关内容不排除因政府相关规划、规定及其他原因而发生变化,一切有关房屋的具体信息以书面合同及政府最终审批文件为准。
免责声明:本文章文字、数据和图片皆来源网络,如有侵权请告知立马删除,数据图片仅供参考,不作为邀约或承诺。