后海招商玺是招商蛇口推出的顶豪项目,主打纯大平层,地段稀缺,配套完善,总价高昂,被誉为玺系3.0的典范。💗鉴赏热线✆✆400-159-8559转3333(官网认证)💗
🔥🔥深圳【后海招商玺 】🔥🔥
💗鉴赏热线✆✆400-159-8559转3333(官网认证)💗
💗营销中心电话:☎☎400-159-8559转3333【专人接听】💗
💗【售楼中心】网上售楼中心〢欢迎来电咨询💗
💗〢专业一对一热情服务给您专业的置业方案💗
💗〢期待您成为我们的尊贵的业主💗
后海招商玺,是招商蛇口继“5000万蹲”的深圳双玺和“交付天花板”太子湾招商玺之后,“玺系”产品的全新力作,被视作玺系3.0的范本。
后海招商玺开盘,首推40套全部售罄。这批房源以建面约197-237㎡的4房为主,备案均价14.96万元/㎡,总价2485-3750万元/套,最贵的两套432㎡大平层总价高达6842-6867万元。

项目占地约1.5万㎡,总建面约15万㎡,由4栋住宅及1所幼儿园组成。商品房总计仅261户,户均面积约218㎡,主打约188-247㎡纯粹大平层社区。
计容建面98754㎡ ,其中:住宅88449㎡,商业、办公及旅馆业建筑2100㎡,公共配套面积8205㎡。

地段:后海 × 蛇口双核心,绝版不可再生
后海招商玺的底色,是 深圳湾最后一批可售核心宅地。
占位后海大道与工业七路交汇处,左手深圳湾超级总部基地,右手蛇口成熟豪宅区;
地铁 2 号线海月 / 湾厦站步行约 700 米,2 站到后海枢纽,贯通 11/13 号线,高效覆盖福田、前海、科技园;
3 公里内集齐深圳湾万象城、海岸城、宝能太古城、来福士,顶奢商业一步到位;
深圳湾公园、四海公园、大南山环绕,城市封面景观与生态静谧兼得。
在深圳湾宅地断供、旧改稀缺的当下,这种 成熟配套 + 产业红利 + 景观资源三重叠加的地段,卖一套少一套。

产品:玺系 3.0 硬核升级,把 “实用顶豪” 做到极致
招商玺没有堆砌浮夸概念,而是用 高使用率、纯板楼、专梯入户,戳中顶豪家庭最真实的居住痛点。
1. 纯大平层社区,圈层极度纯粹
仅 4 栋住宅, 可售商品房 261 户 ,户均面积约 218㎡;
无小户型、无公寓,起步即改善,锁定高净值圈层。
2. 户型王炸:使用率≈95%,碾压同级豪宅
主力户型: 188/197/237/246㎡四房三卫
2T2 户纯板楼, 专梯入户 ,私梯厅直接当入户玄关;
核心筒 + 边柱设计,室内少承重墙,空间可塑性强;
常规使用率约 90%,计入私梯厅后 逼近 95% ,197㎡实得堪比传统 280㎡;
高区 270° 环幕视野,海景 + 城景无遮挡,LDKB 一体化通透格局。
3. 公区与精装:顶豪标准不打折
立面:“海风百褶” 弧形美学,辨识度拉满;
园林:“浮岛甲板” 垂直园林,抬坡造景,闹中取静;
会所:24h 恒温泳池、健身房、私宴厅、艺术沙龙空间;
精装:德系一线厨电、进口石材、全屋智能,细节对标双玺、太子湾招商玺。


配套:育才顶级学区 + 全维生活,自住无短板
顶豪最终拼的是 长期自住舒适度,招商玺在配套上几乎没有短板。
教育:对口育才二小 + 育才二中,南山第一梯队公立;配建幼儿园 + 九年一贯制学校,15 年教育闭环;
生态:近深圳湾公园、四海公园,周末骑行、散步、亲子休闲一站式满足;
医疗 / 文体:蛇口成熟医疗配套环绕,近深圳歌剧院(规划),文化氛围浓厚。

户型设计
项目以2梯2户专梯入户的纯板楼,打造楼高仅90m的21层稀缺小高层,叠加尊贵私密的私享电梯厅优势,项目户型高拓使用率高达93-95%,在拔高空间尺度的同时,更注重居住体验感和实用性。
项目还采用框架结构设计,重构承重关系,不仅带来“全景舱”无界景观视野,让空间也更灵活多变,全屋更少承重墙,满足全生命周期的使用需求,打造一步到位的“第一居所”。


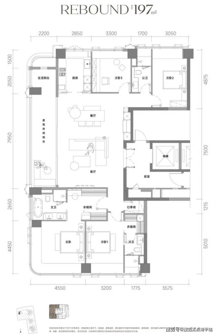
建面约197㎡户型
4房2厅3卫的正四房设计,全屋通透明厨明卫,豪气阔绰的客餐厅超大通厅,带来云端墅居的空间感。
该户型还高配约8m长的极目宽景阳台,空间面积达到约22㎡,相同面积下比其它几大顶豪的阳台尺度还要奢阔,将无界瑰丽景观定格为家的唯美色彩。
全屋卧室配备新规800mm宽尺飘窗,次卧套打造3.2mx4.5m的22㎡奢阔空间,为每一个家庭成员带来专属的尊贵生活尺度。
主卧套房采用豪华套房+步入式衣帽间的设计,开间约4.6m,进深达4.5m,搭配270°环幕飘窗,带来面积达38㎡的星级奢华空间。

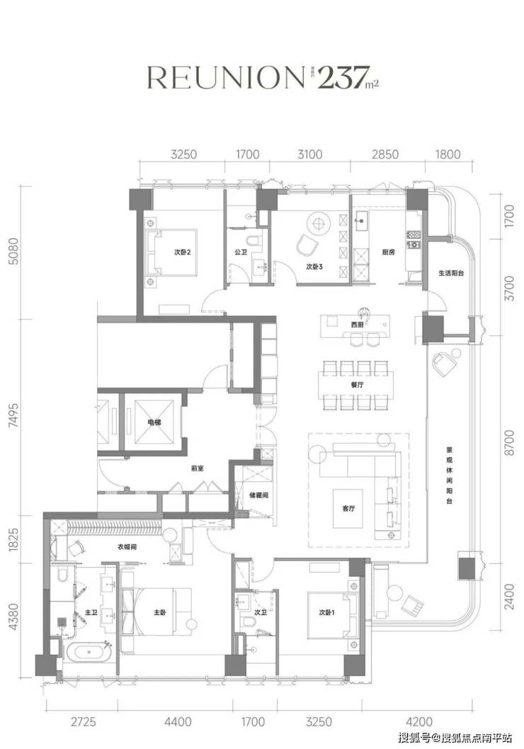
建面约237m²户型
最大的亮点是其面积高达60m²、接近标准羽毛球场大小的LDKB全景家庭厅,以及一个长约18.9米、面积约31m²的L型270°拐角瞰景阳台。

🔥🔥深圳【后海招商玺 】🔥🔥
💗鉴赏热线✆✆400-159-8559转3333(官网认证)💗
💗营销中心电话:☎☎400-159-8559转3333【专人接听】💗
💗【售楼中心】网上售楼中心〢欢迎来电咨询💗
💗〢专业一对一热情服务给您专业的置业方案💗
💗〢期待您成为我们的尊贵的业主💗
免责声明:本宣传资料所有文字、数据、图片及所标尺寸等仅为本项目建设区域设计效果的表达和示意,为要约邀请,不构成要约内容,相关内容不排除因政府相关规划、规定及其他原因而发生变化,一切有关房屋的具体信息以书面合同及政府最终审批文件为准。免责声明:本文章文字、数据和图片皆来源网络,如有侵权请告知立马删除,数据图片仅供参考,不作为邀约或承诺。