长沙招商揽阅项目位于长沙岳麓区梅溪湖国际生活圈✨售楼处电话☎☎400-159-8559转2222(专人接听)✨,整体风格为现代雅奢,白金色调,包含15+1F~18F小高层住宅楼和若干低层底商配套设施楼,采用现代手法转译长沙非遗手工棕编符号,具有丰富景观资源,强调品
🔥长沙【招商揽阅】🔥
✨售楼处电话☎☎400-159-8559转2222(专人接听)✨
✨营销中心电话:☎☎400-159-8559转2222【营销中心】✨
✨温馨提示:拨打400电话,听到嘀声后,输入分机号2222即可!✨
☞☞Vip贵宾置业==欢迎来电预约尊享内部折扣==匠心钜制恭迎品鉴☜☜

招商揽阅择址于长沙岳麓区,梅溪湖国际生活圈,地处麓谷大道与枫林三路交汇处,落座精粹资源集群,展映理想无限缤纷。
社区大门、展示区、会所位于地块西侧主要展示面,与大区标高错层,形成下沉式的绿谷景观区,作为社区的核心景观区,链接南北向的社区景观轴,与沿街的城市活力轴,整体形成一个充满生命力的“H”轴规划结构。
结合场地条件与规划条件,整个规划产品为15+1F~18F小高层住宅楼(12幢)及若干低层底商配套设施楼组成。规划布局中心景观资源佳位置设置大户型,最大化景观视野;架空层尽可能设置全架空,社区大堂结合下沉庭院及架空层泛会所化,提高社区品质。

(总平面图)

(鸟瞰效果图)
项目整体风格为现代雅奢,白金色调,设计提取长沙非遗手工棕编符号,通过现代手法转译,形成横纵交织的立面构成关系,立面采用圆弧倒角与公建化大落地窗,筑就天幕流线立面。顶部弧形流线元素,流体灵动,奢境典雅,增强标识感;塔身层间线条展现轻盈精贵的气质,突出公建化立面的端庄
单元大堂立面延续主体现代雅奢风格,立面简约利落,以米白色月光米黄石材、香槟金铝板及潘多拉彩虹印象奢石呼应主体白金色调,以精工细节强化立面品质,石材采用波浪纹、圆弧倒角、拉槽、抛光等细节工艺,铝板采用倒角、凹槽结合密拼工艺,提升归家尊贵感。

(住宅立面效果图示意,仅供参考,以实际交付为准)

(沿街商业立面效果图示意,仅供参考,以实际交付为准)

(入户大堂立面效果图示意,仅供参考,以实际交付为准)
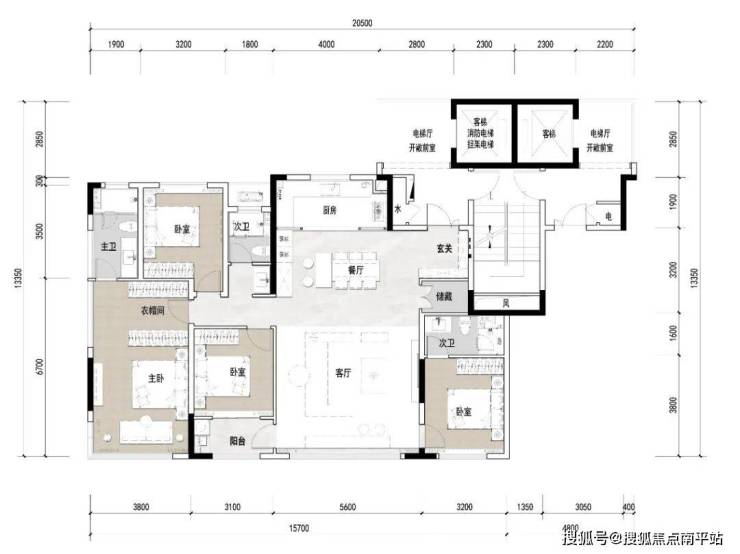
项目主力户型面积为建面约117-139㎡稀缺小高层,两梯两户入户。招商蛇口在长沙打造的首个新规"负公摊"产品,最高得房超110%。各面积段产品均涵盖了极致赠送、阳光入户、南向极致面宽、南北通透、超小公摊、超高使用率、主卧飘窗,极致视野享受、多元化可能性等特点。

(117㎡户型)

(128㎡户型)

(139㎡户型)
🔥长沙【招商揽阅】🔥
✨售楼处电话☎☎400-159-8559转2222(专人接听)✨
✨营销中心电话:☎☎400-159-8559转2222【营销中心】✨
✨温馨提示:拨打400电话,听到嘀声后,输入分机号2222即可!✨
☞☞Vip贵宾置业==欢迎来电预约尊享内部折扣==匠心钜制恭迎品鉴☜☜
免责声明:本宣传资料所有文字、数据、图片及所标尺寸等仅为本项目建设区域设计效果的表达和示意,为要约邀请,不构成要约内容,相关内容不排除因政府相关规划、规定及其他原因而发生变化,一切有关房屋的具体信息以书面合同及政府最终审批文件为准。免责声明:本文章文字、数据和图片皆来源网络,如有侵权请告知立马删除,数据图片仅供参考,不作为邀约或承诺。